// Check if the article Layout ?>
Umgedacht und neu gemacht: Traditioneller Ziegelbau in London
Foto: Hélène Binet
Zehn Autominuten vom Londoner Zentrum entfernt, inmitten schmaler Reihenhäuser und georgianisch anmutender Fassaden, befindet sich das zukunftsorientierte Projekt von Jaccaud Zein Architects. Der so selbstverständlich und simpel erscheinende Entwurf artikuliert sich in zwei Gebäuden und einzig die doppelgeschossigen Fenster geben einen Hinweis auf die Komplexität im Inneren. Das Projekt beginnt am Shepherdess Walk mit drei eher traditionell gehaltenen Reihenhäusern samt rückliegendem Garten, knickt dann identitätsstiftend mit einer abgeschrägten Fassade um die Ecke herum und endet in einem separaten Bau mit fünf Apartments in der Wenlock Street. Die unterschiedliche Höhenausformulierung ist durch die starke Auseinandersetzung mit traditionellen sowie neuartigen Wohnformen und –größen entstanden. Dank leichter Faltungen der Fassade schließt die ansonsten klare Linie der Straßenfront direkt an die angrenzenden Nachbarhäuser an und füllt die vorherige Bebauungslücke auf. Lediglich die Rückseite des Apartmenthauses tritt schrittweise zurück, um Licht und Luft in den Innenhof strömen zu lassen.
Das Gebäudeensemble reflektiert mit seiner Backsteinfassade die Materialität der historischen Umgebung. Ein stark ausgeprägtes Gesimsband sowie sanfte, horizontale Variationen in der Farbigkeit des Mauerwerks prononcieren die Massivität der beiden Häuser. Tiefe Fensterlaibungen gewährleisten den Bewohnern im Inneren eine gewisse Intimität und verleihen der Eckbebauung gewichtige Präsenz.
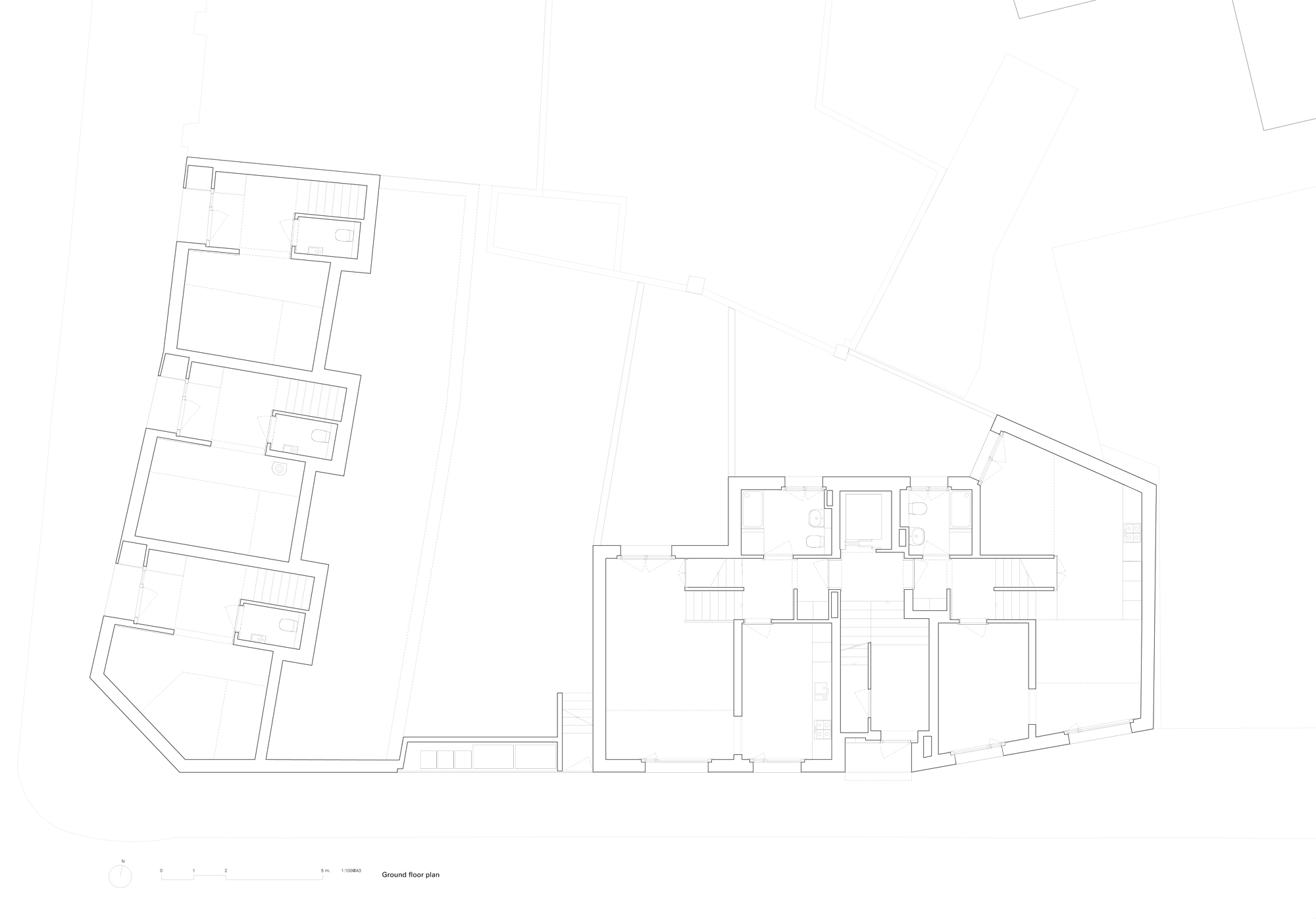
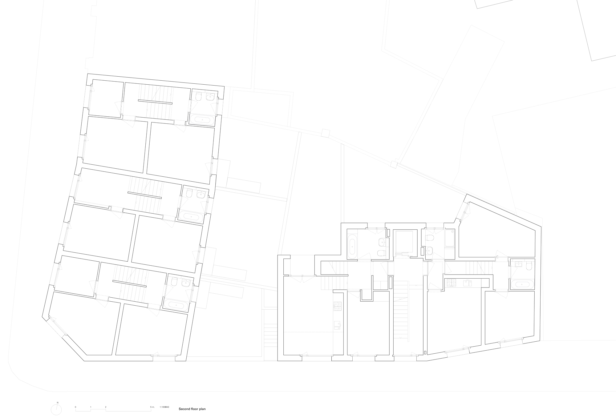
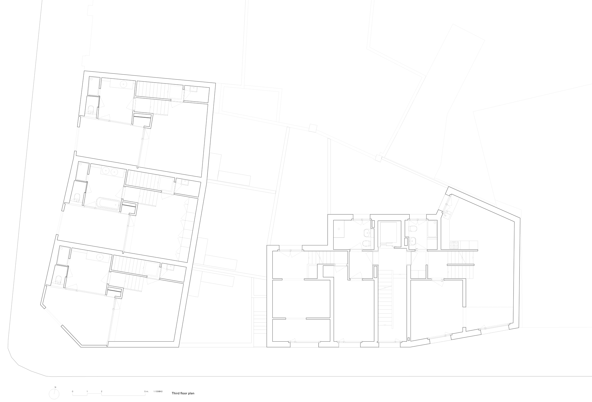
In Zusammenarbeit mit Solidspace entwickelten die Architekten für beide Wohntypen ein Split-Level-Konzept, welches stark an das zentrale, in die Höhe geschraubte Treppenhaus der langgestreckten Reihenhäuser erinnert. In den Neubauten bekommt jede Nutzung durch das Split-Level einen eigenen Raum, ist aber durch Blickbeziehungen mit den anderen Ebenen verbunden. Das soziale Miteinander wie Essen, Wohnen und Arbeiten ist in zweigeschossigen Räumen untergebracht, wodurch abwechslungsreiche Volumen kreiert werden und zusätzlich eine großzügige, räumliche Weiterführung generiert wird.
Die Split-Level Erschließung verleiht dem neuen Wohnen seine charakteristische Identität und ermöglicht den Bewohnern des Apartmenthauses eine individuelle Flexibilität und Anpassung der eigenen, räumlichen Bedürfnisse. Alle fünf Wohneinheiten erstrecken sich hier über mehrere Etagen, können aber aufgrund des zentralen Treppenhauses, von jedem Geschoss aus, durch einen separaten Zugang erschlossen werden. Hierdurch ergibt sich die Möglichkeit der Unterteilung innerhalb eines Apartments, sei es für die heranwachsende Kinder, das Arbeiten von zu Hause aus oder die partielle Untervermietung eines Geschosses.
Mit der willkommenen Neuinterpretation der traditionellen, britischen Ziegelbauten spiegeln Jaccaud Zein Architects das veränderte Ideal zeitgemäßen Wohnens wider.
Weitere Informationen:
Projektbeteiligte: Fanny Noel, Tanya Zein, Jean-Paul Jaccaud, Diogo Fonseca Lopes, Stephan Gratzer, Marco Ferrari
Baukostenberechnung: Measur
Statik: Conisbee
Planungsbüro: AZ Urban Studio
Hauptauftragnehmer: Roof Limited
Größe Haus 1-3: 151 m2, 151 m2, 155 m2
Größe Appartement 1-5: 93 m2, 131 m2, 64 m2, 166 m2, 103 m2 Fotografin: Hélène Binet
Baukostenberechnung: Measur
Statik: Conisbee
Planungsbüro: AZ Urban Studio
Hauptauftragnehmer: Roof Limited
Größe Haus 1-3: 151 m2, 151 m2, 155 m2
Größe Appartement 1-5: 93 m2, 131 m2, 64 m2, 166 m2, 103 m2 Fotografin: Hélène Binet
















