// Check if the article Layout ?>
Unter dem Pflaster die Kunst: Amos Rex-Museum in Helsinki
Amos Anderson war finnisches Parlamentsmitglied, Unternehmer, Verleger und Kunstsammler. Die Bestände des Amos-Rex-Museums in der finnischen Hauptstadt – hauptsächlich Kunst des 20. und 21. Jahrhunderts sowie Funde aus antiken Kulturen – gehen wesentlich auf seine Sammlungen zurück. Schon 1940 gründete Anderson außerdem die Stiftung, die jetzt den Neubau »seines« Museums finanziert hat.
Der Standort könnte prominenter nicht sein: im und unter dem Vorplatz des Lasipalatsi (Glaspalast) schräg gegenüber dem finnischen Parlamentsgebäude. Viljo Revell, Heimo Riihimäki und Niilo Kokko entwarfen das Gebäude 1936 als temporären Vergnügungspavillon für die Olympischen Sommerspiele 1940, die später auf 1952 verschoben wurden. Entgegen seiner ursprünglichen Zweckbestimmung hat sich der Lasipalatsi bis heute als Wahrzeichen Helsinkis gehalten und zieht mit Läden, Restaurants und dem Kino »Bio Rex« die Kunden an. Aber baufällig ist er geworden und musste schon mehrfach saniert werden.
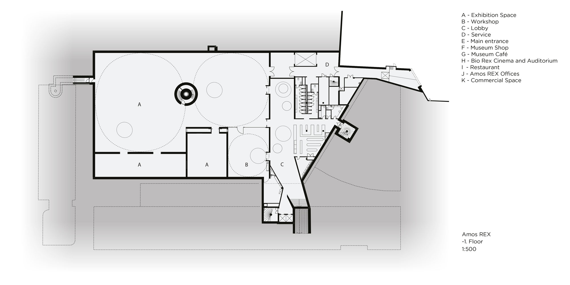
Mit der jüngsten Sanierung durch JKMM hat nun auch ein neuer Nutzer Einzug in den Glaspalast gehalten. Das Amos Anderson-Kunstmuseum wird künftig rund die Hälfte des Gebäudes einschließlich des Kinos belegen und dort unter anderem seine Verwaltung und den Museumsladen unterbringen. Für die Ausstellungen schufen JKMM indes einen eigenen Neubau unter dem Vorplatz des historischen Gebäudes. Seine großen Kuppeln mit kreisrunden Oberlichtern und Betonfliesenbelag ragen nun über die Asphaltfläche empor und bilden ein Eldorado für Skater und spielende Kinder. Der große Ausstellungssaal darunter hat eine Fläche von fast 1000 Quadratmetern und misst an seiner höchsten Stelle 9,45 Meter.
Hergestellt sind die Kuppeln aus 20 Zentimeter Stahlbeton mit umlaufenden Spannbeton-Ringankern, die den Querschub aufnehmen. Darauf ließen die Architekten eine dicke Dämmschicht und eine Schüttung aus Glasschaumgranulat aufbringen. Auf dieser wiederum bildet eine zweite, 12 Zentimeter dicke Stahlbetonschicht den Unterbau für den Fliesen- und Asphaltbelag.
Der Standort könnte prominenter nicht sein: im und unter dem Vorplatz des Lasipalatsi (Glaspalast) schräg gegenüber dem finnischen Parlamentsgebäude. Viljo Revell, Heimo Riihimäki und Niilo Kokko entwarfen das Gebäude 1936 als temporären Vergnügungspavillon für die Olympischen Sommerspiele 1940, die später auf 1952 verschoben wurden. Entgegen seiner ursprünglichen Zweckbestimmung hat sich der Lasipalatsi bis heute als Wahrzeichen Helsinkis gehalten und zieht mit Läden, Restaurants und dem Kino »Bio Rex« die Kunden an. Aber baufällig ist er geworden und musste schon mehrfach saniert werden.
Mit der jüngsten Sanierung durch JKMM hat nun auch ein neuer Nutzer Einzug in den Glaspalast gehalten. Das Amos Anderson-Kunstmuseum wird künftig rund die Hälfte des Gebäudes einschließlich des Kinos belegen und dort unter anderem seine Verwaltung und den Museumsladen unterbringen. Für die Ausstellungen schufen JKMM indes einen eigenen Neubau unter dem Vorplatz des historischen Gebäudes. Seine großen Kuppeln mit kreisrunden Oberlichtern und Betonfliesenbelag ragen nun über die Asphaltfläche empor und bilden ein Eldorado für Skater und spielende Kinder. Der große Ausstellungssaal darunter hat eine Fläche von fast 1000 Quadratmetern und misst an seiner höchsten Stelle 9,45 Meter.
Hergestellt sind die Kuppeln aus 20 Zentimeter Stahlbeton mit umlaufenden Spannbeton-Ringankern, die den Querschub aufnehmen. Darauf ließen die Architekten eine dicke Dämmschicht und eine Schüttung aus Glasschaumgranulat aufbringen. Auf dieser wiederum bildet eine zweite, 12 Zentimeter dicke Stahlbetonschicht den Unterbau für den Fliesen- und Asphaltbelag.
Weitere Informationen:
Projektsteuerung: Haahtela-rakennuttaminen Oy
Tragwerksplanung: Sipti Oy, Sweco Rakennetekniikka Oy (Kuppeln)
HLS-Planung: Ramboll Talotekniikka Oy
Elektroplanung: Ramboll Talotekniikka Oy
Raumakustik, Schallschutz: Ins.tsto Heikki Helimäki Oy / Helimäki Akustikot
Brandschutz: L2 Paloturvallisuus Oy
Projektsteuerung: Haahtela-rakennuttaminen Oy
Tragwerksplanung: Sipti Oy, Sweco Rakennetekniikka Oy (Kuppeln)
HLS-Planung: Ramboll Talotekniikka Oy
Elektroplanung: Ramboll Talotekniikka Oy
Raumakustik, Schallschutz: Ins.tsto Heikki Helimäki Oy / Helimäki Akustikot
Brandschutz: L2 Paloturvallisuus Oy















































