Urban weiterentwickelt: Erweiterung Historisches Museum in Frankfurt
Foto: Roland Halbe
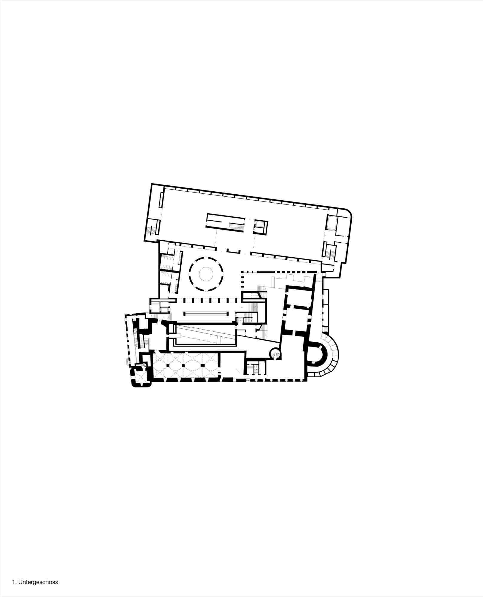
Umso wichtiger ist es, dass der Neubau des Historischen Museums ein Zeichen für einen differenzierten Umgang mit der Geschichte setzt. Hier wurde eben nicht die Wiederherstellung der Vorkriegsstadt zum Ideal, sondern die Weiterentwicklung des heutigen Gefüges. Für eine gewachsene, immer wieder überformte Stadt ist das Historische Museum sowieso das beste Beispiel, sitzt es doch am Mainufer in einem Konglomerat aus fünf Gebäudeteilen aus acht Jahrhunderten. Diese wurden bis 2012 von Diezinger & Kramer Architekten saniert, wobei etliche Um- und Einbauten entfernt wurden, um die Innenräume besser nutzen zu können.
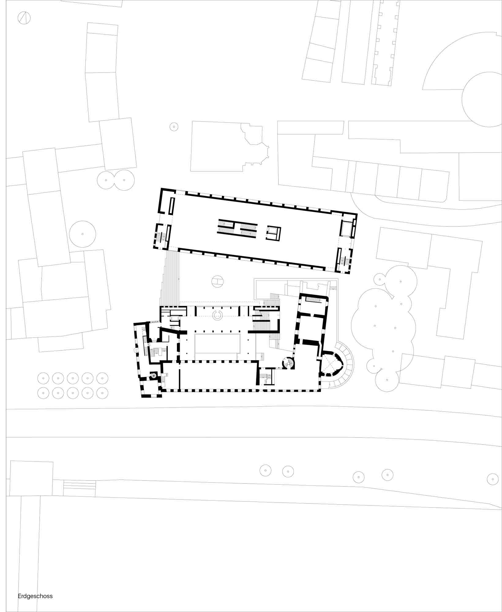
Diesen Umgang mit der Geschichte setzt der Neubau auf städtischer Ebene fort: Es wird aufgeräumt, repariert und weiterentwickelt. Der Entwurf von Lederer Ragnarsdóttir Oei hat drei Teile. Rückseitig wurde ein hohes, schmales Gebäude mit eigensinniger Rauten-Ornamentik vor das historische Ensemble gestellt, es beinhaltet den zentralen Eingang und die Verwaltung. Das Ausstellungshaus rückten die Architekten weit nach Norden und drehten es leicht in der Achse. So verlängert der neue Flügel die Achse der Saalgasse. Der städtebauliche Eingriff schafft Verbindungen zwischen den verschiedenen Stadtschichten.
Außerdem entsteht zwischen den Neubauten ein neuer, leicht erhöhter Museumsplatz mit breiten Sitzstufen. An seinen offenen Schmalseiten integriert der Platz im Osten Frankfurts ältesten Bau, den staufischen Saalhof, und im Westen das Haus Wertheym, das älteste Fachwerkhaus der Stadt, in seine Architektur. Das doppelte, spitze Satteldach des Ausstellungshauses sowie die Fassaden aus rötlichem Sandstein schaffen weitere Verbindungen zur Umgebung und vermitteln zwischen Gegenwart und Geschichte, ohne allzu sehr in die Postmoderne abzudriften.
Fröhlich ignoriert der Museumsbau also die Grenzen zwischen Alt und Neu sowie zwischen Innen und Außen. Er schafft atemberaubende Sichtverbindungen und urbane Qualitäten, die es in der eng verwinkelten Frankfurter Altstadt zuvor noch nie gegeben hat.














