// Check if the article Layout ?>
Verspielt minimalistisch: Fonte Boa Haus in Fartosa
Foto: José Campos
Nur noch eine schmale Steinmauer verweist auf die alte romanische Villa, die vorher das Grundstück einnahm. Wie ein gestrandetes Schiff dockt nun ein graziler weißer Korpus an den roh belassenen »Betonsteg« an, der das Wohnhaus als einziger Ankerpunkt mit der öffentlichen Straße verbindet. Aus der Frontalperspektive fast monumental anmutend, nimmt das Haus mithilfe zweier schmaler Betonsockel spielerisch die Versprünge des Geländes auf. Etwas abseits und geschützt von der Straße, situiert sich der Baukörper freistehend inmitten der weitläufigen Landschaft und lässt das Gelände und die bereits bestehenden Bäume dabei nahezu unberührt.
Der klare, geometrische Grundriss, das verzinkte Satteldach und die erhöhte Position des Hauses scheinen indirekt noch Bezug zu ursprünglichen Haustypologien des Ortes zu nehmen. Betreten wird es über einen im Süden gelegenen Eingang und eine offene, unter dem Terrain liegende Garageneinfahrt. Entlang roher Betonwände und einem kleinen Pavillon, der die Wäscheräume beherbergt, gelangt man zu einer schmalen Betontreppe, die zum Geländeniveau des Gebäudes hinaufführt. Im Wechselspiel zwischen Materialien, Neugier weckenden Ein- und Ausblicken und kalkuliert gesetzten Gebäudefluchten wird das Betreten des Wohnhauses »inszeniert«. Oben angekommen, bilden treppenförmige, großzügige Plattformen eine Art Vorterrasse und überbrücken die letzten Meter zum eigentlichen Hauseingang.
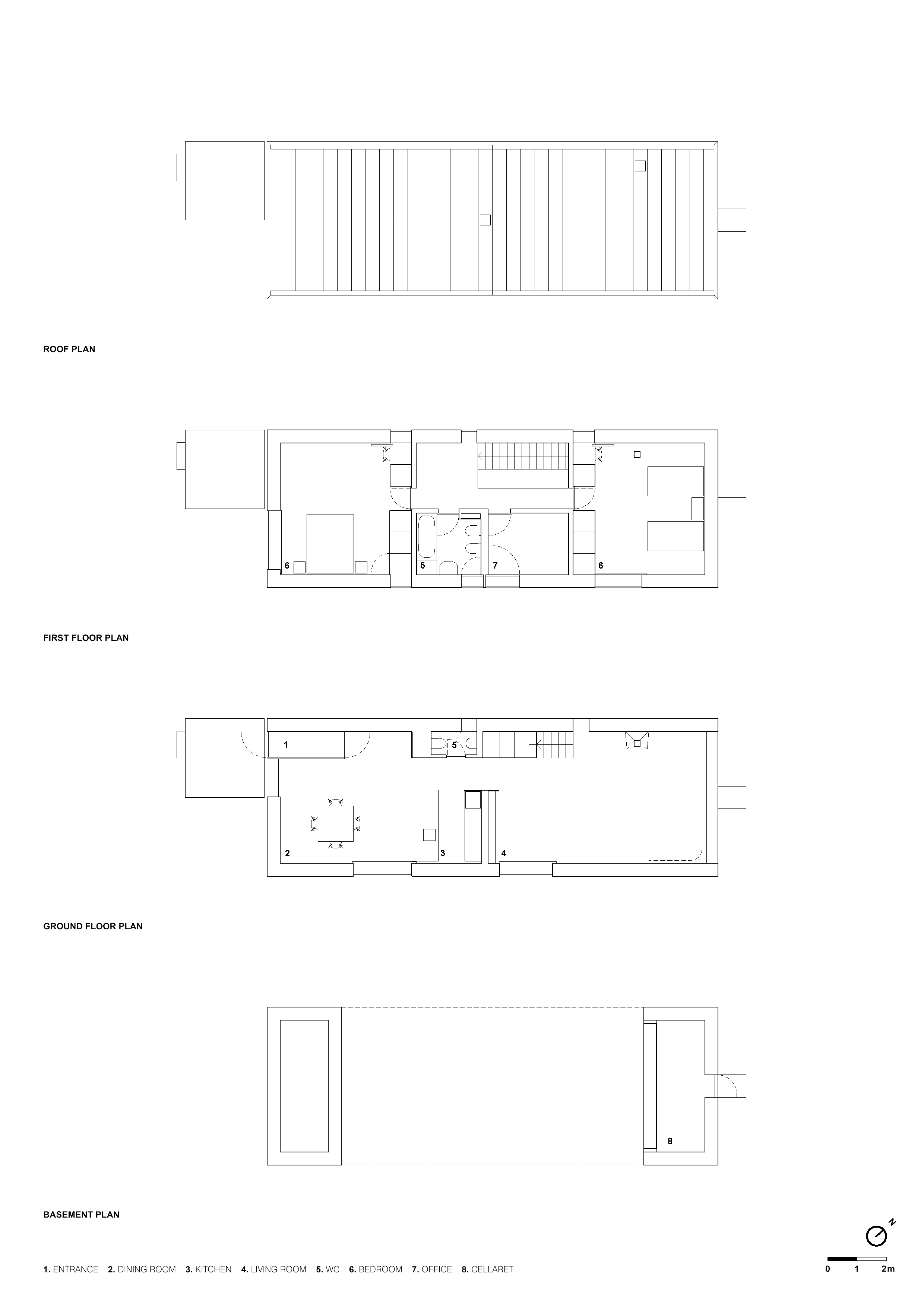
Den Mittelpunkt des Hauses bildet ein hölzernes Treppenmöbel, welches im Erdgeschoss den Wohn- vom Essraum und im Obergeschoss die beiden Schlafzimmer voneinander trennt und somit beide Geschosse in drei Abschnitte teilt. Stauraum bildend verstärkt es nicht nur die längliche Ausrichtung des Hauses, es scheint alles um sich herum zu organisieren und dabei mit Boden und Mobiliar zu verschmelzen. Der schmale Betonsockel bietet zudem Platz für einen kleinen Weinkeller und wird über einen separaten Zugang erschlossen. Den Architekten gelingt eine äußerst präzise Inszenierung geometrischer Formen. Die Räumlichkeiten innen sowie außen bestechen durch schlichte Eleganz, stimmige Materialwahl und Liebe zum Detail. Dabei kreiert jeder Raum seinen ganz individuellen Bezug zum Außenraum. Divergente Fensteröffnungen in verschiedensten Größen und Ausrichtungen, aber auch die hölzernen Böden und das Mobiliar holen die Natur nicht nur ein Stück weit in das Gebäude hinein, sie scheinen die Schwelle von außen und innen beinahe verschwinden zu lassen.
Der klare, geometrische Grundriss, das verzinkte Satteldach und die erhöhte Position des Hauses scheinen indirekt noch Bezug zu ursprünglichen Haustypologien des Ortes zu nehmen. Betreten wird es über einen im Süden gelegenen Eingang und eine offene, unter dem Terrain liegende Garageneinfahrt. Entlang roher Betonwände und einem kleinen Pavillon, der die Wäscheräume beherbergt, gelangt man zu einer schmalen Betontreppe, die zum Geländeniveau des Gebäudes hinaufführt. Im Wechselspiel zwischen Materialien, Neugier weckenden Ein- und Ausblicken und kalkuliert gesetzten Gebäudefluchten wird das Betreten des Wohnhauses »inszeniert«. Oben angekommen, bilden treppenförmige, großzügige Plattformen eine Art Vorterrasse und überbrücken die letzten Meter zum eigentlichen Hauseingang.
Den Mittelpunkt des Hauses bildet ein hölzernes Treppenmöbel, welches im Erdgeschoss den Wohn- vom Essraum und im Obergeschoss die beiden Schlafzimmer voneinander trennt und somit beide Geschosse in drei Abschnitte teilt. Stauraum bildend verstärkt es nicht nur die längliche Ausrichtung des Hauses, es scheint alles um sich herum zu organisieren und dabei mit Boden und Mobiliar zu verschmelzen. Der schmale Betonsockel bietet zudem Platz für einen kleinen Weinkeller und wird über einen separaten Zugang erschlossen. Den Architekten gelingt eine äußerst präzise Inszenierung geometrischer Formen. Die Räumlichkeiten innen sowie außen bestechen durch schlichte Eleganz, stimmige Materialwahl und Liebe zum Detail. Dabei kreiert jeder Raum seinen ganz individuellen Bezug zum Außenraum. Divergente Fensteröffnungen in verschiedensten Größen und Ausrichtungen, aber auch die hölzernen Böden und das Mobiliar holen die Natur nicht nur ein Stück weit in das Gebäude hinein, sie scheinen die Schwelle von außen und innen beinahe verschwinden zu lassen.
weitere Informationen:
Architekten: João Mendes Ribeiro
Mitarbeiter: Joana Figueiredo, Catarina Fortuna, Filipe Catarino Fläche: 180 m²
Statik: Paulo Maranha (ECA Projectos)
Wasserbauingenieure: Paulo Sampaio (ECA Projectos)
Elektroingenieure: Luís Ribeiro (ECA Projectos)
Architekten: João Mendes Ribeiro
Mitarbeiter: Joana Figueiredo, Catarina Fortuna, Filipe Catarino Fläche: 180 m²
Statik: Paulo Maranha (ECA Projectos)
Wasserbauingenieure: Paulo Sampaio (ECA Projectos)
Elektroingenieure: Luís Ribeiro (ECA Projectos)






























