// Check if the article Layout ?>
Vier vereint und doch für sich: Mehrgenerationenhaus Flims
Foto: Claudia Luperto
Ein offener Treffpunkt, an dem man sich generationsübergreifend begegnen, austauschen und gegenseitig unterstützen kann: Derartige Wohnprojekte wurden bereits vermehrt in der Schweiz umgesetzt und finden mittlerweile auch in Deutschland immer größeren Anklang.
Die „ Casa da Pign“ assimiliert sich mit ihrer aus Dämmbeton gegossenen Fassade und der innen wie außen sichtbar gelassenen Holzschalung, in die graue, unebene Bergwelt. Zudem besteht der leichte Misaporbeton der 80 cm dicken Wände, aus einer diffusionsoffenen, mineralischen Gesteinskörnung, die sich also auch haptisch der Umgebung anpassen und obendrein für ein angenehmes Wohnklima sorgen. Trichterförmige, präzise positionierte Fensteröffnungen, variierend dimensioniert, rahmen wesentliche Ausblicke in die Landschaft und sind wohlüberlegt in die Gesamtkomposition installiert. Von außen wirken die Öffnungen wie aus der massiven Wand herausgeschnitten und zeichnen sich aufgrund der hellen Holzfassungen von dem felsartigen Betonvolumen ab. Das leicht überstehende Satteldach, ist unterseitig gleichermaßen mit Holz veredelt, ebenso wie Decke und Boden der beiden Loggien.
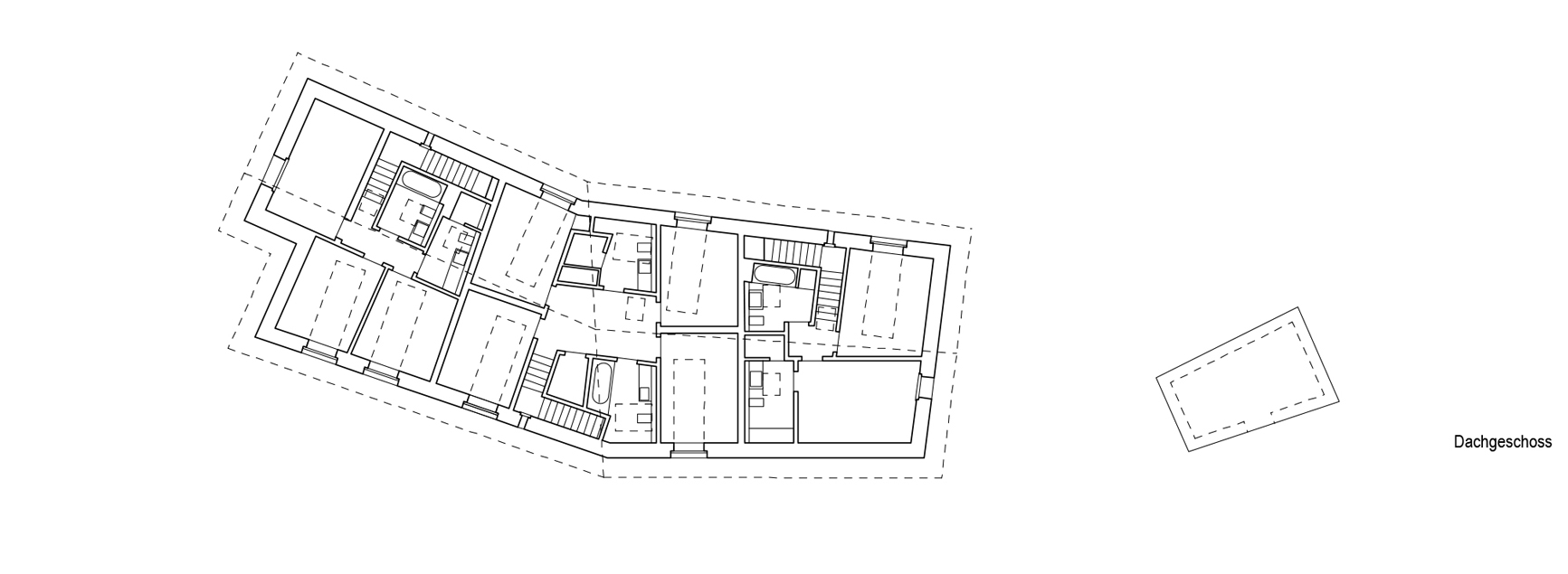
Um sich unauffällig in den vorhandenen, kleingliedrigen Städtebau einzufügen, ist der längliche Baukörper mittig leicht geknickt. Die innere dadurch winklig zueinander stehende Raumgeometrie, ermöglicht von einigen Zimmern aus diagonale Blickbeziehungen. Der strukturierte Aufbau des Hauses trägt zum Gemeinwohl der Bewohner bei: Man betritt das Gebäude im Erdgeschoss, in dem sich neben großzügigen Gemeinschaftsbereichen auch eine altersgerechte Wohnung befindet. Über ein gemeinsames Treppenhaus im Kern gelangt man zu den Wohn- und Essräumen der drei weiteren Familien im Obergeschoss. Hier besteht die Möglichkeit die Türen zu schließen, wodurch man drei separierte Wohneinheiten erhält und ganz unter sich sein kann. Die Schlaf- und Badezimmer im Dachgeschoss sind nur über die Treppen der jeweiligen Wohnungen zu erreichen. Somit ergibt sich eine von unten aufsteigende Privatisierung der Räume, welche maßgeblich ist für ein gelungenes Zusammenleben der vier Familien.
Der moderne Bau mit seiner kubischen Formensprache fügt sich ungekünstelt in das bündnerische Dorfbild ein.
Die „ Casa da Pign“ assimiliert sich mit ihrer aus Dämmbeton gegossenen Fassade und der innen wie außen sichtbar gelassenen Holzschalung, in die graue, unebene Bergwelt. Zudem besteht der leichte Misaporbeton der 80 cm dicken Wände, aus einer diffusionsoffenen, mineralischen Gesteinskörnung, die sich also auch haptisch der Umgebung anpassen und obendrein für ein angenehmes Wohnklima sorgen. Trichterförmige, präzise positionierte Fensteröffnungen, variierend dimensioniert, rahmen wesentliche Ausblicke in die Landschaft und sind wohlüberlegt in die Gesamtkomposition installiert. Von außen wirken die Öffnungen wie aus der massiven Wand herausgeschnitten und zeichnen sich aufgrund der hellen Holzfassungen von dem felsartigen Betonvolumen ab. Das leicht überstehende Satteldach, ist unterseitig gleichermaßen mit Holz veredelt, ebenso wie Decke und Boden der beiden Loggien.
Um sich unauffällig in den vorhandenen, kleingliedrigen Städtebau einzufügen, ist der längliche Baukörper mittig leicht geknickt. Die innere dadurch winklig zueinander stehende Raumgeometrie, ermöglicht von einigen Zimmern aus diagonale Blickbeziehungen. Der strukturierte Aufbau des Hauses trägt zum Gemeinwohl der Bewohner bei: Man betritt das Gebäude im Erdgeschoss, in dem sich neben großzügigen Gemeinschaftsbereichen auch eine altersgerechte Wohnung befindet. Über ein gemeinsames Treppenhaus im Kern gelangt man zu den Wohn- und Essräumen der drei weiteren Familien im Obergeschoss. Hier besteht die Möglichkeit die Türen zu schließen, wodurch man drei separierte Wohneinheiten erhält und ganz unter sich sein kann. Die Schlaf- und Badezimmer im Dachgeschoss sind nur über die Treppen der jeweiligen Wohnungen zu erreichen. Somit ergibt sich eine von unten aufsteigende Privatisierung der Räume, welche maßgeblich ist für ein gelungenes Zusammenleben der vier Familien.
Der moderne Bau mit seiner kubischen Formensprache fügt sich ungekünstelt in das bündnerische Dorfbild ein.











