// Check if the article Layout ?>
Vogelbeobachtung am Fjord: Tipperne Vogelschutzgebiet
Foto: Rasmus Norlander
An der Westküste Dänemarks liegt der Ringkøbing Fjord. An der Spitze einer Halbinsel, die in den Fjord ragt, ist nun das Vogelbeobachtungs- und Forschungszentrum entstanden. Jedes Jahr ist der Ort ein Rastpunkt für Zugvögel und gilt als einer der ältesten Orte europäischer Vogelzählung. Früher war der Zugang für die Öffentlichkeit stark limitiert. Mit den Maßnahmen von Johansen Skovsted Arkitekter können nun mehr Menschen das Spektakel beobachten, ohne die Vögel oder die Forscher dabei zu beeinträchtigen.
Die neu geschaffenen Strukturen haben alle ihren eigenen Charakter. Die Vogelbeobachtungshütte, der Observierungsturm, die Werkstatt, neue Wege und die Forschungsstation sind über das Gelände verteilt.
Schiffsmasten und Konstruktion
Der Observierungsturm besteht aus einem Stahlgerüst, das in einer lokalen Mastfabrik hergestellt wurde. Seine durchlässige Struktur besteht aus dreieckigen Rahmen, die jeweils die vertikalen Eisenstäbe halten. Die 50 und 65 mm dicken Stäbe nehmen die Druckkräfte der Konstruktion auf, während jene mit 22 mm Durchmesser gleichzeitig das Geländer bilden und den Zugkräften entgegenwirken. Erst im obersten Geschoss sind alle drei Wände mit Platten aus galvanisiertem Eisen und transluzentem Kunststoff geschlossen. Je nachdem ob die Forscher konzentriert zählen müssen oder Besucher mit freiem Blick beobachten möchten, können dort Öffnungen geschlossen werden.
Der Observierungsturm besteht aus einem Stahlgerüst, das in einer lokalen Mastfabrik hergestellt wurde. Seine durchlässige Struktur besteht aus dreieckigen Rahmen, die jeweils die vertikalen Eisenstäbe halten. Die 50 und 65 mm dicken Stäbe nehmen die Druckkräfte der Konstruktion auf, während jene mit 22 mm Durchmesser gleichzeitig das Geländer bilden und den Zugkräften entgegenwirken. Erst im obersten Geschoss sind alle drei Wände mit Platten aus galvanisiertem Eisen und transluzentem Kunststoff geschlossen. Je nachdem ob die Forscher konzentriert zählen müssen oder Besucher mit freiem Blick beobachten möchten, können dort Öffnungen geschlossen werden.
Halt machen im Versteck
Entlang des Weges durch das Vogelschutzgebiet liegt eine weitere dreieckige Struktur. Das Gebäude aus 6 mm dicken Cortenstahlplatten ist allerdings im Gegensatz zum Turm beinahe komplett geschlossen und hat einen starken Bezug zum Boden. Lediglich ein schmaler Schlitz im oberen Teil bietet die Möglichkeit, unentdeckt aus der Nähe am Tierleben teilzuhaben. Hier dienen die verstärkten Kanten aus Montageprofilen gleichzeitig als Regenrinnen, die anfallendes Wasser in das Terrain ableiten.
Entlang des Weges durch das Vogelschutzgebiet liegt eine weitere dreieckige Struktur. Das Gebäude aus 6 mm dicken Cortenstahlplatten ist allerdings im Gegensatz zum Turm beinahe komplett geschlossen und hat einen starken Bezug zum Boden. Lediglich ein schmaler Schlitz im oberen Teil bietet die Möglichkeit, unentdeckt aus der Nähe am Tierleben teilzuhaben. Hier dienen die verstärkten Kanten aus Montageprofilen gleichzeitig als Regenrinnen, die anfallendes Wasser in das Terrain ableiten.
Holzkonstruktion trifft Aluminium
Der dritte Neubau ist die Werkstatt nach dem Vorbild improvisierter Jagdhütten. Die einfache Holzstruktur wird durch innenliegende Aluminiumplatten mit 3 mm Dicke ausgesteift. Das helle Aluminium bildet auch farblich einen Kontrast zum schwarz gebeizten Holz außen. Durch transluzente GFK-Platten fällt gleichmäßiges Licht in die Räume der Werkstatt.
Der dritte Neubau ist die Werkstatt nach dem Vorbild improvisierter Jagdhütten. Die einfache Holzstruktur wird durch innenliegende Aluminiumplatten mit 3 mm Dicke ausgesteift. Das helle Aluminium bildet auch farblich einen Kontrast zum schwarz gebeizten Holz außen. Durch transluzente GFK-Platten fällt gleichmäßiges Licht in die Räume der Werkstatt.
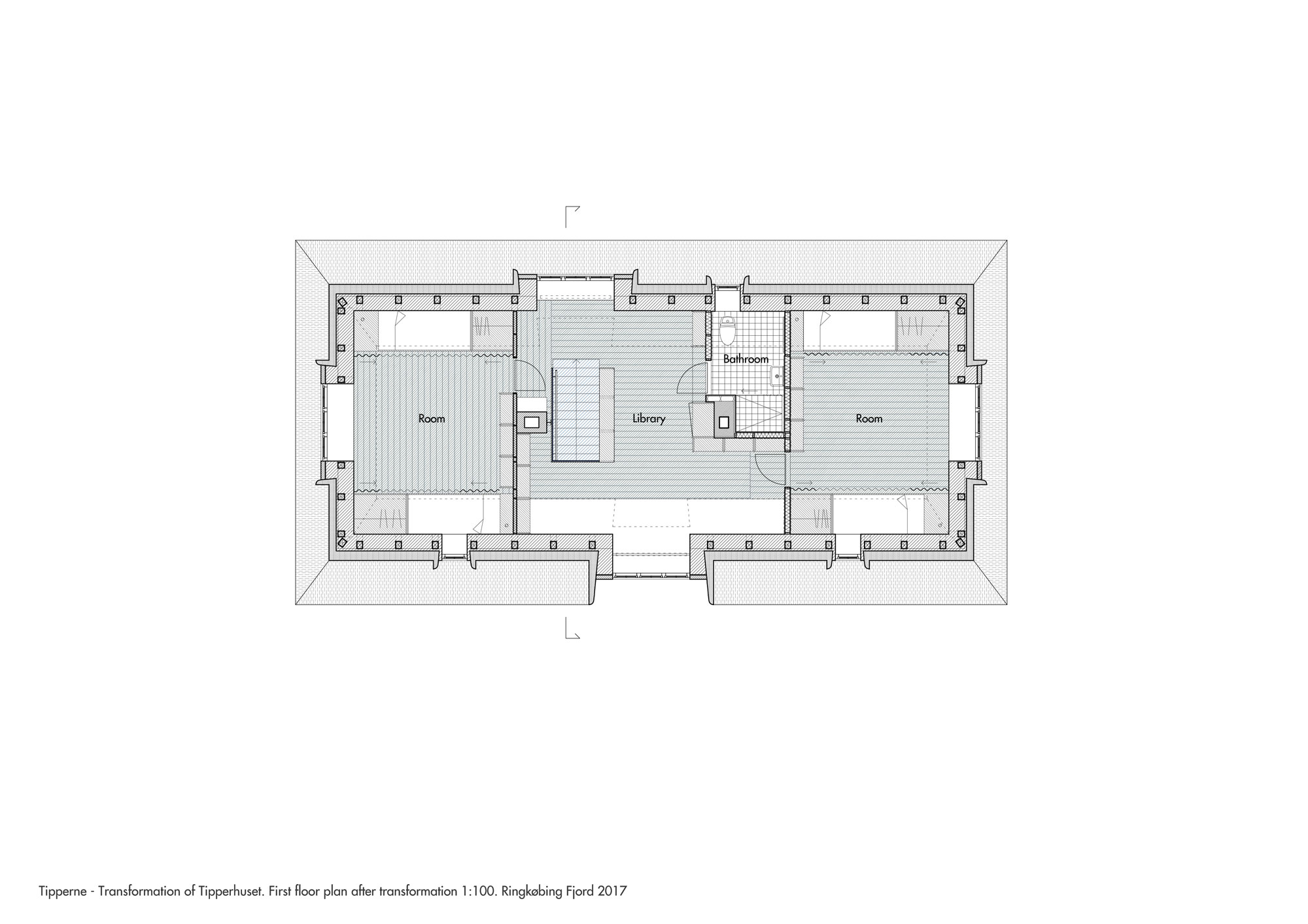
Das bereits bestehende Tipper Haus wurde zum Besucher und Forschungszentrum umgebaut. Um den Charakter und die Qualität des Baus zu erhalten, arbeiteten Johansen Skovsted Arkitekter mit subtilen Eingriffen. Außen zeugt lediglich die Rampe zum Eingang von der Veränderung. Im Erdgeschoss wurde neben der zentralen Küche ein Ess- und Ausstellungszimmer eingerichtet sowie ein Multifunktionsraum, in dem beispielsweise Vorträge stattfinden können. Ein Geschoss darüber flankieren zwei Schlafzimmer mit Alkoven die Bibliothek. Rote Leitungen, Heizkörper und Windmesser an den Wänden dienen der Identifikation der Forschungsstation, während Einbaumöbel aus OSB die faserige Textur des Reetdachs und der Pflanzen in der Landschaft aufgreifen.






















