// Check if the article Layout ?>
Vorn Klassizimus, hinten Collage: Stadtteilrathaus in Gent
Foto: Filip Dujardin
Auch die flämische Stadt Gent ist über die Jahrzehnte immer wieder durch Eingemeindungen gewachsen. So wurde auch der einst selbständige Ort Ledeberg zum Teil der Großstadt und sein klassizistisches Rathaus mit Hochzeits-, Gerichts- und Veranstaltungssälen zum einfachen Bürgerbüro umfunktioniert. Die einst so stolzen Raumfluchten wurden zunehmend verbaut und zu allem Überfluss auch noch eine Polizeiwache in einer recht schäbigen Baracke im Hinterhof einquartiert.
Ordnung zu schaffen lautete somit die oberste Pflicht der Architekten de vylder vinck taillieu, die 2006 den Auftrag für Sanierung und Umbau des Rathauses erhielten. Über fast zehn Jahre zogen sich Planung und Bau hin – ein Zeichen dafür, dass die Architekten nicht auf einfache Lösungen schielten, aber auch dafür, dass die Bausubstanz in schlechterem Zustand war als erwartet.
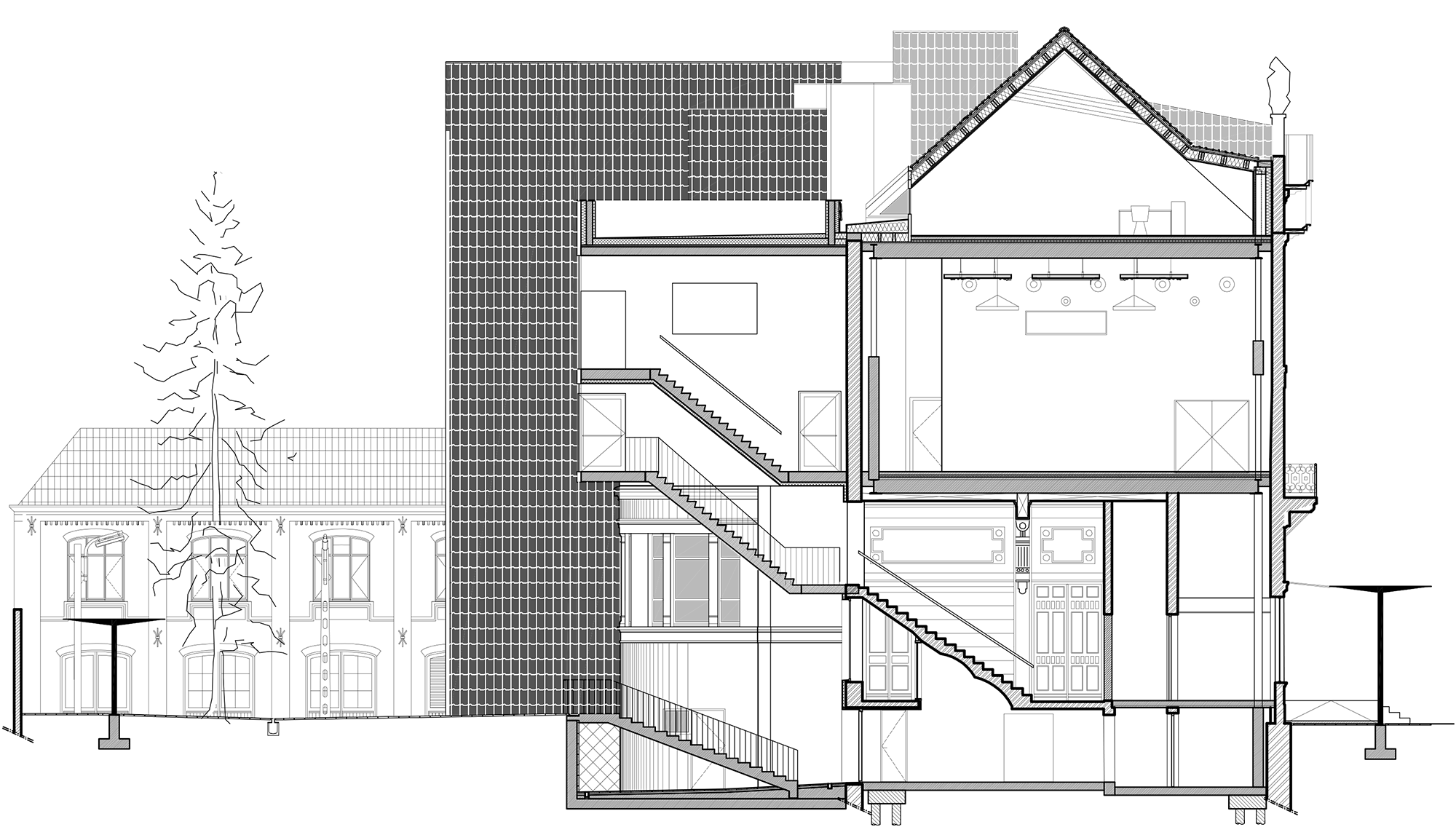
Beides lässt sich an dem nun fertiggestellten Umbau leicht ablesen. In der weiß gestrichenen klassizistischen Platzfront lassen nur die eigenwilligen Dacheinschnitte erahnen, dass der Bau dahinter grundlegend »umgeräumt« wurde. Die Kerben in der Dachfläche belichten die Polizeiwache, die aus ihrem Schuppen im Hof aus- und in den ehemaligen Dachboden des Rathauses eingezogen ist.
Vom Innenhof aus hingegen ist der Altbau hinter all seinen neuen Erkern und Anbauten kaum wiederzuerkennen. Zwei davon beherbergen die neuen Aufzüge und Treppenhäuser, die das Dachgeschoss überhaupt erst nutzbar machen. Ihre Fassaden sind mit den gleichen glasierten schwarzen Ziegeln verkleidet wie das Rathausdach. Ein dritter Erker erdrückt beinahe die halbrunde Exedra des Hochzeitssaals im Erdgeschoss. Sie blieb als einziger älterer Anbau an das Rathaus erhalten.
Im Gebäudeinneren versuchten die Architekten erst gar nicht, das alte Mauerwerk für die neue Nutzung zu ertüchtigen: Stattdessen bildet es nur noch die Hülle für eine Reihe frei stehender, mehrgeschossiger Stahl- und Betontische samt neuer Querwände für die Aussteifung. Immer wieder entsteht so ein spannungsvolles, mitunter dekonstruktivistisch anmutendes Nebeneinander von Alt und Neu. Stuckverzierte Pilaster stehen direkt neben neuen Betonsäulen, weiß lackierte Stahlträger spannen quer über Wandöffnungen mit historischen, doppelflügligen Holztüren.
Besonders stolz sind die Architekten darauf, dass ihr Puzzlespiel der Räume und Nutzungen letztlich den eigentlich geplanten Neubau für die Polizeiwache im Hof entbehrlich macht. Denn Überflüssiges nicht zu bauen, ist der erste Schritt zum nachhaltigen Bauen. Die Stadt Gent hat nun offenbar Appetit auf mehr bekommen: Sie beauftragte die Architekten im Anschluss mit einer Studie, wie sich auch die restlichen Grundstücke des Baublocks von ihren baufälligen Schuppen und Garagen im Innenhof befreien ließen.
Ordnung zu schaffen lautete somit die oberste Pflicht der Architekten de vylder vinck taillieu, die 2006 den Auftrag für Sanierung und Umbau des Rathauses erhielten. Über fast zehn Jahre zogen sich Planung und Bau hin – ein Zeichen dafür, dass die Architekten nicht auf einfache Lösungen schielten, aber auch dafür, dass die Bausubstanz in schlechterem Zustand war als erwartet.
Beides lässt sich an dem nun fertiggestellten Umbau leicht ablesen. In der weiß gestrichenen klassizistischen Platzfront lassen nur die eigenwilligen Dacheinschnitte erahnen, dass der Bau dahinter grundlegend »umgeräumt« wurde. Die Kerben in der Dachfläche belichten die Polizeiwache, die aus ihrem Schuppen im Hof aus- und in den ehemaligen Dachboden des Rathauses eingezogen ist.
Vom Innenhof aus hingegen ist der Altbau hinter all seinen neuen Erkern und Anbauten kaum wiederzuerkennen. Zwei davon beherbergen die neuen Aufzüge und Treppenhäuser, die das Dachgeschoss überhaupt erst nutzbar machen. Ihre Fassaden sind mit den gleichen glasierten schwarzen Ziegeln verkleidet wie das Rathausdach. Ein dritter Erker erdrückt beinahe die halbrunde Exedra des Hochzeitssaals im Erdgeschoss. Sie blieb als einziger älterer Anbau an das Rathaus erhalten.
Im Gebäudeinneren versuchten die Architekten erst gar nicht, das alte Mauerwerk für die neue Nutzung zu ertüchtigen: Stattdessen bildet es nur noch die Hülle für eine Reihe frei stehender, mehrgeschossiger Stahl- und Betontische samt neuer Querwände für die Aussteifung. Immer wieder entsteht so ein spannungsvolles, mitunter dekonstruktivistisch anmutendes Nebeneinander von Alt und Neu. Stuckverzierte Pilaster stehen direkt neben neuen Betonsäulen, weiß lackierte Stahlträger spannen quer über Wandöffnungen mit historischen, doppelflügligen Holztüren.
Besonders stolz sind die Architekten darauf, dass ihr Puzzlespiel der Räume und Nutzungen letztlich den eigentlich geplanten Neubau für die Polizeiwache im Hof entbehrlich macht. Denn Überflüssiges nicht zu bauen, ist der erste Schritt zum nachhaltigen Bauen. Die Stadt Gent hat nun offenbar Appetit auf mehr bekommen: Sie beauftragte die Architekten im Anschluss mit einer Studie, wie sich auch die restlichen Grundstücke des Baublocks von ihren baufälligen Schuppen und Garagen im Innenhof befreien ließen.






















