// Check if the article Layout ?>
Weiße (Nutzungs-)vielfalt: Senioren- und Pflegewohnhaus in Leoben
Paul Ott
Der dreigeschossige, teilunterkellerte Neubau des Caritas-Pflegeheims steht in der Nähe des Stifts Göss im gleichnamigen Stadtteil von Leoben. Jedes seiner Geschosse beherbergt ein unterschiedliches Nutzungsprogramm: Im Erdgeschoss befinden sich öffentliche und halböffentliche Zonen, Küche, Verwaltung, Wäscherei, Therapie- und Seminarräume sowie Beratungszimmer, die von der steirischen Krebshilfe genutzt werden. Hinzu kommen eine Kapelle und ein Café, welches an das innen liegende, gebäudehohe Atrium angrenzt. Durch das Öffnen von Schiebetüren lassen sich – etwa für Veranstaltungen - verschiedene räumliche Konfigurationen herstellen.
Das erste Obergeschoss beherbergt zwei Wohngruppen für Demenzkranke , deren je zwölf Bewohner vorwiegend in Einzelzimmern untergebracht sind. Jede Wohngruppe verfügt über einen eigenen Essbereich mit davor liegender Loggia; hinzu kommt in dieser Etage eine dritte Freiterrasse an der Südfassade. Um dem Bewegungsdrang der Patienten zu entsprechen, ordneten die Architekten die Flure als ringförmige, geschlossene „Rundläufe“ an.
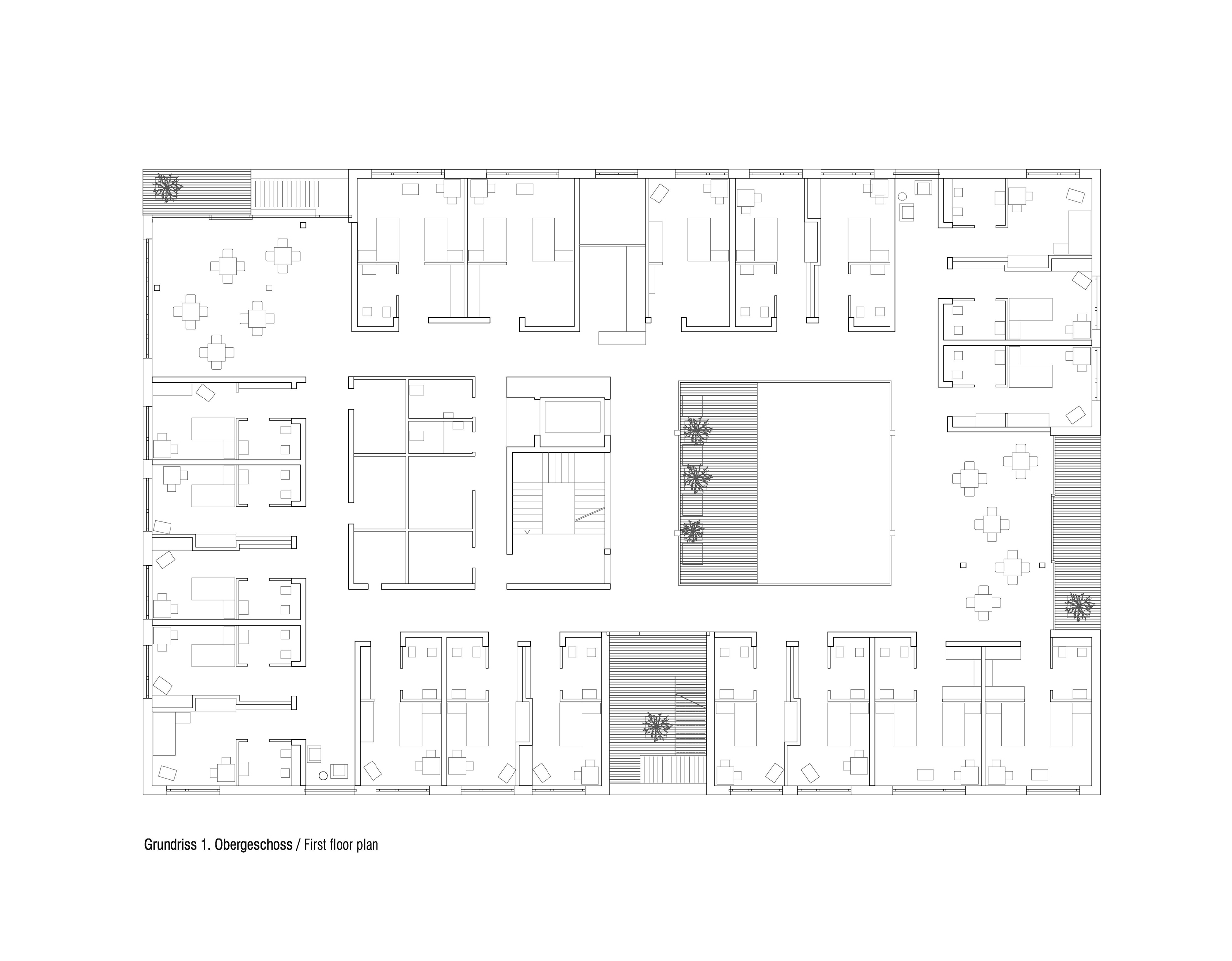
Im zweiten Obergeschoss ist eine weitere Pflegestation für 25 Bewohner mit gemeinschaftlichem Ess- und Aufenthaltsbereich sowie einer weiteren, nahezu 150 Quadratmeter großen Südterrasse untergebracht. Schnitt- und Angelpunkt aller Wege im Haus ist das Atrium, in dem zwei um 90 Grad gegeneinander verdrehten Galerien in den Obergeschossen diagonale Blickbeziehungen herstellen.
Als wichtige Entwurfsparameter bezeichnen die Architekten die Lichtführung sowie Aus- und Durchblicke, die auch von außen ablesbar sind. Nicht nur über das Atrium sowie die Terrassen und Loggien, sondern auch durch Fenster in den Fluren gelangt Tageslicht ins Gebäude, so dass dunkle, nur künstlich erhellte Bereiche vermieden werden.
Trotz seiner vielfältigen Nutzungen beansprucht das Erdgeschoss weniger Fläche als die beiden Obergeschosse. Dies nutzten die Architekten, um den Baukörper auf der Nord- und Südseite auskragen zu lassen und zu ebener Erde wettergeschützte Außenbereiche anzulegen. Außerdem konnten die Fluchttreppen auf diese Weise besser im Gebäudevolumen integriert werden.
Die geschossweise unterschiedliche Nutzung bildet sich in einem lebhaften Fassadenspiel ab. Lang gestreckte, teils über Eck geführte Fensterbänder gliedern den weiß verputzten Massivbau. Um dem Fassadenbild zusätzliche Prägnanz zu verleihen, sind die geschlossenen Flächen innerhalb dieser Bänder als Holzriegelelemente hergestellt, die leicht hinter die Putzfassade zurückspringen. Das gleiche, astige und lebhaft gemaserte Holz findet sich auch an der zurückspringenden Nord- und Südfassade des Erdgeschosses wieder.
Im Gebäudeinneren dominieren Holz und helle Oberflächen. Die Kapelle ist komplett mit Esche ausgekleidet. Hier sorgt ein Lattenrostschirm für gedämpftes Licht und eine kontemplative Atmosphäre.


















