// Check if the article Layout ?>
Weiße Wände für einen Maler: Wohnen und Arbeiten in Gaucín
Foto: Cristina Beltrán
Den renommierten Maler Joseba zog es zusammen mit seiner Frau Maria aus dem Baskenland in das pittoreske Dörfchen in der Provinz Málaga. Die in zartem Weiß erstrahlenden Häuser sitzen mit der Rückseite an der schroffen Berglandschaft und blicken vorne heraus auf eine atemberaubend idyllische Landschaft unter freiem Himmel. Fernab der touristisch geprägten Küste lassen sich verschiedenste Künstler in Gaucín nieder, um sich von der malerischen Umgebung inspirieren zu lassen.
Der Entwurf des »House for a painter« basiert auf drei Ausgangspunkten: Der intensiven Zusammenarbeit mit den Bauherren Maria und Joseba, dem ansehnlichen Ort Gaucín sowie der unmittelbaren Verknüpfung von Land und Aussicht mit dem Gebäude. DTR_Studio architects entwickelten ein aus dem kantigen Berg heraus geformtes Haus und steckten es in eine weiße, mit Licht und Schatten sowie Vor- und Rücksprüngen spielende Hülle.
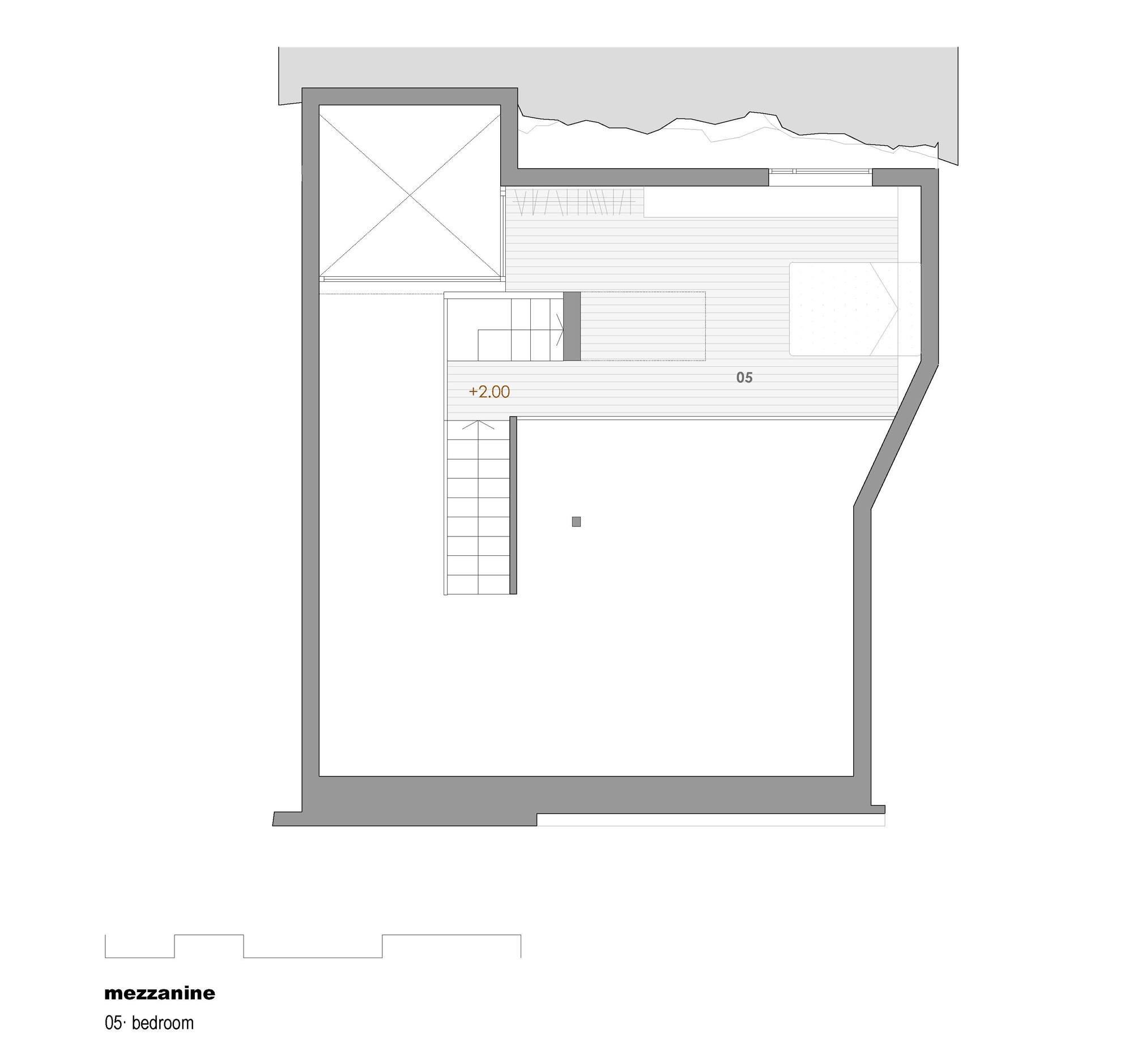
Das Herzstück des Hauses ist das zweigeschossige Malatelier im Erdgeschoss. Das für den Maler ungemein wichtige Tageslicht erhält dieser Raum größtenteils von einem aus dem Berg herausgeschlagenen Patio und einem schräg gegenüber liegenden straßenseitigen Fenster. Die weißen Wände der Fassade setzen sich auch im Inneren des Wohn- und Malateliers fort, um der andächtigen Kunst von Joseba nicht die Show zu stehlen. Das Schlafzimmer bildet eine Zwischenebene und steht als leichte Holzkonstruktion offen im Raum.
Im Obergeschoss ist die Küchenzeile und ein von natürlichem Licht durchflutetes Wohnzimmer untergebracht. Die beeindruckende Aussicht kann man zu heißen Tageszeiten vom Sofa aus oder in den kühleren Abendstunden vom über die gesamte Hausbreite angelegten Balkon aus genießen.
Drei Stufen führen vom Küchenbereich in einen weiteren rücklings liegenden Innenhof, welcher von einer den Berg verdeckenden Wand gefasst wird. Die hier positionierte Treppe führt auf die weiße »Dachoase«, wo ein mit eisblauem Wasser gefüllter Pool und die ins unendlich wirkende Aussicht zum Träumen und Verweilen einladen. Die Architekten von DTR_Studio haben willentlich nicht alles zwanghaft neu gestaltet, sondern sich von dem traditionsgeladenen Gaucín sowie dem dortigen Licht- und Schattenspiel leiten lassen und auf diese Weise ein in die stimmungsvolle Gegend passendes Haus für einen Maler geschaffen.
Im Obergeschoss ist die Küchenzeile und ein von natürlichem Licht durchflutetes Wohnzimmer untergebracht. Die beeindruckende Aussicht kann man zu heißen Tageszeiten vom Sofa aus oder in den kühleren Abendstunden vom über die gesamte Hausbreite angelegten Balkon aus genießen.
Drei Stufen führen vom Küchenbereich in einen weiteren rücklings liegenden Innenhof, welcher von einer den Berg verdeckenden Wand gefasst wird. Die hier positionierte Treppe führt auf die weiße »Dachoase«, wo ein mit eisblauem Wasser gefüllter Pool und die ins unendlich wirkende Aussicht zum Träumen und Verweilen einladen. Die Architekten von DTR_Studio haben willentlich nicht alles zwanghaft neu gestaltet, sondern sich von dem traditionsgeladenen Gaucín sowie dem dortigen Licht- und Schattenspiel leiten lassen und auf diese Weise ein in die stimmungsvolle Gegend passendes Haus für einen Maler geschaffen.
Weitere Informationen:
Fertiggestellt: 2015
Fläche: 163 m2
Bauleitung: Jose Miguel Vázquez, Jose María Olmedo
Mitarbeiter: Claudia Gutierrez, Alba Márquez
Kosten: Javier Sánchez Berdugo
Bauunternehmen: Criseba S. L. Fotograf: Cristina Beltrán
Fläche: 163 m2
Bauleitung: Jose Miguel Vázquez, Jose María Olmedo
Mitarbeiter: Claudia Gutierrez, Alba Márquez
Kosten: Javier Sánchez Berdugo
Bauunternehmen: Criseba S. L. Fotograf: Cristina Beltrán






















