Wochenendruine: Haus in Tschechien
Foto: BoysPlayNice
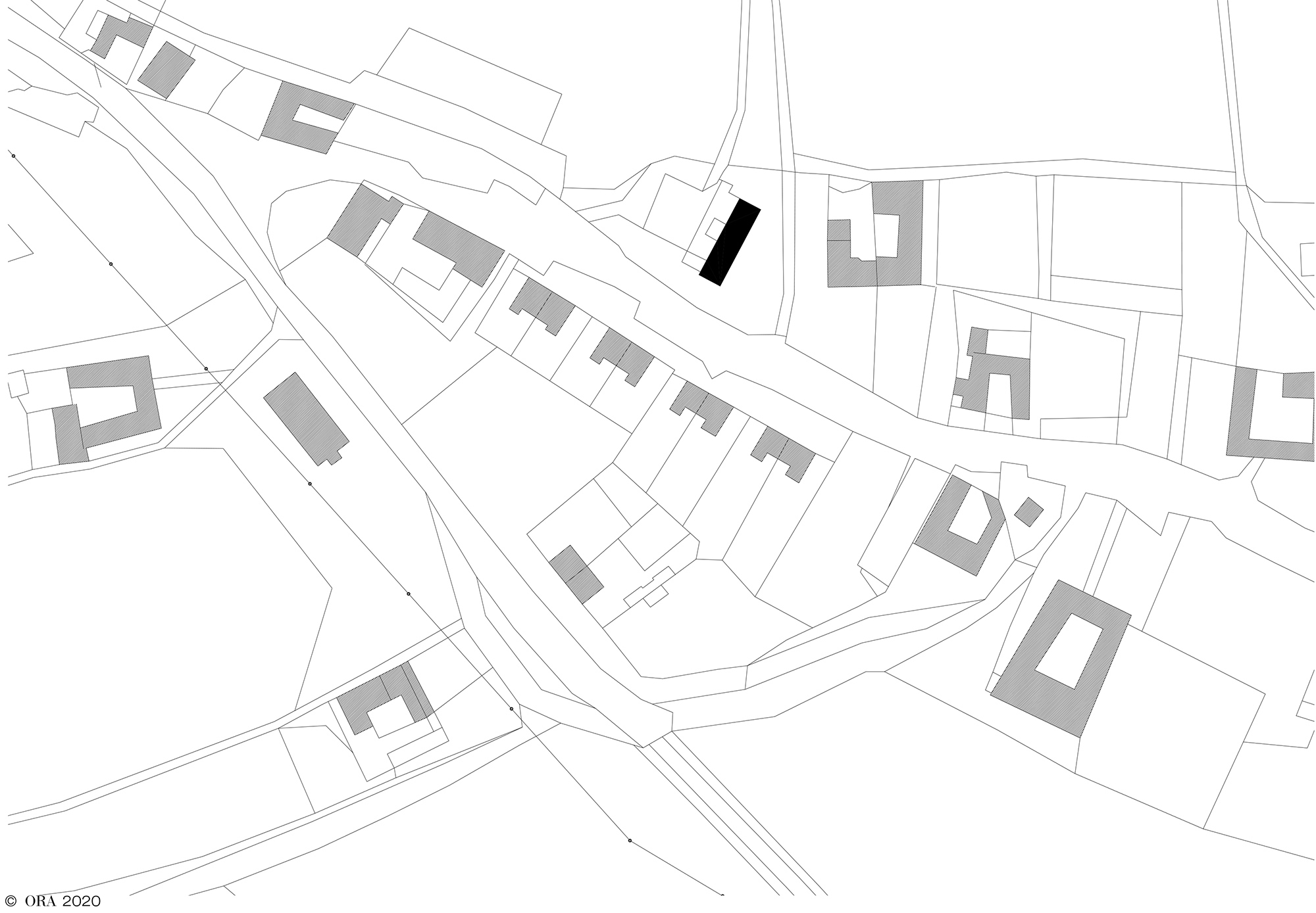
Das junge Architekturbüro ORA aus Znojmo wurde beauftragt, ein vollkommen zerstörtes ehemaliges Wohnhaus in der Tschechischen Republik in ein Ferienhaus umzuwandeln. Kurz erwogen die Architekten eine klassische Sanierung, denn selbst als Ruine hatte dieses Haus – einst Wohnhaus, dann Speichergebäude – seinen prächtigen Charme bewahrt: Die entkernten bloßen Ziegelmauern mit dem Dach erhoben sich selbstbewusst in der hügeligen Landschaft im Osten Tschechiens.
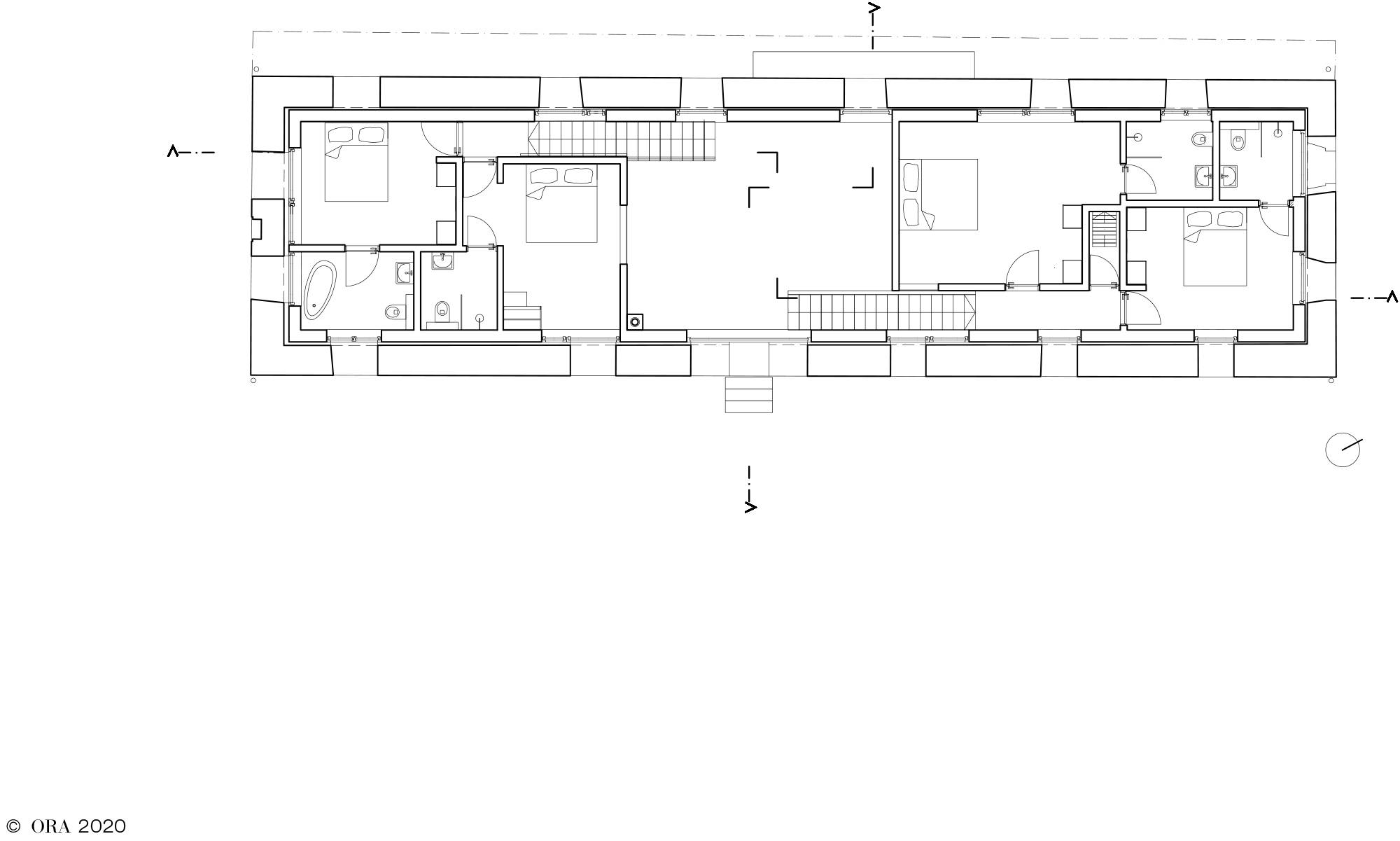
Die Architekten wollten stattdessen den Ruinencharakter bewahren und integrierten einen Neubau in den Bestand. Eine Fuge trennt Alt und Neu berührungslos. Kern des neuen Ferienhauses ist ein zentraler, zweigeschossiger Wohnraum. Neue oder größere Öffnungen im alten Mauerwerk betonen, dass die Nutzflächen neue Elemente in einem alten Bestand darstellen. Der Neubau unterscheidet sich sanft vom Bestand. So passen die Fenster nicht präzise in die Öffnungen der alten Wände, und an manchen Stellen taucht die alte Mauer im neuen Inneren auf – Alt und Neu durchdringen sich gegenseitig. So in Szene gesetzt, ist der Innenraum komfortabel, lichtdurchflutet und geräumig und ermöglicht zeitgemäßes Wohnen.
Viele Bauteile und Materialen wurden, wie etwa Holzbalken und Bretter, als Decken- und Fachwerk-Elemente, wiederverwendet. Die Architekten verstehen dieses Projekt als Manifest zum Umgang mit alten Gebäuden. Weder ein Abriss noch eine dogmatische Sanierung können die Authentizität des Alten bewahren. Gleichzeitig ist es möglich, ökonomisch mit zeitgemäßen Materialien zu bauen.
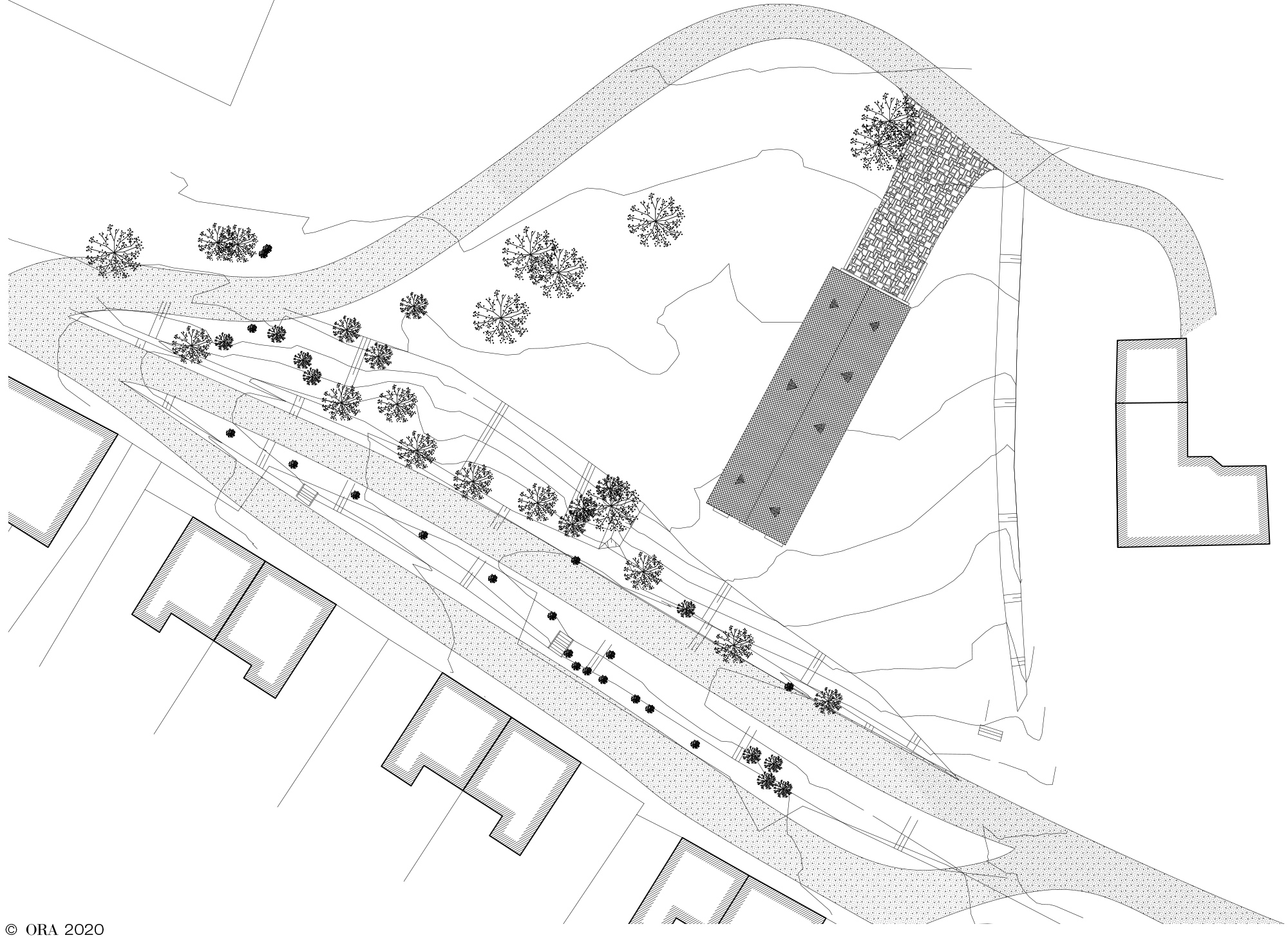
Im Garten gibt es keine physischen Grenzen; außer alten Mauerresten und einem Cortenstahl-Tor ist der Garten eingebettet in die umgebende Landschaft. Obstbäume, Wiesen und Weißdorn verschmelzen Haus und Natur.
Weitere Informationen:
Mitarbeit: Tomas Pospisil
Landschaftsarchitektur: Stepanka Cerna






















