// Check if the article Layout ?>
Bienenstock in Tourcoing: Büro- und Parkhausgebäude von TANK Architectes
Foto: Julien Lanoo
Tourcoing –, eine mittelgroße Stadt im Norden von Frankreich liegt nicht weit entfernt von Lille – einer Stadt, die in den späten 1990er-Jahren mittelfristig berühmt wurde: Der Masterplan für das Euralille-Projekt von OMA gründete auf dem Glauben in ein vereintes Europa – das nach dem Ende des Ost-West-Konflikts wie ein Phönix aus der Asche auferstehen würde. Mit der Beendigung der Tunnelbauarbeiten zwischen Paris und London und dem Bau eines neuen TGV-Bahnhofs in Lille sollte das urbane Gleichgewicht verschoben und die Stadt zum Zentrum des europäischen Triangels London-Brüssel-Paris aufgestiegen sein. Auch die periphere Zone wäre hiermit in den Sog der großmaßstäblich angelegten Planung hineingezogen – jedoch stellt sich nach zwei Jahrzehnten heraus, dass die Bedeutung geografischer Knotenpunkte nicht unbedingt gleichwertig mit deren wirtschaftlichen Wert ist; die Idee eines vereinten Europa ist ohnedies nach dem Brexit in akuter Gefahr.
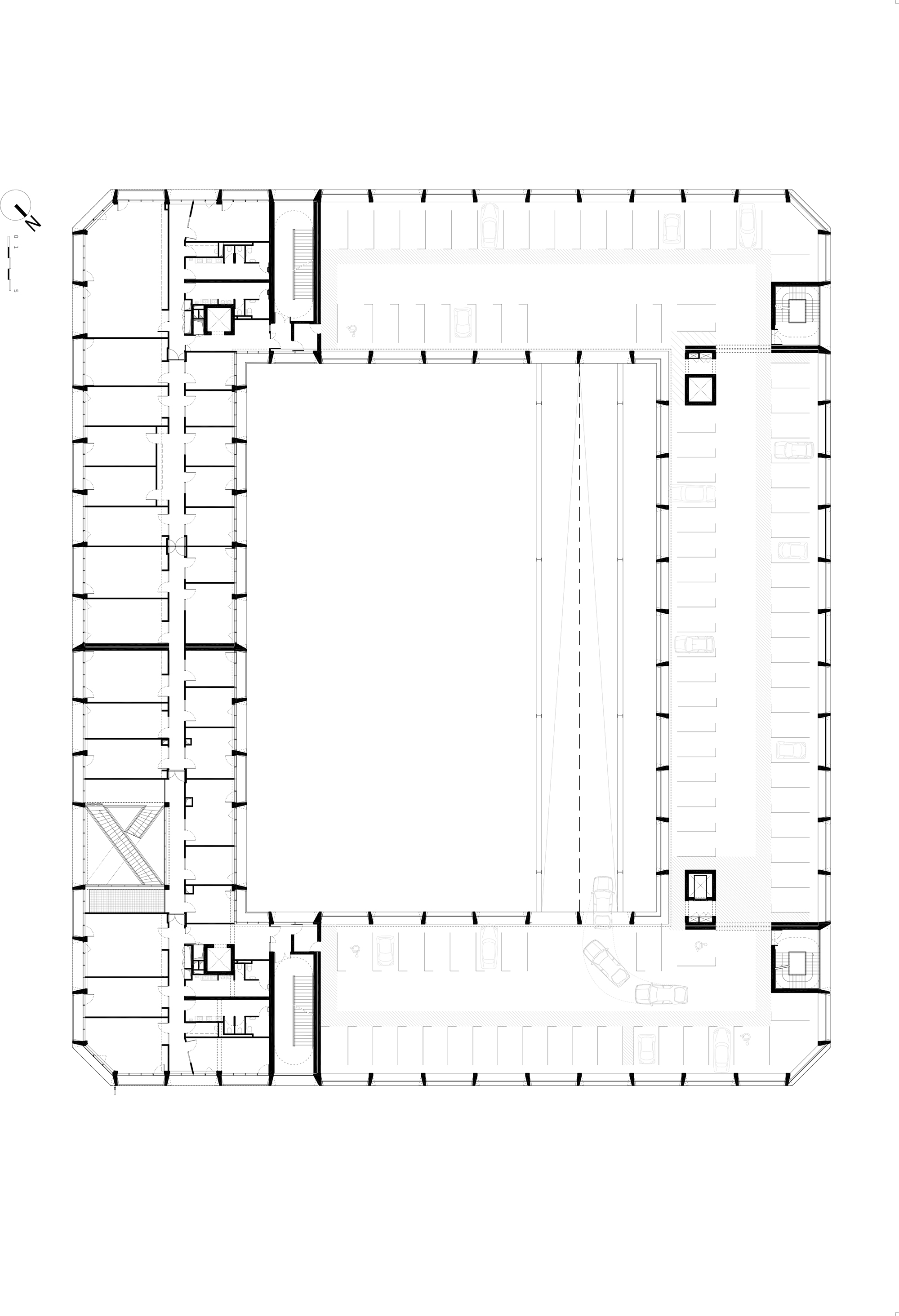
Deswegen kennt wohl kaum jemand die französische Stadt, wo kürzlich ein überaus sehenswertes Bauprojekt fertig gestellt wurde. Die Architekten bezeichnen das Gebäude, das ein Parkhaus mit 450 Stellplätzen und mehreren kleinen Büroräumen beherbergt, als »Bienenstock«: beide Programme sind innerhalb einer baulichen Einheit zusammengefasst. Die repetitive Wabenstruktur der Fassadeneinheiten erzeugt nicht nur eine visuelle Harmonie, sondern ermöglicht auch eine künftige Umnutzung des Parkhauses – ein Szenario, das auf jeden Fall realistisch erscheint.









