Skulpturaler Betonquader: Hunters Point Library von Steven Holl Architects
Foto: Paul Warchol
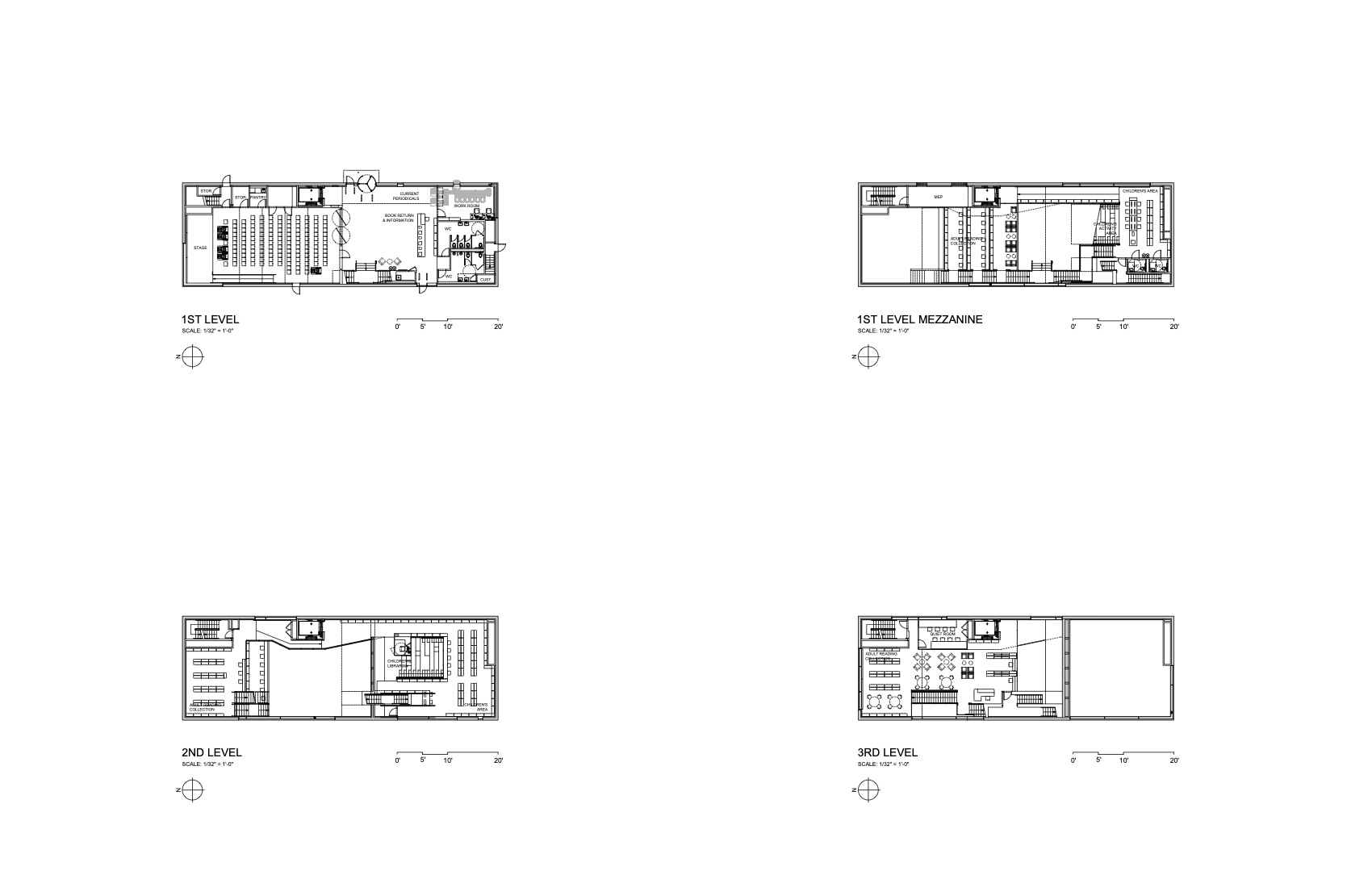
Mit der neu eröffneten Hunters Point Library am East River setzen Steven Holl Architects ein Zeichen für öffentliche Bibliotheken und dringend benötigten Sozialraum. Auf einer Gesamtfläche von 2.050 m2 überdenke eine vertikal orientierte Struktur aus intimen Lesebereichen und sozialen Treffpunkten das traditionelle Bibliotheksmodell, erklären Steven Holl Architects.
Die aluminiumbeschichtete Betonhülle des Gebäudes ist nicht nur Fassade, sondern dient gleichzeitig als Tragstruktur, die ein stützenloses Raumgefüge ermöglicht. „Skulpturale Schnitte“ in Form figurativer Verglasungen offenbaren die menschlichen Bewegungen im Gebäudeinneren und strukturieren auf diese Weise die einzelnen Bereiche innerhalb der Bibliothek - wenngleich die programmatischen Teilungen weitgehend fließend verlaufen.
So verbinden offene Treppenaufgänge als Brückenelemente die Bücherregale mit den digitalen Arbeitsplätzen und der „Rooftop Reading Terrace“ mit Blick auf die Skyline von Manhattan. Während ein ebenerdiges Auditorium unter dem Hauptteil als Treffpunkt und Veranstaltungsort dient, befindet sich im gegenüber dem Ostflügel der Hunters Point Library ein Lesegarten mit Ginkgobäumen.
Weitere Informationen:
Team: Steven Holl (design architect, principal), Chris McVoy (senior partner in charge), Olaf Schmidt (senior associate in charge), Filipe Taboada (project architect, associate), Suk Lee (project architect CA), Bell Ying Yi Cai, Rychiee Espinosa, JongSeo Lee, Maki Matsubayashi, Michael Rusch, Dominik Sigg, Yasmin Vobis, Jeanne Wellinger (project team)
Landscape Architect: Michael Van Valkenburgh and Associates
Structural Engineer: Silman
Mep Engineer: ICOR Associates
Lighting Design: L’Observatoire International
Leed Consultant: ADS Engineers
Civil Engineer: Langan Engineering & Environmental Services
Fire Technical Consultant: Rolf Jensen & Assoc.
Cost Estimator: Davis Langdon
Specifications: Construction Specifications Inc.
Climate Engineers: Transsolar














