// Check if the article Layout ?>
Zurückhaltung in Sichtbeton: Erweiterung der Primarschule in Evilard
Foto: Aytac Pekdemir
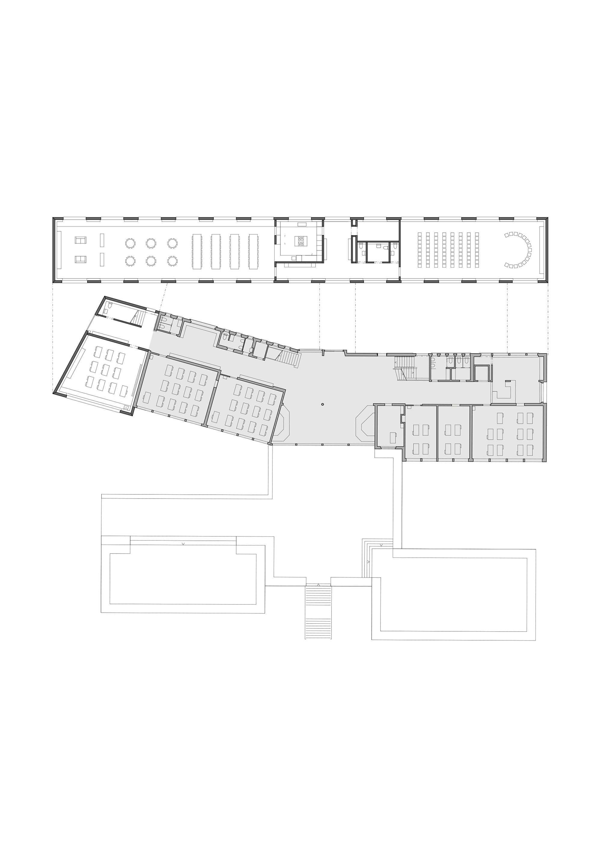
Die bestehende Schulhausanlage in der Schweizer Dorfgemeinde Evilard erweitern dolmus Architekten um einen zweigeschossigen Anbau. Das neue Gebäude ist rückseitig platziert, dadurch entsteht ein länglicher Innenhof: ein geschützter Kommunikationsort für alle Schulangehörigen. Die unregelmäßige Hofform sorgt für eine räumliche Spannung: An der schmalsten Stelle des Innenhofs ist der Neubau an den Bestand angebunden, zwei weitere Verbindungen im Obergeschoss fassen und gliedern den Außenraum.
Der Erweiterungsbau ist in die Gesamtanlage integriert und nimmt Bezug auf die Dachneigung und Fenstereinteilung des Bestandsgebäudes. Dolmus Architekten übernehmen und ergänzen auch die Grundrissstruktur. Der Anbau beherbergt im Erdgeschoss einen Tagesschulraum – der nach Bedarf unterteilt werden kann – und einen Mehrzweckraum mit Nebenräumen. Im Obergeschoss wird die Anzahl von Unterrichtsräumen beinah verdoppelt, wobei die neuen Schulräume zweiseitig belichtet sind. Dank der Passerellen zwischen dem Alt- und dem Neubau wird das Schulhaus von innen als ein Ganzes wahrgenommen. Außen definieren gedeckte Außenbereiche die Zugänge zum alten und neuem Teil der Schule.















