Aus 3 mach 1: Ferienhaus in Tonden von HofmanDujardin
Foto: Matthijs van Roon
Anstatt eines durchgängigen großen Volumens setzt das niederländische Planungsbüro das Feriendomizil aus drei kleineren kompakten Baukörpern zusammen. Mit Satteldächern und einheitlichen Holzfassaden wirken diese reduziert und zurückhaltend. Dächer und Wände gehen ohne sichtbare Traufausbildung nahtlos ineinander über. Vertikale Holzlatten verstärken diesen Eindruck. Die einzelnen kleinen Häuser orientieren sich in unterschiedliche Himmelsrichtungen und sind von mehreren Außenflächen im Grünen umgeben. Die hellen Innenräume der Villa Tonden bieten vielfältige Ausblicke in die Natur und erhalten Tageslicht von allen Seiten.
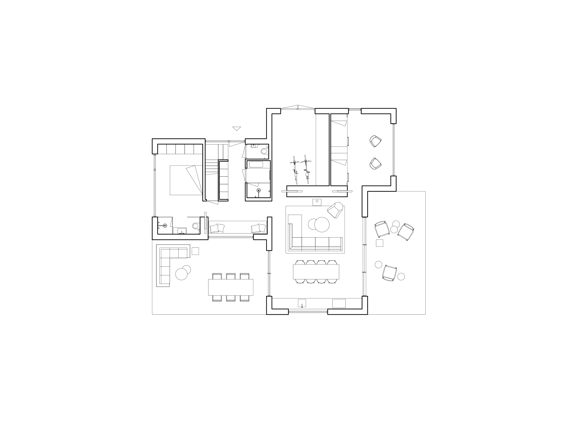
Raumprogramm
Im Eingangsbereich gibt es eine Nische mit Blick nach draußen und einen Platz zum Lesen und Entspannen. Neben dem Bad und dem Elternschlafzimmer befinden sich im ersten Volumen unter dem Dach zwei Gästezimmer. Das Herzstück bildet der offene Wohn-Essbereich im zweiten Baukörper. Die Holzbalken der sichtbaren Dachkonstruktion für eine wohnliche Atmosphäre. Eine lange Küchenzeile, ein Kamin und großflächige Schiebetüren erweitern den Gemeinschaftsraum. Bei geöffneten Türen geht er nahtlos ins Grüne über. Das Kinderzimmer rundet das Raumprogramm des Ferienhauses stimmig ab. Die Betten sind wie Schlafkojen in die Wand eingebaut und werden zum geschützten Rückzugsort für die kleinsten Familienmitglieder.
Reduktion und Materialien
Sämtliche Materialien und Farben in der Villa Tonden sind schlicht und zurückhaltend. Warme Holzeinbauten und reduzierte Details werden von dezent grauen Böden und vereinzelten farbigen Akzenten ergänzt. Die Fenster scheinen mit ihren schmalen schwarzen Rahmen direkt in die Wände überzugehen und geben den Blick auf die eigentlichen Protagonisten frei: die Natur und den Wald.
Weitere Informationen:
Fläche: 150 m2
Innenarchitektur: HofmanDujardin
Lichtplanung: Erco
Einbauten: Imetis Maatwerk Interieur
















