// Check if the article Layout ?>
Behutsame Interaktion: Umbau einer sizilianischen Farm
Begeben wir uns auf einen kleinen Spaziergang durch das historische Anwesen nördlich der Provinz Catania: Die Architekten reduzierten die klassische sizilianische Gartenlandschaft auf die wesentlichen Elemente. Die gesamte Bepflanzung, verbindende Wegeführungen und die horizontalen grünen Terrassen wurden neu geordnet. Von der Straße aus führt ein einladender Gehweg, mit hellem Stein bedeckt, auf das eindrucksvolle Grundstück. Gesäumt von einer schlanken Cortenstahl-Begrenzung, führt er zwischen zwei Jahrhunderte alten Zypressen hindurch, den leichten Hang nach oben zu der neu gestalteten Veranda. Doch bevor man sich dem schattenspendenden Anbau nähert, betritt man die Treppenstufen der letzten Geländeerhöhung, vorbei an einem ebenerdig eingelassenen Pool. Der weiße monolithische Stein der großflächigen Terrasse und das azurblaue Wasser zeichnen sich von der bisherigen Grünanlage ab.
Der erweiternde Anbau aus bräunlichem Cortenstahl und Glas interagiert behutsam mit dem bestehenden kleinen Mauerwerksgebäude. Alt und Neu sind durch einen vollverglasten Gang direkt miteinander verbunden. Dank ihrer cleveren Beschaffenheit lässt sich die Veranda zur kälteren Jahreszeiten komplett schließen und kann als eine Art Wintergarten genutzt werden, während sie im Sommer vor der herunterbrennenden Sonne schützt. Schiebt man die Glasfront komplett auf, dreht die schwenkbaren Stahlwände und lässt das Dach partiell aufgleiten, verschmilzt der Außen- mit dem Innenraum. Die wandelbare Struktur erlaubt je nach Wetter oder Jahreszeit eine individuelle Anpassung.
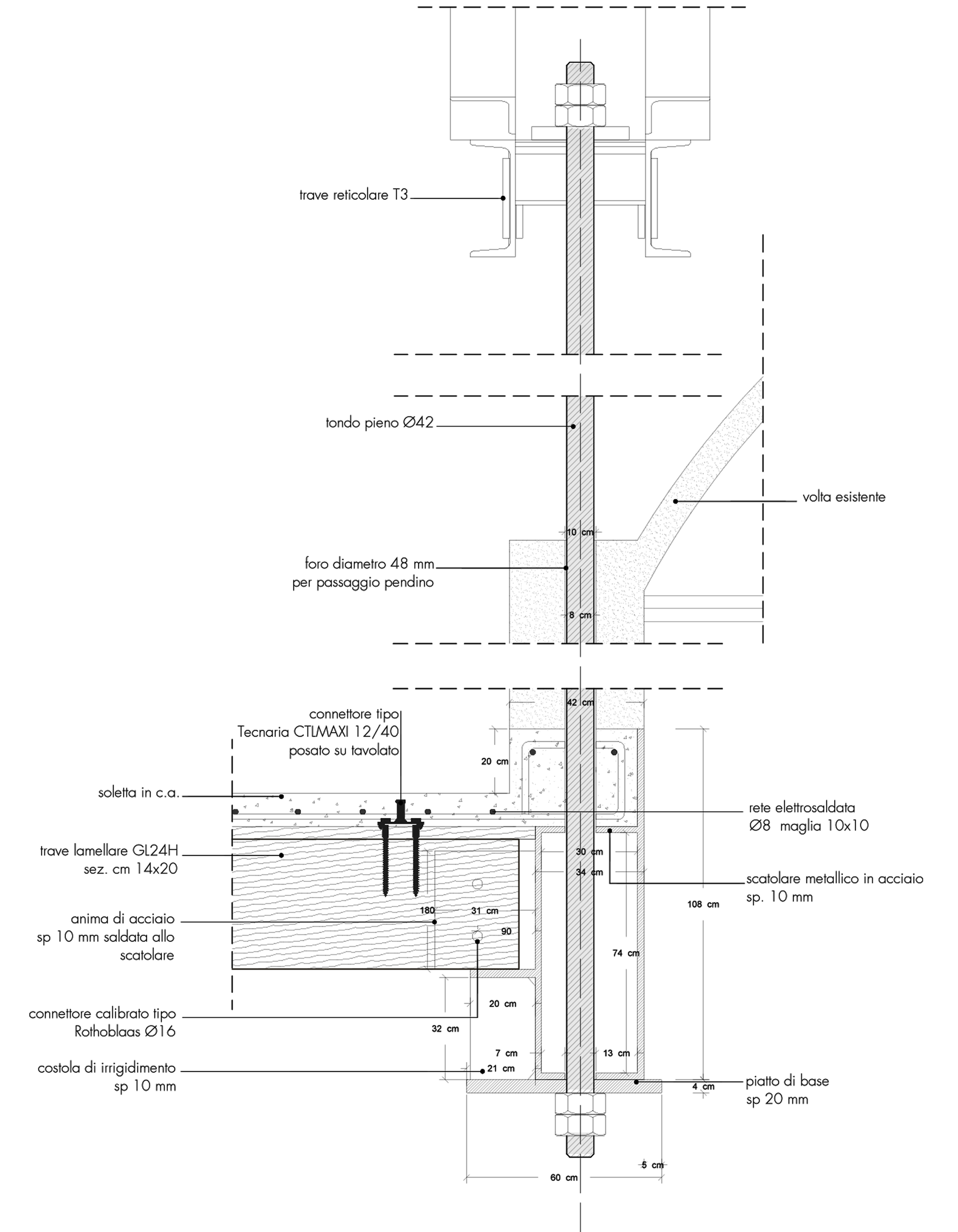
Zu guter Letzt gelangt man in das renovierte Haupthaus des Anwesens – die 600 m2 große Villa. Die Räumlichkeiten verteilen sich auf insgesamt drei Ebenen, wobei die Hauptnutzungsräume im ersten Obergeschoss organisiert sind. Aus der grundlegenden Idee dem Haus hier ein großzügiges und einzigartiges „Herz“ zu verleihen, entstand das Konzept, die Fläche unter dem Gewölbe von seinen Innenwänden zu befreien. Der Statik wegen wurden daraufhin Stahlträger unter dem Dach versteckt eingezogen und mit Zugankern befestigt. Dadurch können sowohl die Gewölbe, als auch der zentrale Kamin komplett von oben abgehängt werden und offerieren so einen heimeligen sowie Platz bietenden Wohnraum. Die helle Wandfarbe im Inneren nimmt sich vollkommen zurück und kontrastiert mit dem natürlichen, ziegelfarbenen Außenwandputz namens „cocciopesto“, welcher den historischen Charakter des Gebäudes unterstreicht.
Der erweiternde Anbau aus bräunlichem Cortenstahl und Glas interagiert behutsam mit dem bestehenden kleinen Mauerwerksgebäude. Alt und Neu sind durch einen vollverglasten Gang direkt miteinander verbunden. Dank ihrer cleveren Beschaffenheit lässt sich die Veranda zur kälteren Jahreszeiten komplett schließen und kann als eine Art Wintergarten genutzt werden, während sie im Sommer vor der herunterbrennenden Sonne schützt. Schiebt man die Glasfront komplett auf, dreht die schwenkbaren Stahlwände und lässt das Dach partiell aufgleiten, verschmilzt der Außen- mit dem Innenraum. Die wandelbare Struktur erlaubt je nach Wetter oder Jahreszeit eine individuelle Anpassung.
Zu guter Letzt gelangt man in das renovierte Haupthaus des Anwesens – die 600 m2 große Villa. Die Räumlichkeiten verteilen sich auf insgesamt drei Ebenen, wobei die Hauptnutzungsräume im ersten Obergeschoss organisiert sind. Aus der grundlegenden Idee dem Haus hier ein großzügiges und einzigartiges „Herz“ zu verleihen, entstand das Konzept, die Fläche unter dem Gewölbe von seinen Innenwänden zu befreien. Der Statik wegen wurden daraufhin Stahlträger unter dem Dach versteckt eingezogen und mit Zugankern befestigt. Dadurch können sowohl die Gewölbe, als auch der zentrale Kamin komplett von oben abgehängt werden und offerieren so einen heimeligen sowie Platz bietenden Wohnraum. Die helle Wandfarbe im Inneren nimmt sich vollkommen zurück und kontrastiert mit dem natürlichen, ziegelfarbenen Außenwandputz namens „cocciopesto“, welcher den historischen Charakter des Gebäudes unterstreicht.

































