Betonoase: Jugendclub und Familienzentrum in Berlin Lichtenberg
Foto: Alexander Blumhoff
Umringt von zehn- bis zwanziggeschossigen Wohnhäusern steht stoisch der eingeschossige Pavillon von Gruber + Popp Architekten. Er macht seinem Namen »Betonoase« alle Ehre, auch wenn der noch vom Vorgänger übernommen wurde. Der alte Bau aus den 70er-Jahren musste der städtebaulichen Neugestaltung weichen und macht Platz für ein wegweisendes Projekt der Baustoffforschung.
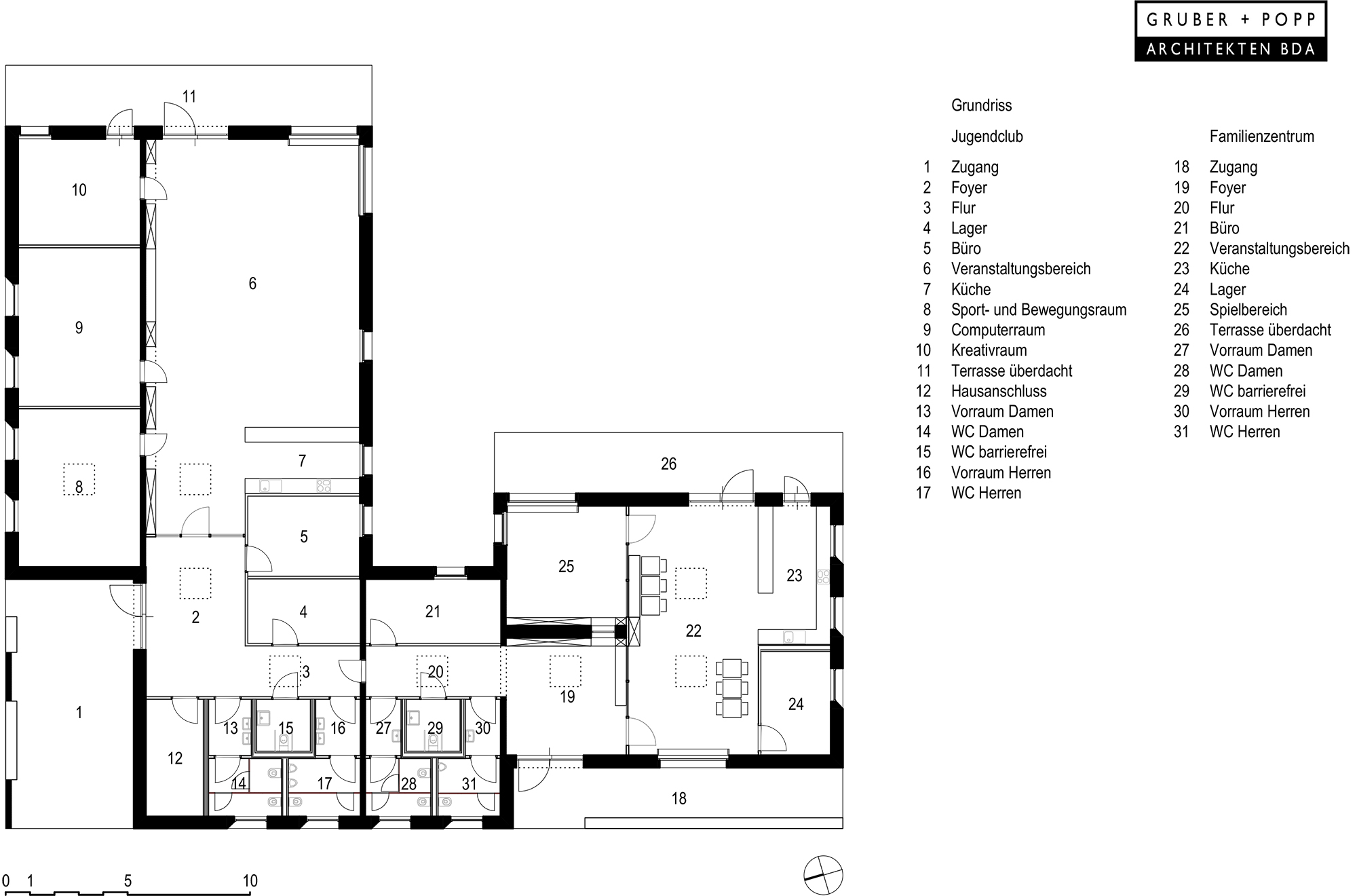
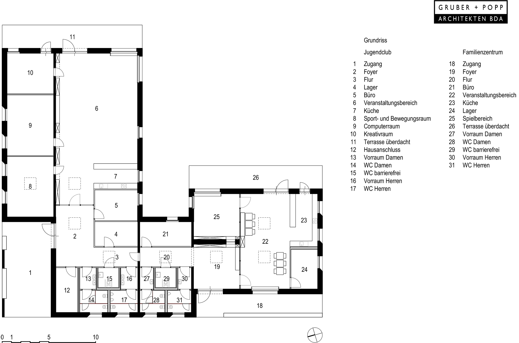
Im neuen Gebäude kommen sowohl der Jugendclub als auch ein Familienzentrum für das Quartier unter. Über zwei separate Eingänge sind sie getrennt erschließbar, bei Bedarf können die beiden Foyers aber verbunden werden. Auch der großzügige Garten, der mit dem Gebäude verzahnt ist, wird von beiden Einrichtungen zusammen genutzt. Die Bereiche zur persönlichen Entfaltung – vor allem für die Jugendlichen – liegen allerdings geschützt vor Blicken von außen. Die dicken, monolithischen Wände erzeugen die nötige Geborgenheit in den Innenräumen.
Doch die Wandstärke hat einen weiteren Grund. Die »Betonoase« ist das erste öffentliche Gebäude aus Infraleichtbeton. Das Material besteht hauptsächlich aus Blähtongranulat, dazu kommen Leichtsande und Zement. Mit dieser Zusammensetzung kann es gleichzeitig dämmen und tragen, denn der hohe Anteil an eingeschlossener Luft leitet die Wärme nicht. Eine Wanddicke von 50 cm wurde benötigt, um Passivhausstandard zu erreichen. Diese Dicke nutzen die Architekten räumlich wiederum für Sitznischen in den Fensterlaibungen.
Der Einsatz eines neuen, in Deutschland noch nicht normierten Baumaterials stellte eine besondere Herausforderung dar. Vor allem die biegebeanspruchten Teile erfordern große Aufmerksamkeit. Dank der jahrelangen Forschung und Versuche von schlaich bergermann partner an der TU Berlin konnte zuletzt aber eine Zustimmung im Einzelfall eingeholt werden und das erste öffentliche Gebäude aus Infraleichtbeton seine Türen öffnen.














