Lamellendach mit integrierter Begrünung
Bürohausumbau von Rataplan-Architektur in Wien
© Anna Stöcher
Lorem Ipsum: Zwischenüberschrift
Die Sozialbau AG, ein 1954 entstandener Verbund mehrerer Wiener Wohnungsbauunternehmen, verwaltet mehr als 50 000 kostengünstige Wohnungen in der österreichischen Hauptstadt. Für die Erweiterung ihres Firmensitzes hat das Architekturbüro Rataplan-Architektur ein eigentlich abbruchreifes Haus in einer Seitenstraße der Mariahilfer Straße im Westen der Innenstadt zu neuem Leben erweckt. Da der Bestandsbau für das geforderte Raumprogramm deutlich zu klein war, erhielten die Architekten lediglich die Straßenfassade und den vorderen Gebäudetrakt bis zur Mittelmauer des Hauses und fügten diesem auf der Rückseite einen deutlich höheren L-förmigen Baukörper an. Um den Höhenversprung zu kaschieren und den Gebäudekomplex maßstäblich in sein Umfeld einzupassen, setzten die Architekten dem Altbau ein über mehrere Geschosse reichendes Schrägdach auf und verkleideten dieses außen mit ziegelroten Sonnenschutzlamellen.


© Anna Stöcher


© Anna Stöcher


© Anna Stöcher
Lorem Ipsum: Zwischenüberschrift
In der obersten Etage setzt sich das Lamellendach mit steilerer Neigung in Weiß und Grün fort, wobei das Grün jahreszeitlich wechselt: Neben Lamellen verschattet ein maßgefertigtes System aus Pflanztrögen die Fassaden und kühlt mit seiner Verdunstung die Umgebungsluft.
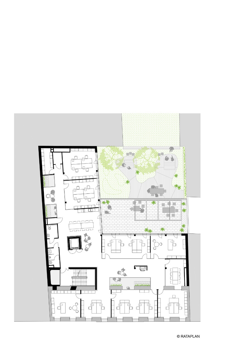
Im Inneren des Hauses erstrecken sich die Büroabteilungen jeweils über zwei Etagen; Deckenöffnungen, Galerien und Treppenläufe verbinden sie. Fassade und Innenausbau sind so konzipiert, dass sich in jeder zweiten bis vierten Fensterachse Trennwände einziehen lassen. Während die fensternahen Arbeitsbereiche in nüchternem Schwarz, Weiß und Grau gehalten sind, geht es in den weiter innen gelegenen Gemeinschaftsflächen bunter zu. Flauschige Teppiche, Kiesflächen und das verwitterte Holz wiederverwendeter historischer Dübeldecken als Bodenbelag sorgen hier für optische und atmosphärische Abwechslung.
KONTAKTFORMULAR / DATEN - NUR ADVERTORIAL - Wird noch hinzugefügt @ Daniel
Architektur: Rataplan-Architektur
Bauherr: Sozialbau AG
Standort: Andreasgasse 9, 1070 Wien (AT)
Tragwerksplanung: Harrer & Harrer
Landschaftsarchitektur: DnD Landschaftsplanung
Generalunternehmer: Porr Bau
Nettogrundfläche: 3338 m²

















