Mit Lehm und Lärchenholz
Schulerweiterung in Riaz von FAZ Architectes
Schulerweiterung in Riaz, © Paola Corsini
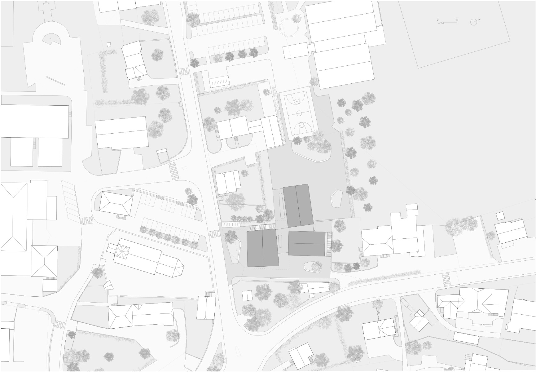
Die Schweizer Gemeinde Riaz, etwa 50 km nordöstlich des Genfer Sees im Kanton Fribourg gelegen, ist eine eher formlose Streusiedlung ohne echten, erkennbaren Dorfkern. Auch die Grundschule des Orts stand bisher zurückgesetzt von der Hauptstraße. Mit ihrem Erweiterungsbau von FAZ Architectes aus Genf zeigt sie nun erstmals Präsenz im Ortsbild: Drei Geschosse hoch ragt das Haus mit seinen vorvergrauten Fichtenholzfassaden und dem flach geneigten Giebeldach an der Route des Monts auf. Es beherbergt sechs neue Klassenzimmer für die Primarschule und das Lehrerzimmer.


Die Fassade des Erweiterungsbaus besteht aus vorvergrautem Fichtenholz. © Paola Corsini
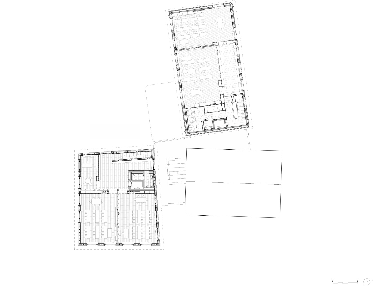
Im Architektenwettbewerb von 2017 war noch geplant, das bestehende, L-förmige Schulhaus weiterzunutzen. Es erwies sich jedoch trotz des Erweiterungsbaus als zu klein, sodass die Architektinnen auch den ursprünglich einstöckigen Gebäudeflügel am Schulhof abreißen ließen und auf dessen Fundamenten einen zweigeschossigen Neubau ebenfalls in Holzbauweise errichteten. Er beherbergt weitere Klassenzimmer sowie die Mensa und einen Schülerhort. Letzterer ist auch außerhalb der Schulstunden von außen zugänglich.
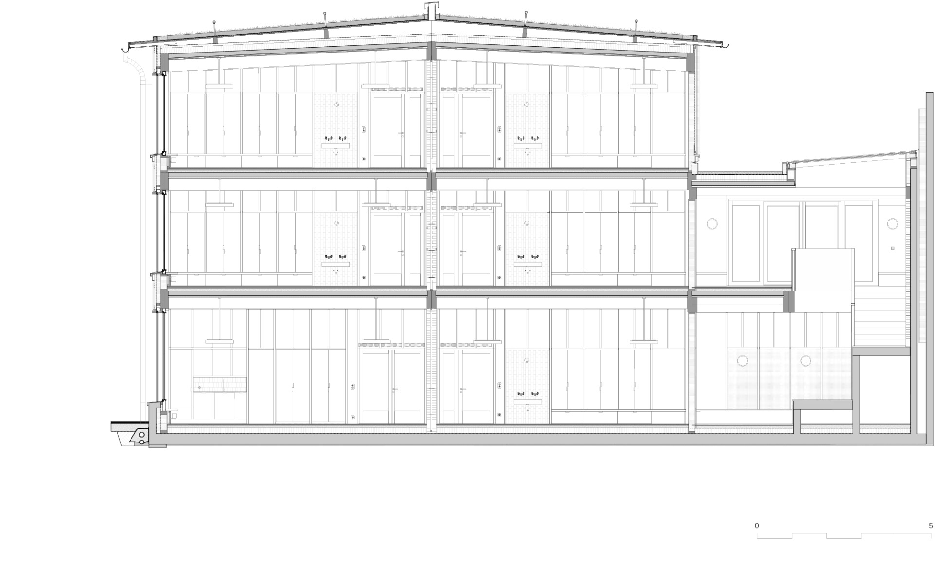
Die Gemeinde hatte gefordert, für die Erweiterungsbauten Holz aus den eigenen Wäldern zu verwenden. Nur der Aufzugskern besteht in dem dreigeschossigen Haus aus Stahlbeton. Um den Fassaden trotz der Holzbauweise einen repräsentativ-urbanen Charakter zu verleihen, gliederten die Architekten sie durch umlaufende Gesimse in jedem Geschoss und ließen ornamentale Kerben in der Schalung anbringen, in denen das hellere Splintholz unter der Vergrauungslasur zutage tritt.


Natürliche Materialien im Innenraum, © Paola Corsini
Die Decken sind Holz-Beton-Verbundkonstruktionen mit einer Trockenschüttung aus Holzpellets statt eines herkömmlichen Estrichs. Auf diese Weise war es problemlos möglich, einen großen Teil der Installationsleitungen im Fußboden zu verlegen. Um zusätzliche thermische Masse ins Haus zu bringen und den Schallschutz zu verbessern, sind die nicht tragenden Trennwände zwischen den Klassenzimmern zweischalig aus ungebrannten Lehmziegeln gemauert. Ganz nebenbei bilden sie einen wirksamen Feuchtepuffer und wirken der oft sehr trockenen Luft in den Räumen entgegen. Die übrigen Wände sind mit Dreischichtplatten und grauen Pinnwänden aus Kork verkleidet und werden durch aufgesetzte Deckleisten aus Holz rhythmisiert.


Fassade, © Paola Corsini


Ornamentale Kerben charakterisieren die Fassade. © Paola Corsini
Der neue Anbau wird mit Fernwärme beheizt, die zu 90 % aus Biomasse gewonnen wird. Die Photovoltaikanlage auf seinem Dach liefert zumindest in den Sommermonaten mehr Energie, als im Haus benötigt wird. Für die Lüftung setzten die Architektinnen auf ein hybrides System: In erster Linie sollen die Lehrer durch manuelle Fensterlüftung für Frischluftzufuhr sorgen. Für den Fall, dass dies nicht ausreicht, ist die Schule darüber hinaus mit einer mechanischen Lüftung mit Wärmerückgewinnung ausgestattet.
Mehr dazu in Detail 11.2023 und in unserer Datenbank Detail Inspiration.
Architektur: FAZ architectes
Bauherr: Commune de Riaz
Standort: Route des Monts 4, 1632 Riaz (CH)
Tragwerksplanung: Le Collectif
Umweltingenieure: Perenzia
Landschaftsarchitektur: DUO architectes paysagistes
HLS-Planung: Chuard ingénieurs Fribourg
Elektroplanung: Open-ing
Akustik: Triform
























