Fünf Geschosse im Hinterhof
Dachaufstockung in Paris von Java Architecture
Wohnturm in Paris, © Caroline Dethier
Auf den Grundmauern eines maroden Vorgängerbaus haben Java Architecture im Pariser 15. Arrondissement einen fünfgeschossigen Wohnturm in Holzbauweise errichtet. „Die Geschichte begann, als wir Anfang Herbst 2017 eine seltsame E-Mail erhielten, in der wir um Hilfe gebeten wurden“, berichten die Architekten. „Der Verfasser erklärte uns, dass er und seine Frau gerade ein verfallenes Haus auf der Rückseite eines Pariser Innenhofs gekauft hatten und dass sie es in ihr Familienhaus umwandeln wollten."


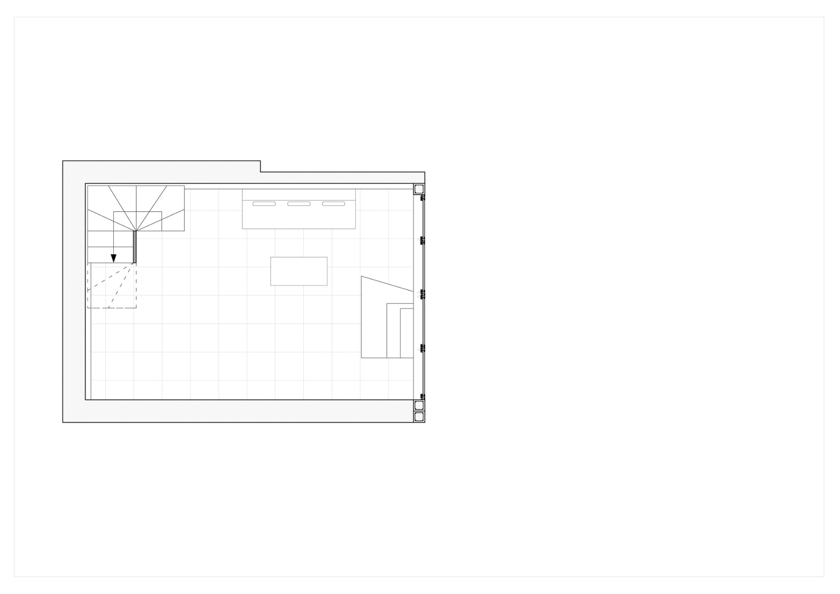
Im Dachgeschoss liegt das Wohnzimmer der Familie mit einem Zugang zum Balkon. © Caroline Dethier
„Nach einem kurzen Gespräch am Telefon wurde uns klar, dass diese Familie einfach einen Haufen alter Steine gekauft hatte, ohne zu wissen, ob sie etwas daraus machen können oder dürfen. Ohne die richtige Antwort zu kennen, beschlossen wir, uns auf dieses Abenteuer einzulassen, das einige Jahre dauern und hoffentlich einer Mittelklassefamilie helfen würde, in Paris zu bleiben.“
Die Prognose der Architekten traf zu: Es war ein langer, steiniger Weg bis zur Fertigstellung, gepflastert mit Einsprüchen der Nachbarn, einer zwischenzeitlichen Verweigerung der Baugenehmigung und natürlich dem geringen Budget der Bauherrenfamilie. Die Grundfläche des zweigeschossigen Vorgängerhauses betrug gerade einmal 4 x 6 m.


Im Wohnbereich ziert das Holzskelett auch die Innenwände. © Caroline Dethier
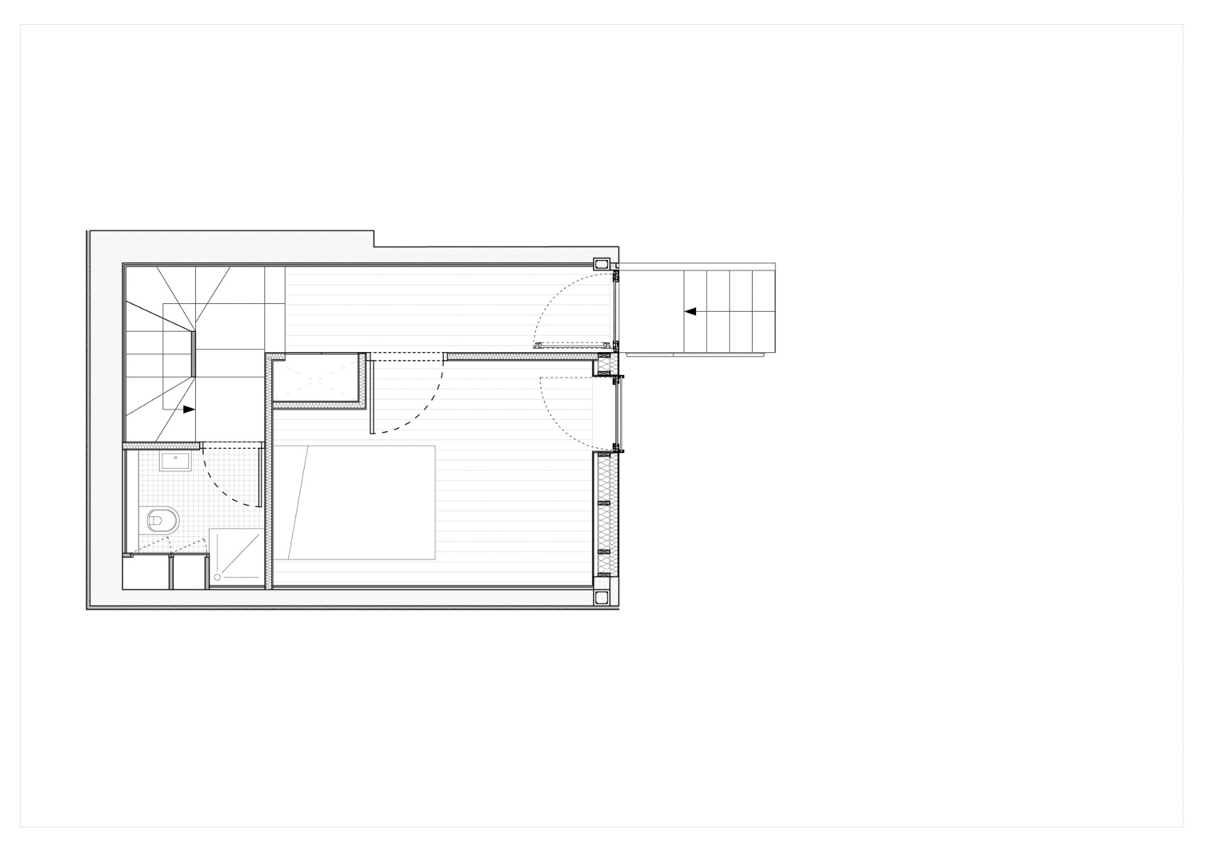
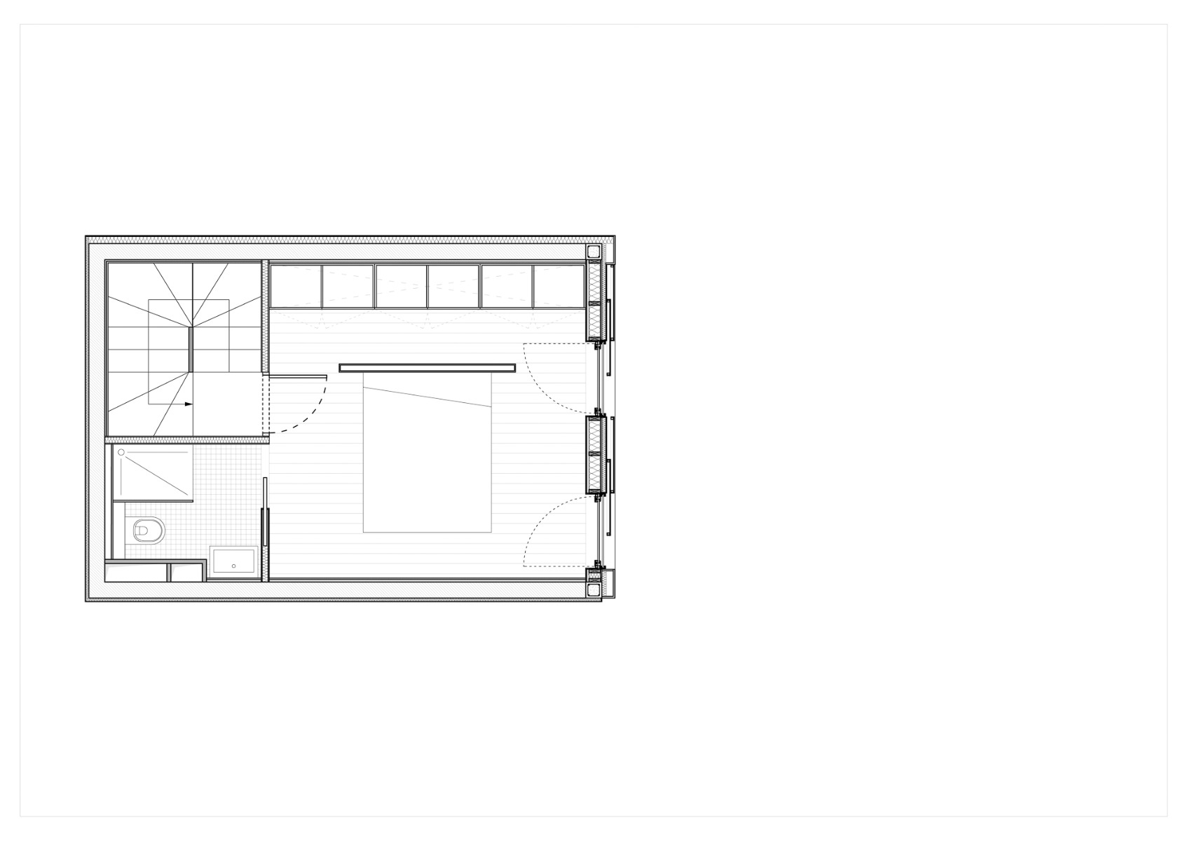
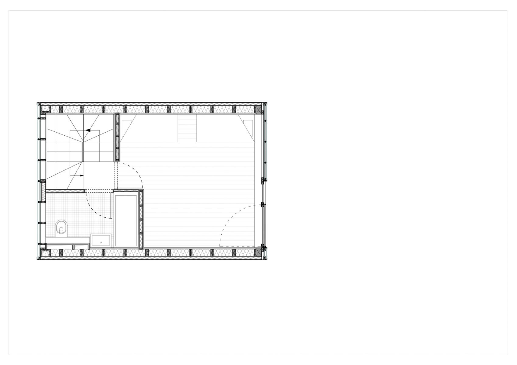
Um darauf die vierköpfige Familie unterbringen zu können, bauten die Architekten fünf Geschosse in die Höhe. Die unteren drei Geschosse beherbergen Schlafzimmer, das dritte Obergeschoss und das gewächshausartige Dachgeschoss dienen der Familie als Wohnraum. Das Untergeschoss lässt sich als Hobbyraum und Gästezimmer nutzen. Bis auf den Keller und die Bruchstein-Umfassungsmauern auf drei Seiten des Erdgeschosses ist von dem Altbau kaum etwas übriggeblieben. Doch dieses „kaum etwas“ durfte nicht zu stark belastet werden. Daher entschieden sich die Architekten für eine Holzkonstruktion.


Esszimmer, © Caroline Dethier


Auf den Grundmauern eines maroden Vorgängerbaus ist der fünfgeschossige Wohnturm in Holzbauweise errichtet. © Caroline Dethier
Die Außenwände erhielten teils ein Wärmedämmverbundsystem mit grauem Putz, teils Klarglasfenster und Faltläden aus Holz und streckenweise auch eine transluzente Verkleidung aus Polycarbonatstegplatten, durch die das Innenleben des Hauses schemenhaft durchscheint. Vor allem im Treppenhaus - gleichsam dem Rückgrat des Hauses – tritt das Holzskelett gestaltprägend in Erscheinung.
Mehr dazu in Detail 12.2023 und in unserer Datenbank Detail Inspiration.
Architektur: JAVA Architecture
Bauherr: privat
Standort: Paris (FR)
Tragwerksplanung: RAAI

































