Natürlich, offen und verspielt
Einfamilienhaus aus Holz in Hamburg
© René Graf
Lorem Ipsum: Zwischenüberschrift
Asdfg Architekten realisieren in Hamburg Othmarschen ein Einfamilienhaus in Holzbauweise und setzen dabei innen wie außen auf unkonventionelle, architektonische Ansätze. Die Bauherrenfamilie wünschte sich in dem Wohngebiet an der Elbe im Westen der Hansestadt kein 08/15-Eigenheim. Deshalb entwickelte das Planerteam einen unverkleideten Massivholzbau, bei dem die Konstruktion im Mittelpunkt steht und zum zentralen, optischen Element wird.


© René Graf
Lorem Ipsum: Zwischenüberschrift
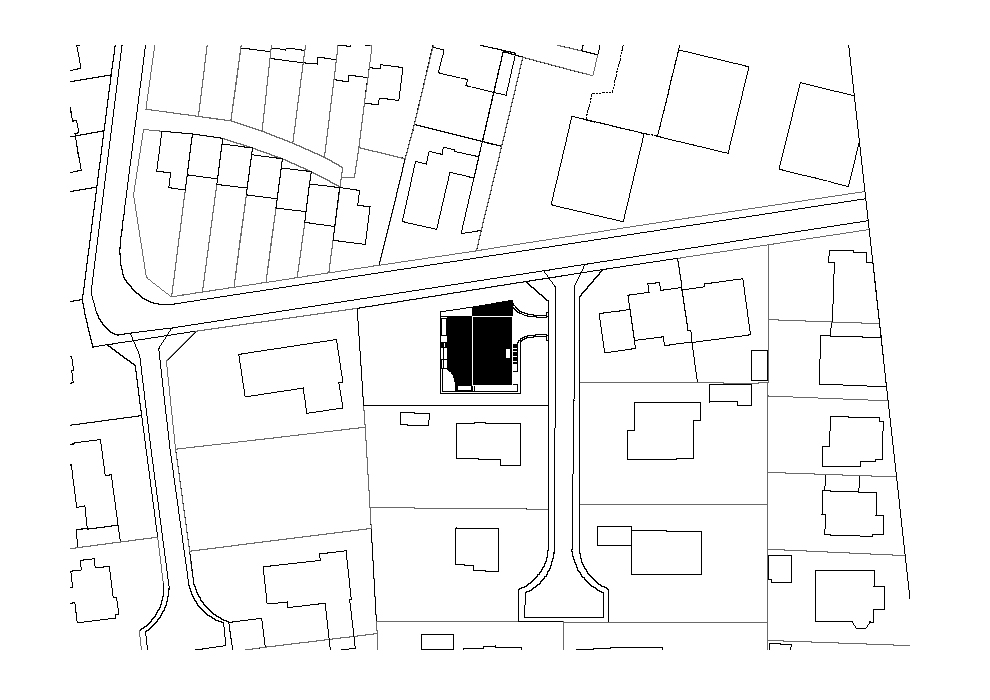
Anstelle von Garage und Carport entscheidet man sich auf dem 950 m² großen Grundstück für eine einladende Eingangssituation. Eine überdachte Veranda führt am Haus vorbei in den Garten und bietet einen großzügigen Bereich zum Ankommen.
Lorem Ipsum: Zwischenüberschrift
Über dem Stahlbetonsockel im Keller besteht das massive Holzhaus fast gänzlich aus umweltfreundlichen und ökologischen Materialien. Die konstruktiven Bauteile wurden vorgefertigt und bleiben sowohl an den Fassaden als auch im Inneren weitgehend roh.


© René Graf
Lorem Ipsum: Zwischenüberschrift
Neben Wänden und Decken aus Brettsperrholz sorgen in den Räumen geschliffene Zement- und Estrichböden für einen natürlichen Charakter und eine angenehme Atmosphäre. Durch raumhohe Verglasungen sowie Oberlichter und Lichthöfe fällt selbst ins Untergeschoss jede Menge Tageslicht. Das energetische Konzept komplettiert die nachhaltige Planung: Dank einer Photovoltaikanlage in Kombination mit einer Wärmepumpe kann auf fossile Brennstoffe gänzlich verzichtet werden.


© René Graf


© René Graf
Lorem Ipsum: Zwischenüberschrift
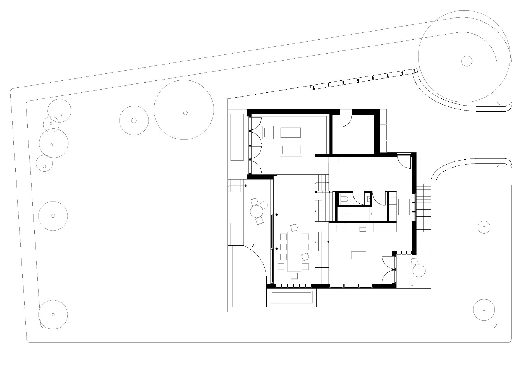
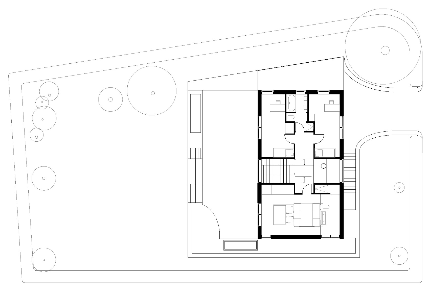
Neben der Materialwahl zeigen sich auch die Grundrisse des Einfamilienhauses maßgeschneidert und individuell. Sämtliche Ebenen sind geprägt von Zwischenniveaus und multifunktionalen Bereichen. Mehrere Höhenversätze und Treppen dienen nicht nur der Erschließung, sondern erweitern gleichzeitig den Wohnraum. Hohlräume wie Wände und Stufen werden als Nischen und Stauraum genutzt.


© René Graf


© René Graf
Lorem Ipsum: Zwischenüberschrift
Das Erdgeschoss ist rund um einen zentralen Kern organisiert, welcher mit diversen Einbauten nicht nur Küchenschränke und WC, sondern auch den Treppenraum beinhaltet. Die Stufen führen offen gestaltet weiter nach oben und verbinden gleichzeitig die einzelnen Niveaus und Räume. Sie werden mit Platz zum Sitzen und Spielen zum eigenen Aufenthaltsbereich mitten im Haus.
Architektur: asdfg Architekten
Bauherr: Privat
Standort: Hamburg (DE)




















