Rohstoffdepot
Feuerwehrhaus von Wulf Architekten
Feuerwehrhaus Straubenhardt, © Brigida González für wulf architekten
Das Feuerwehrhaus im Nordschwarzwald von Wulf Architekten bietet eine hochfunktionelle Arbeitsumgebung aus zertifizierten gesunden Materialien. Am Ende seiner Lebenszeit können die Bauteile sortenrein getrennt und nach dem Prinzip des Cradle to Cradle recycelt werden.


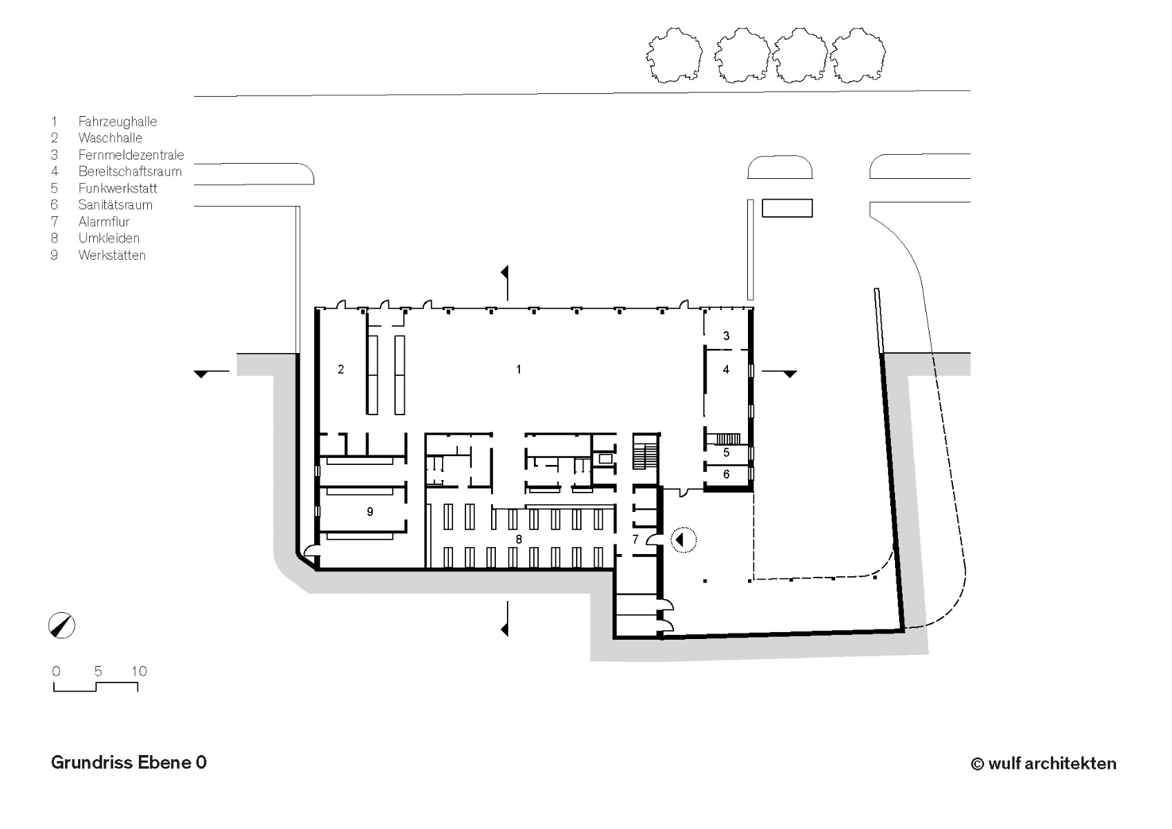
Im Sockelgebäude aus Stahlbeton ist die zweigeschossige Halle für neun Löschfahrzeuge untergebracht. © Brigida González für wulf architekten
Die Langenalberstraße in Straubenhardt südwestlich von Pforzheim ist ein strategisch günstiger Standort, an dem jetzt in dem Neubau sechs bisher verstreut untergebrachte Feuerwehreinheiten zusammengeführt wurden. Von der Straßenseite im Norden ist die Stapelung der Funktionsbereiche klar ablesbar. Im Sockelgebäude aus Stahlbeton ist die zweigeschossige Halle für neun Löschfahrzeuge untergebracht sowie sämtliche Nebenräume, die für den Einsatz im Brandfall erforderlich sind.
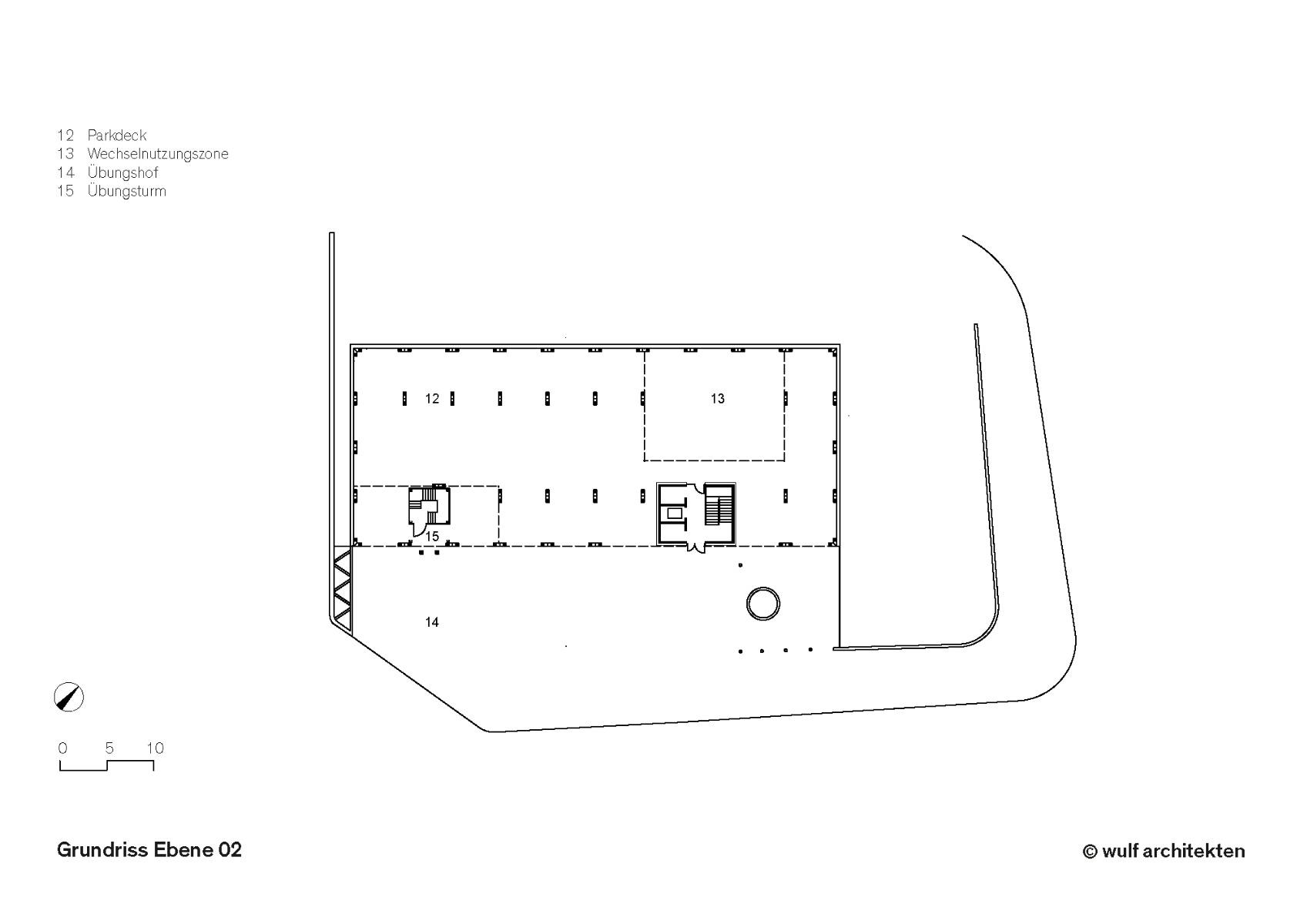
Vom Vorplatz führt eine Rampe hinauf und erschließt von der Rückseite das Flachdach des Sockels, das als Parkplatz genutzt wird, um so wenig Fläche wie möglich zu versiegeln. Über dieser offenen Zwischenebene ist ein Holzbau aufgeständert, in dem sich Schulungs-, Gemeinschafts- und Büroräume befinden.


In einem aufgeständerten Holzbau befinden sich Schulungs- und Büroräume. © Brigida González für wulf architekten
Aus dem Volumen der Holzbox haben die Architekten zwei Innenhöfe ausgespart, die von außen nur subtil durch das umlaufende Gitter aus Streckmetall zu erahnen sind. Der größere der zwei Einschnitte reicht bis auf die Parkierungsebene und bietet so einen großzügigen Freiraum für Veranstaltungen.


Das Feuerwehrhaus ist gleichzeitig auch ein Übungszentrum. © Brigida González für wulf architekten
Integriertes Übungszentrum
Das Gebäude ist gleichzeitig als Übungszentrum ausgelegt. Auf der Rückseite steht ein 700 m² großer Übungsplatz zur Verfügung, ein Übungsturm mit Treppenhaus ist als Hochpunkt und Landmarke der Gebäudekomposition in den Holzaufbau integriert.


© Brigida González für wulf architekten
Cradle to Cradle
Das Feuerwehrhaus Straubenhardt ist eines der ersten Gebäude Deutschlands, das nach dem Prinzip des Cradle to Cradle geplant und gebaut wurde. Das Umweltberatungsinstitut Epea GmbH-Part of Drees & Sommer hat 248 Materialien und 79 Bauteile in Bezug auf Materialgesundheit, sortenreine Trennbarkeit sowie den Energiebedarf und die CO2- Emissionen bei der Herstellung geprüft. Durch den Verzicht auf Klebstoffe, Anstriche und Verputze bleiben die Materialien kreislauffähig. Die Holzelemente sind verschraubt, nicht verklebt oder vernagelt. Sämtliche Baustoffe sind in einem Gebäuderessourcenpass dokumentiert und können im Falle eines Rückbaus im Sinne des Urban Mining als Rohstoff wieder verwendet werden.
Mehr dazu in Detail 6.2023 und in Detail 1/2.2025 sowie in unserer Datenbank Detail Inspiration.
Architektur: wulf architekten
Bauherr: Gemeinde Straubenhardt
Standort: Langenalber Straße, 75334 Straubenhardt (DE)


















