Funktionale Präzision
Forschungszentrum von Hammeskrause in Stuttgart
© Brigida González
Lorem Ipsum: Zwischenüberschrift
Hammeskrause Architekten entwerfen das neue Zentrum für Angewandte Quantentechnologie der Universität Stuttgart. Als Forschungsgebäude bietet ZAQuant mit seiner präzisen Kubatur Platz für 70 Mitarbeiter. Entsprechend des städtebaulichen Masterplans führt der Neubau die Fluchten des östlichen Bestands fort und positioniert sich am Rande einer Parkfläche auf dem Campusareal.


© Brigida González
Lorem Ipsum: Zwischenüberschrift
Das prototypische Forschungsgebäude ist viergeschossig. Das sichtbare Volumen zeigt sich zur Straße dreigeschossig und zur grünen Campus-Mitte zweigeschossig. Nutzer und Bauherr bezog man von Anfang an in den Planungsprozess mit ein.
Lorem Ipsum: Zwischenüberschrift
Eine schlichte Hülle aus Glas und Aluminium unterstreicht das auf Präzision ausgelegte Design. So fügt sich der kubische Baukörper in die Reihe der bestehenden Forschungsgebäude auf dem Campus ein.


© Brigida González
Lorem Ipsum: Zwischenüberschrift
Wechselweise schützen geschlossene Ansichten sensible Funktionen im Inneren des neuen Zentrums für Angewandte Quantentechnologie oder sorgen je nach Bedarf mit raumhohen Verglasungen für tiefe Einblicke, bestmögliche Tageslichtversorgung und maximalen Bezug nach draußen.


© Wolf-Dieter Gericke


© Brigida González
Lorem Ipsum: Zwischenüberschrift
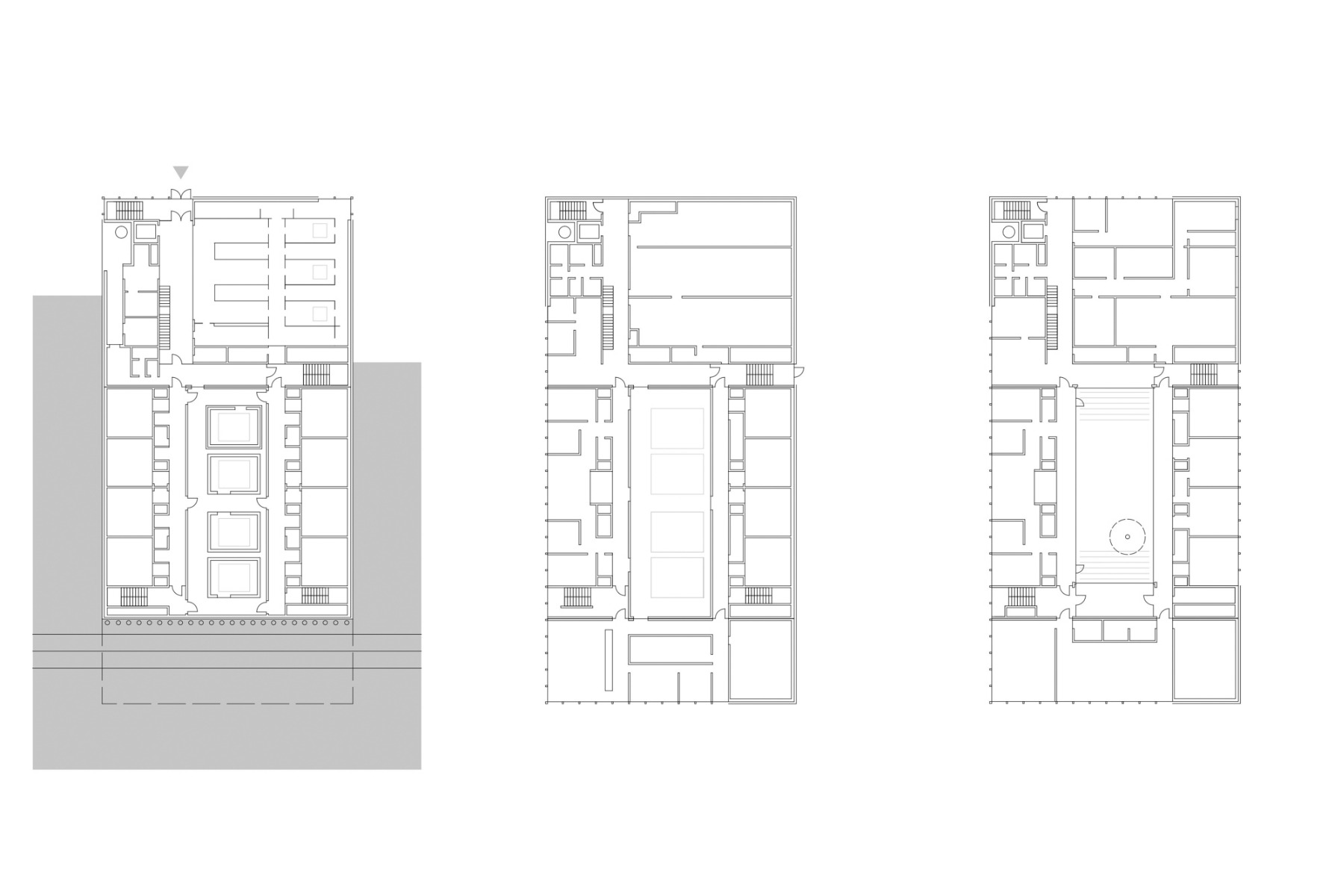
Das Raumprogramm setzt sich aus unterschiedlichen Laboren und Reinräumen, Büro- und Kommunikationsflächen zusammen. Zum Herzstück des interdisziplinären Forschungsbaus wird eine Halle mit vier Hochpräzisionsmessräumen im Zentrum des quaderförmigen Baukörpers. Die 10 m hohen Laborboxen schirmen die sensiblen Experimente vor baudynamischen Einflüssen ab.


© Brigida González
Lorem Ipsum: Zwischenüberschrift
Längs unterteilt sich das Volumen in drei Abschnitte. Nach dem Kopfbau mit Eingangsbereich folgt der – über die gesamte Höhe durch Bauteilfugen entkoppelte – Labortrakt und schließlich die Seminarflächen. Direkt über der Messlabor-Halle liegt im obersten Geschoss ein Innenhof. Er belichtet die angrenzenden Räume und lädt zu einer Pause im Freien ein. Mit Sichtbeton sowie weißen und schwarzen Oberflächen ist auch die Materialpalette funktional gehalten und komplettiert das neue Forschungszentrum ZAQuant der Universität Stuttgart.
Architektur: hammeskrause architekten bda
Bauherr: Land Baden-Württemberg, Universitätsbauamt Stuttgart und Hohenheim
Standort: Stuttgart (DE)
Tragwerksplanung: Weiske + Partner
HLSK-Planung: Planungsgruppe M+M
Elektroplanung: Müller & Bleher
Laborplanung: Planungsgruppe M+M
Bauphysik: Brüssau Bauphysik
Baudynamik: Müller BBM



















