Denkmalgerechte Umnutzung in Eigenregie
Hallenbad Ost in Kassel von KM Architekten
© Katharina Jaeger & Carolin Ludwig
Lorem Ipsum: Zwischenüberschrift
„Waschen ist gut, Baden ist besser, Schwimmen ist das Allerbeste“ soll der SPD-Politiker Philipp Scheidemann 1930 anlässlich der Eröffnung des Hallenbades Ost in Kassel gesagt haben. Es waren andere Zeiten damals, als fließendes Wasser in allen Wohnungen noch keine Selbstverständlichkeit war.


© Katharina Jaeger & Carolin Ludwig
Lorem Ipsum: Zwischenüberschrift
Ernst Rothe und Hermann Jobst hatten die Schwimmhalle im Stadtteil Bettenhausen im Stil der klassischen Moderne geplant – damals noch mit Waschräumen für die Körperpflege. Diese wichen später einer Sauna und einem Solarium, doch auch das konnte nicht verhindern, dass die Stadt das Hallenbad 2007 schloss.
Lorem Ipsum: Zwischenüberschrift
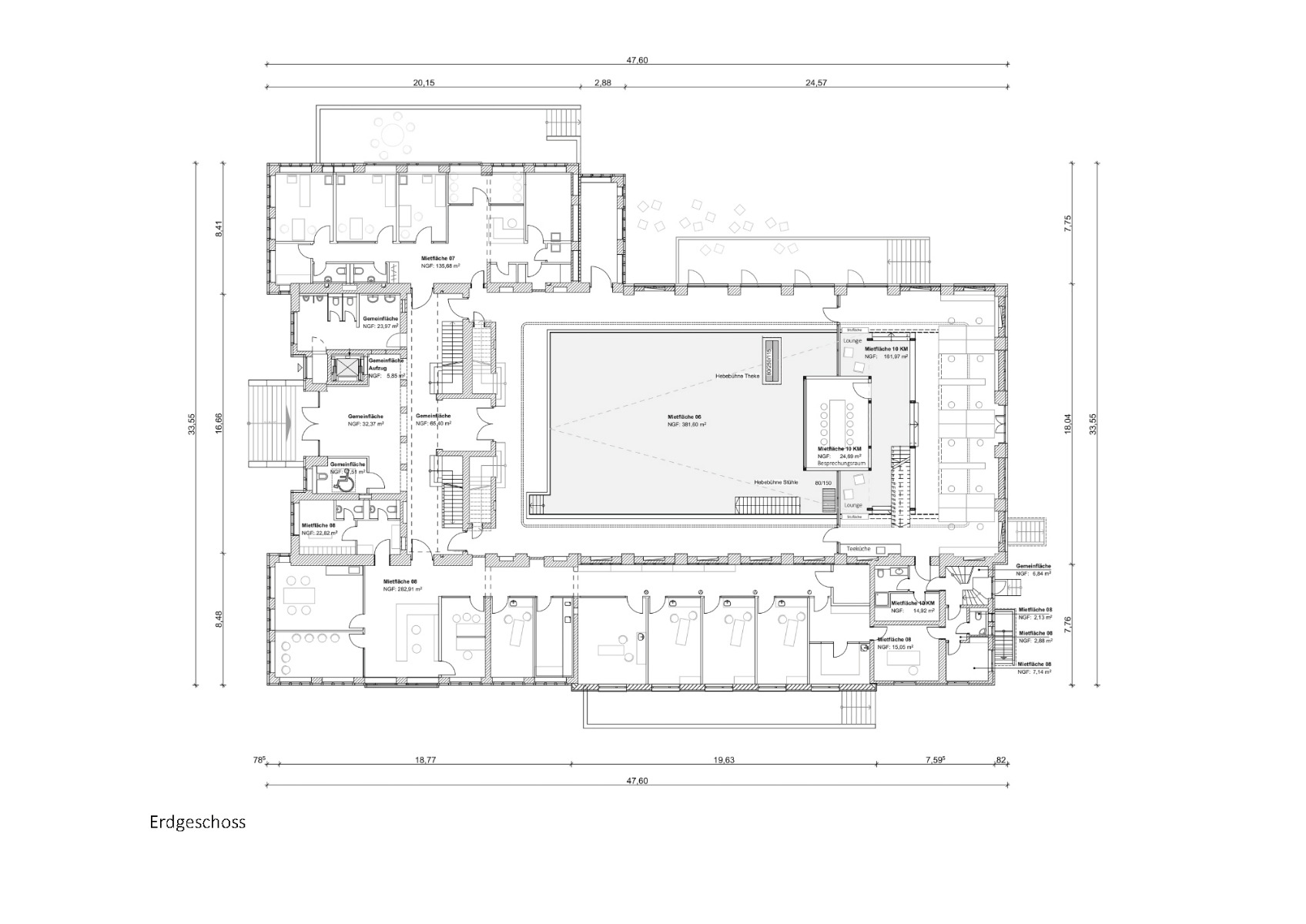
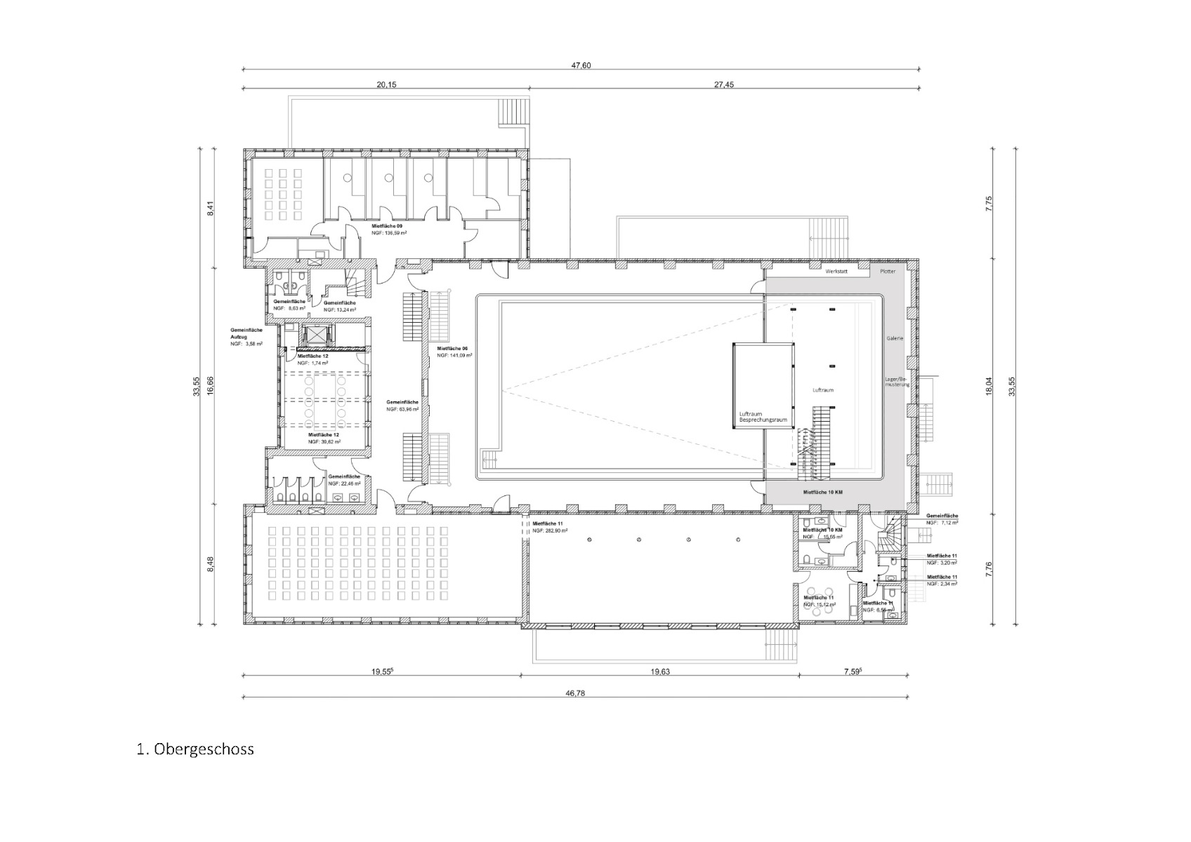
Mehrere Versuche, das Baudenkmal nachzunutzen, scheiterten, bis es 2018 die Architekten Keivan Karampour, Marc Köhler und Thomas Meyer erwarben. Gemeinsam mit ihrem Büro KM Architekten haben sie das Hallenbad in den letzten drei Jahren zum Coworking Space mit Eventhalle umgebaut und sind dort auch selbst eingezogen.


© Katharina Jaeger & Carolin Ludwig
Lorem Ipsum: Zwischenüberschrift
Angefangen von den kleinteilig gegliederten Fensterbändern bis zu den Fliesenbelägen gelang es ihnen, viele Originalbauteile zu erhalten. Die Fenster selbst wurden jedoch ausgetauscht, die Backsteinfassaden von innen gedämmt und das Flachdach erhielt eine Aufdachdämmung. Ganzglas-Raumteiler trennen nun die offen gehaltenen Büroebenen von der ehemaligen Schwimmhalle ab.


© Katharina Jaeger & Carolin Ludwig


© Katharina Jaeger & Carolin Ludwig
Lorem Ipsum: Zwischenüberschrift
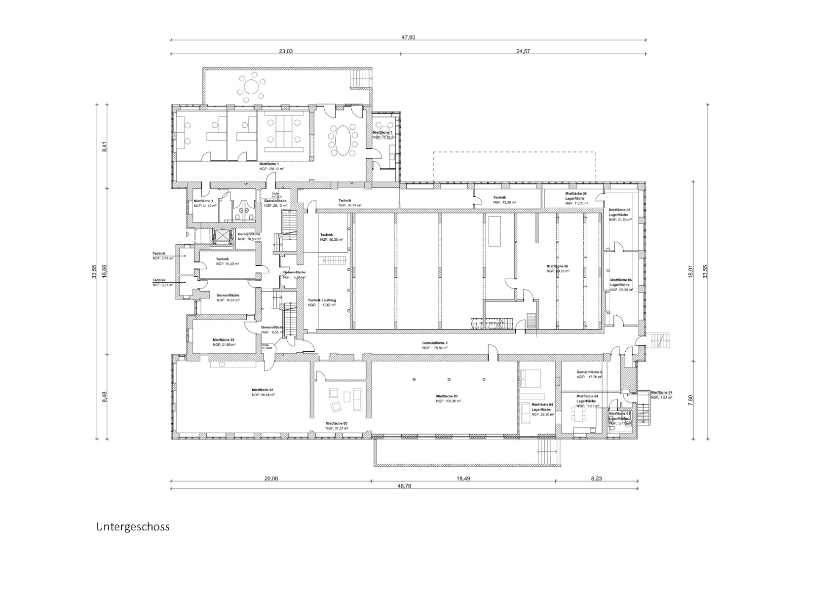
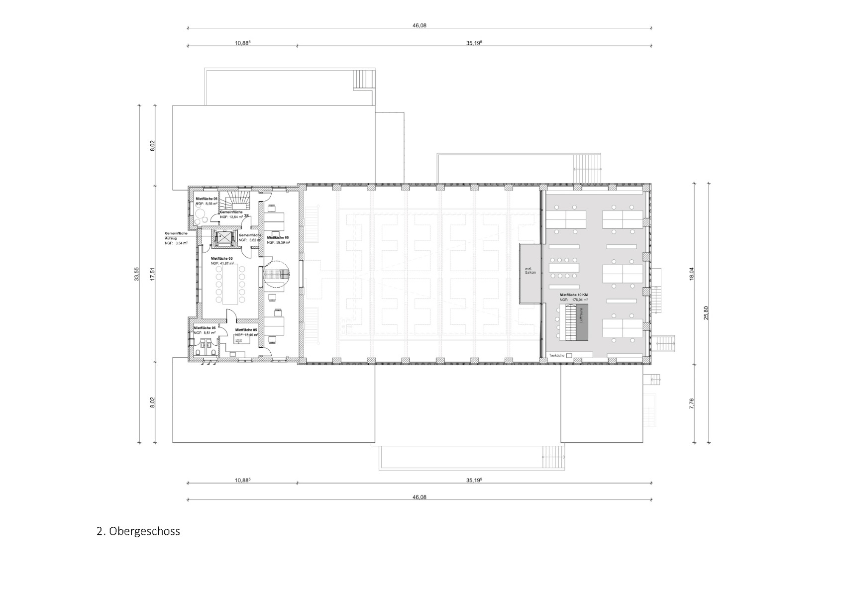
Im Schwimmbecken ließen die Architekten etwa auf Höhe des ehemaligen Wasserspiegels eine neue Betondecke einziehen; der schwierig nutzbare Raum darunter dient als Lagerfläche. Beim Umbau profitierten die Architekten davon, dass das Erdgeschoss und das erste Obergeschoss vor dem Umbau sehr offen waren und eher neue Wände eingezogen als alte abgebrochen werden mussten. Nur im Untergeschoss und in der obersten Etage war es nötig, einige Trennwände zu entfernen.


© Katharina Jaeger & Carolin Ludwig
Lorem Ipsum: Zwischenüberschrift
Bei der Beheizung der Räume entschieden sich die Architekten für Radiatoren in den Büroräumen und Deckenheizstrahler in der ehemaligen Schwimmhalle. Die dafür notwendige Wärme bezieht das Gebäude aus dem örtlichen Fernwärmenetz. 2022 steht im ehemaligen Hallenbad ein öffentlichkeitswirksames Event an – dann werden die Räume einer der Austragungsorte der diesjährigen Kunstausstellung documenta sein.
Architektur: KM Architekten
Bauherr: KMK Projektplan
Standort: Leipziger Straße 99, 34123 Kassel (DE)
Tragwerksplanung: Ingenieurbüro für Bauwesen H.-D. Baller
Bruttogrundfläche: 4237 m²
Umbauter Raum: 16 870 m³
Investitionsvolumen: ca. 4,9 Mio. €
Fördermittel: ca. 500 000 €





















