Demontierbarer Massivholzbau
Integrierte Gesamtschule Rinteln von Bez + Kock
© Marcus Ebener
Lorem Ipsum: Zwischenüberschrift
Im niedersächsischen Rinteln ist Norddeutschlands größte Schule in Holzbauweise entstanden. Die Integrierte Gesamtschule von Bez + Kock punktet auch in Sachen Energieffizienz.


© Marcus Ebener
Lorem Ipsum: Zwischenüberschrift
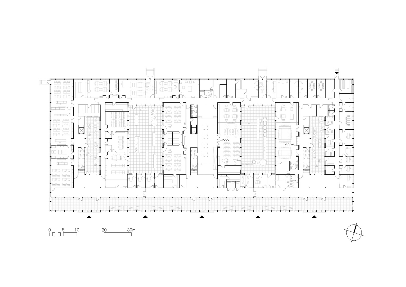
Der Neubau für 900 Schüler steht im örtlichen Schulzentrum am südlichen Stadtrand, wo Mitte der 1970er-Jahre bereits ein Gymnasium für 1200 Jungen und Mädchen – das Ernestinum – errichtet worden war. Der Kontrast zwischen der mit Lärchenholz verkleideten Gesamtschule und den Waschbetonfassaden ihres älteren Nachbarn könnte größer nicht sein. Gemeinsam ist den beiden Gebäuden ihre flache, maximal zweigeschossige Bauweise.
Lorem Ipsum: Zwischenüberschrift
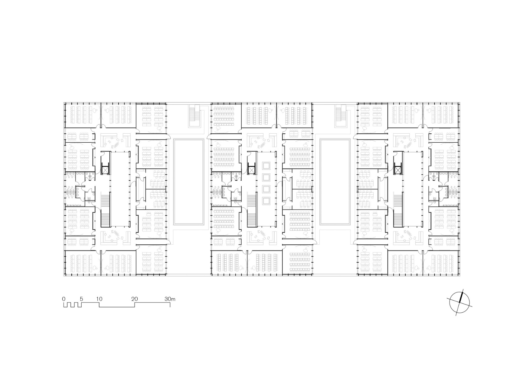
Bez + Kock entwarfen die Schule als einfaches Rechteck mit 112 m langer, im Erdgeschoss voll verglaster Eingangsfront und vier Innenhöfen, die Licht ins Gebäudeinnere bringen. Im Gebäudesockel sind Verwaltung und Fachräume untergebracht. Darüber erheben sich im Obergeschoss drei rechteckige Doppelcluster. Die Innenhöfe liegen teils zwischen, teils im Inneren der Cluster und sind abwechselnd als Spielhöfe oder als Schilfgärten gestaltet, um die Orientierung im Haus zu erleichtern. Eine Ausnahme bildet lediglich das mittlere Cluster dessen Zentrum ein überdachtes Atrium einnimmt.


© Marcus Ebener
Lorem Ipsum: Zwischenüberschrift
Die Raumaufteilung im Erdgeschoss beschreiben die Architekten wie folgt: „Musik- und Kunsträume bilden den zentralen Block der Fachklassen, der eher robustere Bereich der Werkräume ist nach Westen hin orientiert, die naturwissenschaftlichen Fachklassen definieren nach Norden hin den Rücken des Gebäudes. Der Verwaltungsbereich befindet sich nahe der Bushaltestellen und Parkplätze und ist somit für Eltern und Lehrer auf kurzem Wege erreichbar - und doch bezüglich des Schulbetriebs eher diskret angeordnet.“


© Marcus Ebener


© Marcus Ebener
Lorem Ipsum: Zwischenüberschrift
Die Integrierte Gesamtschule ist als barrierefreier, demontierbarer Holzbau – teils in Massiv- und teils in Skelettbauweise – konzipiert. Fast alle wesentlichen Tragwerks- und Bauteile bleiben im Innenraum sichtbar. Der Neubau erfüllt den KfW 55-Standard und wird mit Biogas aus einer nahegelegenen Anlage versorgt. Das Lärchenholz für die Fassaden stammt aus dem Forstbetrieb des Landkreises.


© Marcus Ebener
Lorem Ipsum: Zwischenüberschrift
Die Photovoltaikanlage auf den Dächern deckt mit einem Ertrag von 176 000 kWh nahezu vollständig den prognostizierten Jahresstromverbrauch von rund 200 000 kWh. Insgesamt wurden in der Schule nach Angaben der Architekten rund 2815 m³ Holz und etwa 2650 m³ Beton verbaut.
Architektur: Bez + Kock Architekten Generalplaner
Bauherr: Landkreis Schaumburg
Standort: Paul-Erdniß-Straße 1, 31737 Rinteln (DE)
Tragwerksplanung: Wetzel und von Seht
HLS-Planung: Reich und Hölscher Ingenieurbüro
Elektroplanung: Ingenieurbüro Schröder und Partner
Landschaftsarchitektur: Büro für Freiraumplanung Christine Früh
Bauleitung: Ernst2 Architekten
Projektsteuerung: pmd Gesellschaft für Projektmanagement


















