// Check if the article Layout ?>
Intimität und Öffentlichkeit: Chooji Restaurant in Teheran
Foto: Mehdi Kolahi
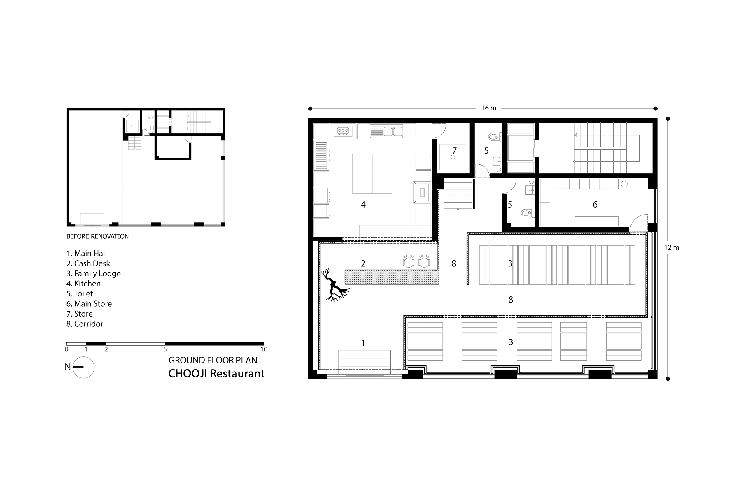
Wenn die Architekten eines nicht wollten, dann war es – wie viele andere Bauprojekte im Stadtbild – mit ihrer Intervention mehr zu zerstören als zu verbessern. So bildet ihr Umbau nun auch eher ein Beispiel dafür, wie man mit subtilen Eingriffen mehrere Prinzipien auf einmal bedienen und dennoch kulturelle Gegebenheiten architektonisch ausdrücken kann. Hinzu kam die limitierte Mietzeit der Räumlichkeiten, die ein Umdenken des Gebäudeumgangs forderte. Alle existierenden Wände wurde erhalten und auch die Fassade kaum verändert. Ein bereits bestehendes Mezzaningeschoss wurde in das Restaurantkonzept integriert und ebenso wie das Erdgeschoss um weitere Räumlichkeiten wie Lagerräume und eine großzügige Küche ergänzt. Diese bildet nun nicht nur das Herz des Restaurants, sondern auch das Aushängeschild unmittelbar im Eingangsbereich. Der an dieser Stelle zweigeschossige Raum bietet so ein neugierig machendes Entree, welches vorbeilaufenden Passanten unmittelbar die Nutzung des Lokals verrät und im Innenraum ein offenes Gefühl, sowie einen guten Überblick über das Restaurant verschafft.
Gleichzeitig symbolisiert die Eingangssituation das Wechselspiel von Öffentlichkeit und Privatsphäre, welches im Iran kulturell und architektonisch eine wichtige Rolle spielt. Während das Restaurant Offenheit ausstrahlt, bieten die, durch schlanke Holzstäbe geformten Innenwände privatere Zonen innerhalb des Raumes und schaffen so eine Intimsphäre innerhalb eines öffentlichen Ortes. Die Holzstäbe lassen sich den Raum bewegen: Einfallendes Licht, speisende und sich bewegende Gäste vor und hinter den lamellenartigen Wänden schaffen ein dynamisches Bild. Es entstehen geschlossenere Räume im Raum, zum Essen und Verweilen, ohne dabei gänzlich geschlossen zu wirken.
Die Materialwahl von Holz und Metall bietet Potential zur Wiederverwendung. Auch wurden alle Details so ausgebildet, dass sie leicht an potentielle neue Nutzungen angepasst werden können. So soll nicht nur Geld, sondern auch Ressourcen schonend mit dem Bestand umgegangen werden.
In ihrer unterschiedlichen Verwendung erinnern die Holzstäbe dabei mal an asiatische Holzstäbchen oder Makisus, mal an Flaschendeckel oder Korken. In jedem Fall wecken sie indirekt Assoziationen zum Essen und laden zum Einkehren ein. Im Kontrast dazu stehen dunkle Streckmetallgitter, die Einblicke hinter die Kulissen erlauben. So bleiben Altbestand und Technik sichtbar und werden erfahrbar. Die verschiedenen Zonen im Chooji Restaurant scheinen den ursprünglichen Raum zu erobern: Sie kreieren eine Art Integration in den Bestand und geben dem Ort gleichzeitig eine neue Identität. So bleibt der Eingangskorridor offen und einladend ohne in die Privatsphäre der Essecken einzugreifen, während die in Holz gehüllten Sitzplätze eine Intimsphäre innerhalb des öffentlichen Ortes schaffen.
Gleichzeitig symbolisiert die Eingangssituation das Wechselspiel von Öffentlichkeit und Privatsphäre, welches im Iran kulturell und architektonisch eine wichtige Rolle spielt. Während das Restaurant Offenheit ausstrahlt, bieten die, durch schlanke Holzstäbe geformten Innenwände privatere Zonen innerhalb des Raumes und schaffen so eine Intimsphäre innerhalb eines öffentlichen Ortes. Die Holzstäbe lassen sich den Raum bewegen: Einfallendes Licht, speisende und sich bewegende Gäste vor und hinter den lamellenartigen Wänden schaffen ein dynamisches Bild. Es entstehen geschlossenere Räume im Raum, zum Essen und Verweilen, ohne dabei gänzlich geschlossen zu wirken.
Die Materialwahl von Holz und Metall bietet Potential zur Wiederverwendung. Auch wurden alle Details so ausgebildet, dass sie leicht an potentielle neue Nutzungen angepasst werden können. So soll nicht nur Geld, sondern auch Ressourcen schonend mit dem Bestand umgegangen werden.
In ihrer unterschiedlichen Verwendung erinnern die Holzstäbe dabei mal an asiatische Holzstäbchen oder Makisus, mal an Flaschendeckel oder Korken. In jedem Fall wecken sie indirekt Assoziationen zum Essen und laden zum Einkehren ein. Im Kontrast dazu stehen dunkle Streckmetallgitter, die Einblicke hinter die Kulissen erlauben. So bleiben Altbestand und Technik sichtbar und werden erfahrbar. Die verschiedenen Zonen im Chooji Restaurant scheinen den ursprünglichen Raum zu erobern: Sie kreieren eine Art Integration in den Bestand und geben dem Ort gleichzeitig eine neue Identität. So bleibt der Eingangskorridor offen und einladend ohne in die Privatsphäre der Essecken einzugreifen, während die in Holz gehüllten Sitzplätze eine Intimsphäre innerhalb des öffentlichen Ortes schaffen.
weitere Informationen:
Fläche: 200 m2
Projektleitung: Shobeir Mousavi , Amirreza Fazel , Mehdi Kolahi
Designteam: Masoud Almasi, Zohreh Baghejari, Niusha Ghasem, Ramtin Haghnazar, Marjan Rafighi, Bita Latifi, Roshanak Fathi
Admun Studio auf Instagram
Fotos: Parham Taghioff, Mehdi Kolahi
Projektleitung: Shobeir Mousavi , Amirreza Fazel , Mehdi Kolahi
Designteam: Masoud Almasi, Zohreh Baghejari, Niusha Ghasem, Ramtin Haghnazar, Marjan Rafighi, Bita Latifi, Roshanak Fathi
Admun Studio auf Instagram
Fotos: Parham Taghioff, Mehdi Kolahi



































