// Check if the article Layout ?>
Laterne im Dunkeln: Treffpunkt für die Kunst bei Montreal
Foto: Adrien Williams
Das neue Kunstzentrum in Repentigny ist Teil eines größeren Masterplans. Es bildet den Auftakt zur Umgestaltung eines kargen und kaum genutzten Parks. Das grüne Areal soll durch die geplanten Interventionen seinen Charakter grundlegend verändern und kulturelle Einrichtungen mit Gärten und urbanen Plätzen aufnehmen. Umrahmt von einem Geflecht aus Straßen, die von einfachen Bungalows gesäumt sind, soll das Projekt in seiner unmittelbaren Umgebung vermitteln und einen Ort der Gemeinschaft ins Leben rufen.
Die Architektur des Gebäudes vereint klassische Elemente mit den Ideen zeitgenössischer Kunst. Der langgestreckte Flachdachquader öffnet sich mit einer Kolonnade auf eine Wasserfläche und zeigt sich ebenso leicht wie bodenständig. Einige Pfeiler brechen aus dem strengen Raster und sind schräg gestellt, wodurch die Räume im Innen- und Außenraum eine prägnante Dynamik erhalten.
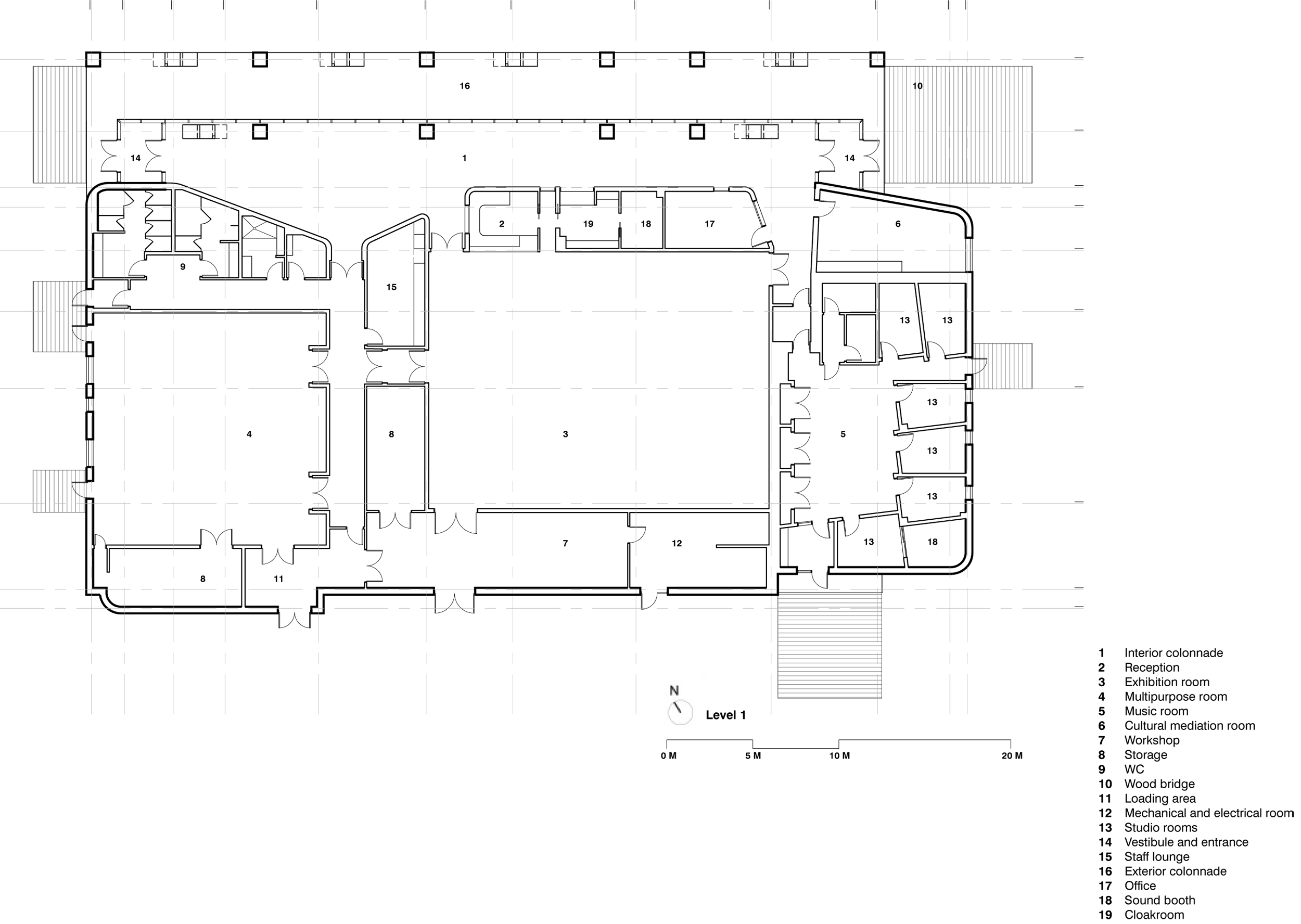
Der Grundriss gliedert die Bereiche in verschiedene Schichten. Besucher können sich entscheiden, wie weit sie in das Gebäudeinnere vordringen möchten, ob sie im äußeren Gang flanieren, sich zwischen den Pfeilern des Innenraums aufhalten oder sogar in die von außen abgeschirmten, der Kunst vorbehaltenen Ausstellungsräume eintauchen. Die Innenräume sind in drei multifunktionale Raumzonen strukturiert. Die Galerie entlang der verglasten Fassade spiegelt die äußere Kolonnade, der Hauptgaleriebereich konzentriert sich auf die Kunst und in einem weiteren Raum finden Tanzdarbietungen und Vorträge statt.
Ähnlich wie die Innenräume lädt auch der Vorhof zum Flanieren ein und umrahmt die reflektierende Wasserfläche.
Die Fassaden des ausdrucksstarken Gebäudes leuchten geradezu, sie sind in polierte Edelstahlpaneele gehüllt, die den Takt für die Atmosphäre der gesamten Umgebung vorgeben. Im Inneren sind geschwungene Volumen in den hohen Raum eingestellt, die im Kontrast zum kalten Metall mit Holz verkleidet sind. Vor allem im Dunkeln zieht das Zentrum die Aufmerksamkeit der Passanten auf sich, wenn es von Innen strahlt und den umliegenden Park wie eine Laterne beleuchtet. Mit dieser Signalwirkung des Kunstzentrums ist es ACDF Architecture gelungen, einen lebendigen Anziehungspunkt und ein markantes Icon für den gesamten Vorort zu schaffen.
Die Architektur des Gebäudes vereint klassische Elemente mit den Ideen zeitgenössischer Kunst. Der langgestreckte Flachdachquader öffnet sich mit einer Kolonnade auf eine Wasserfläche und zeigt sich ebenso leicht wie bodenständig. Einige Pfeiler brechen aus dem strengen Raster und sind schräg gestellt, wodurch die Räume im Innen- und Außenraum eine prägnante Dynamik erhalten.
Der Grundriss gliedert die Bereiche in verschiedene Schichten. Besucher können sich entscheiden, wie weit sie in das Gebäudeinnere vordringen möchten, ob sie im äußeren Gang flanieren, sich zwischen den Pfeilern des Innenraums aufhalten oder sogar in die von außen abgeschirmten, der Kunst vorbehaltenen Ausstellungsräume eintauchen. Die Innenräume sind in drei multifunktionale Raumzonen strukturiert. Die Galerie entlang der verglasten Fassade spiegelt die äußere Kolonnade, der Hauptgaleriebereich konzentriert sich auf die Kunst und in einem weiteren Raum finden Tanzdarbietungen und Vorträge statt.
Ähnlich wie die Innenräume lädt auch der Vorhof zum Flanieren ein und umrahmt die reflektierende Wasserfläche.
Die Fassaden des ausdrucksstarken Gebäudes leuchten geradezu, sie sind in polierte Edelstahlpaneele gehüllt, die den Takt für die Atmosphäre der gesamten Umgebung vorgeben. Im Inneren sind geschwungene Volumen in den hohen Raum eingestellt, die im Kontrast zum kalten Metall mit Holz verkleidet sind. Vor allem im Dunkeln zieht das Zentrum die Aufmerksamkeit der Passanten auf sich, wenn es von Innen strahlt und den umliegenden Park wie eine Laterne beleuchtet. Mit dieser Signalwirkung des Kunstzentrums ist es ACDF Architecture gelungen, einen lebendigen Anziehungspunkt und ein markantes Icon für den gesamten Vorort zu schaffen.
Weitere Informationen:
Mitarbeiter: Maxime-Alexis Frappier, Joan Renaud, Martin Champagne, Maxime Boiselle, Mathieu St-Hilaire, France Perras, Christelle Montreuil Jean-Pois, Étienne Laplante, Guillaume Pelletier
Tragwerksplanung: Dubé Beaudry et associés
TGA-Planung: WSP
Bauunternehmen: L’Archevêque et Rivest
Landschaftsarchitekt: BC2 Fläche: 1 365 m2
Fotograf: Adrien Williams
Mitarbeiter: Maxime-Alexis Frappier, Joan Renaud, Martin Champagne, Maxime Boiselle, Mathieu St-Hilaire, France Perras, Christelle Montreuil Jean-Pois, Étienne Laplante, Guillaume Pelletier
Tragwerksplanung: Dubé Beaudry et associés
TGA-Planung: WSP
Bauunternehmen: L’Archevêque et Rivest
Landschaftsarchitekt: BC2 Fläche: 1 365 m2
Fotograf: Adrien Williams













