// Check if the article Layout ?>
Pilzförmige Skulptur: Bürogebäude in Küsnacht
Foto: David Willen
Umgeben von traditionellen, regionaltypischen Wohnhäusern, besticht der neue Baukörper durch seine skulpturale Erscheinung: Das stützenfreie Erdgeschoss zeigt sich als ein rechteckiger Sockel, in dem sich der Zugang befindet. Die vierseitige Auskragung des Oberbaus erzeugt eine überdachte Freifläche mit Parkmöglichkeiten. Travertinplatten bedecken sowohl den eingeschossigen Sockel als auch die Untersicht der Auskragung, was die pilzförmige Gesamterscheinung des Baukörpers verstärkt.
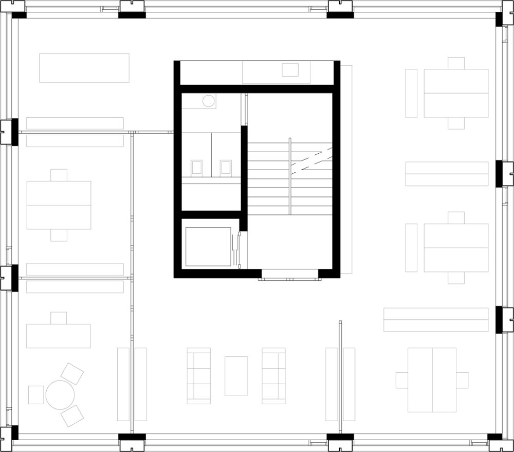
In den oberen Etagen des Volumens befinden sich die Büroräume der Firma. Hier folgt die Grundrissorganisation einem einfachen, durchgängigen Erschließungskonzept: Ein innenliegendes Treppenhaus mit angrenzenden Nebenräumen durchzieht alle Geschosse des Gebäudes und bildet einen zentralen Funktionskern aus. Um diesen Kern herum arrangieren sich die Bürozimmer mit ungestörten Ausblicken in alle Himmelrichtungen. Großformatige Fenster mit Rahmen aus geschliffenem, anodisiertem Aluminium inszenieren den Ausblick auf den See und der dahinterliegenden Albiskette und versorgen die Büros mit ausreichend Tageslicht. Im dritten Obergeschoss erweitern windmühlenartig angeordnete Dachterrassen den Innenraum nach außen.
Als Immobilienfirma für exklusives Wohneigentum erhält Wüst und Wüst mit diesem Projekt einen außergewöhnlichen, neuen Firmensitz. Der skulpturale Baukörper bildet eine »plastische Antihese« zu seiner städtebaulichen Umgebung und wird so zum architektonischen Blickfang in der gesamten Straße. Mit seiner pilzförmigen Erscheinung vermittelt der Baukörper Einzigartigkeit und Besonderheit und verleiht der Immobilienfirma somit ein individuelles und repräsentatives Gesicht.
In den oberen Etagen des Volumens befinden sich die Büroräume der Firma. Hier folgt die Grundrissorganisation einem einfachen, durchgängigen Erschließungskonzept: Ein innenliegendes Treppenhaus mit angrenzenden Nebenräumen durchzieht alle Geschosse des Gebäudes und bildet einen zentralen Funktionskern aus. Um diesen Kern herum arrangieren sich die Bürozimmer mit ungestörten Ausblicken in alle Himmelrichtungen. Großformatige Fenster mit Rahmen aus geschliffenem, anodisiertem Aluminium inszenieren den Ausblick auf den See und der dahinterliegenden Albiskette und versorgen die Büros mit ausreichend Tageslicht. Im dritten Obergeschoss erweitern windmühlenartig angeordnete Dachterrassen den Innenraum nach außen.
Als Immobilienfirma für exklusives Wohneigentum erhält Wüst und Wüst mit diesem Projekt einen außergewöhnlichen, neuen Firmensitz. Der skulpturale Baukörper bildet eine »plastische Antihese« zu seiner städtebaulichen Umgebung und wird so zum architektonischen Blickfang in der gesamten Straße. Mit seiner pilzförmigen Erscheinung vermittelt der Baukörper Einzigartigkeit und Besonderheit und verleiht der Immobilienfirma somit ein individuelles und repräsentatives Gesicht.
weitere Informationen:
Bauherrschaft: Trio Wüst, Zürich
Baumanagement: Inova Intercity, Uster
Bauingenieur: Dr. Lüchinger + Meyer Bauingenieure, Zürich
Fassadenplaner: gkp Fassadentechnik, Aadorf
Haustechnik: Meili Tanner Partner, Uster
Landschaftsarchitekt: Kuhn Truninger Landschaftsarchitekten, Zürich
Baumanagement: Inova Intercity, Uster
Bauingenieur: Dr. Lüchinger + Meyer Bauingenieure, Zürich
Fassadenplaner: gkp Fassadentechnik, Aadorf
Haustechnik: Meili Tanner Partner, Uster
Landschaftsarchitekt: Kuhn Truninger Landschaftsarchitekten, Zürich










