// Check if the article Layout ?>
Schulduo: Bildungsbau »De Tol« in Riemst
Foto: Filip Dujardin
Der Bauplatz befindet sich mitten in Herderens, einem der Orte die zur Gemeinde Reimst gehören. Kirche, Friedhof, Kindertagesstätte und ein kleiner Park fassen ihn rundherum ein und geben, bedingt durch ihre differierenden Höhenlagen, spannende Rahmenbedingungen vor. Über die Positionierung der Eingänge macht der Entwurf den Bezug zu den angrenzenden Parzellen deutlich spürbar.
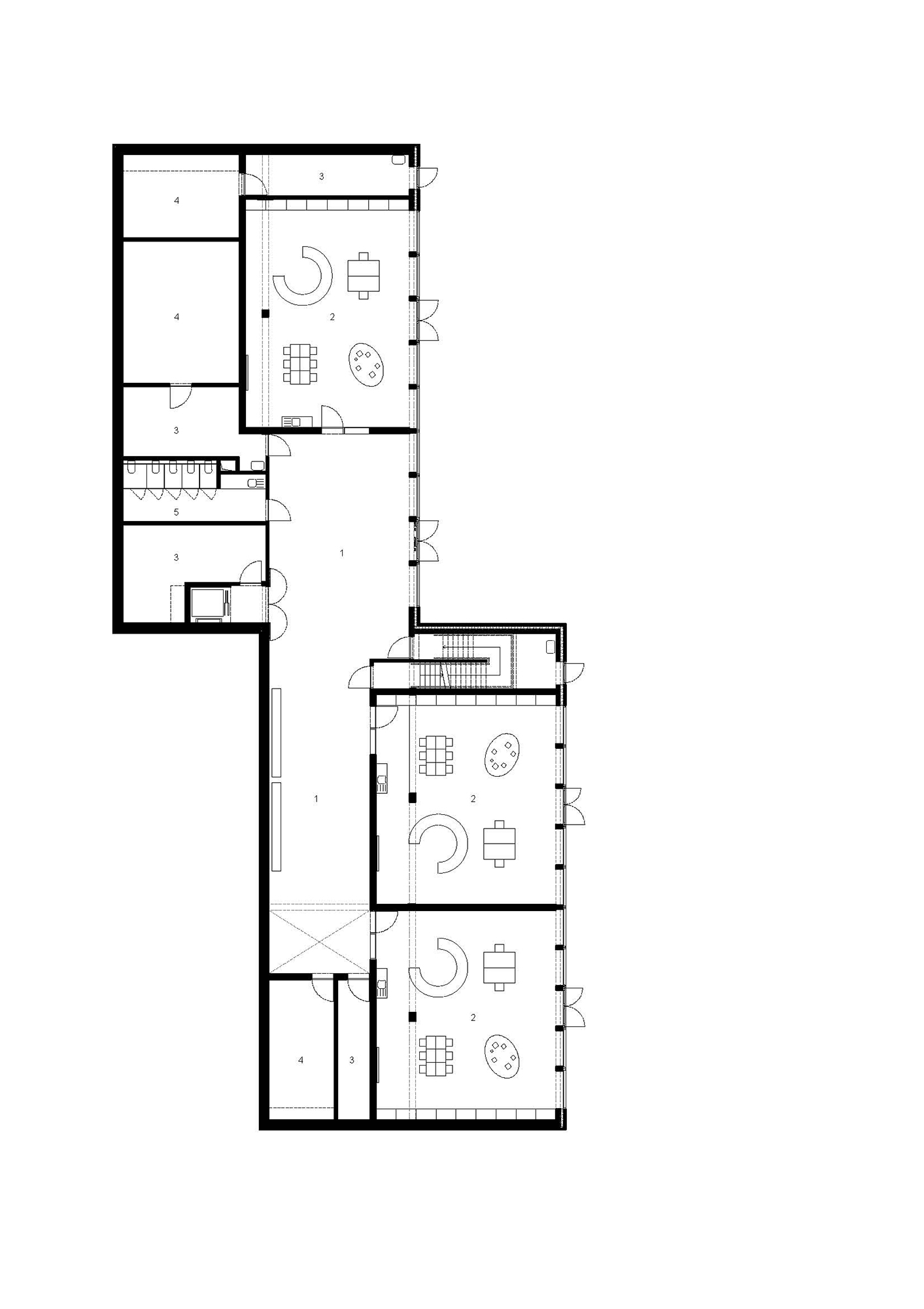
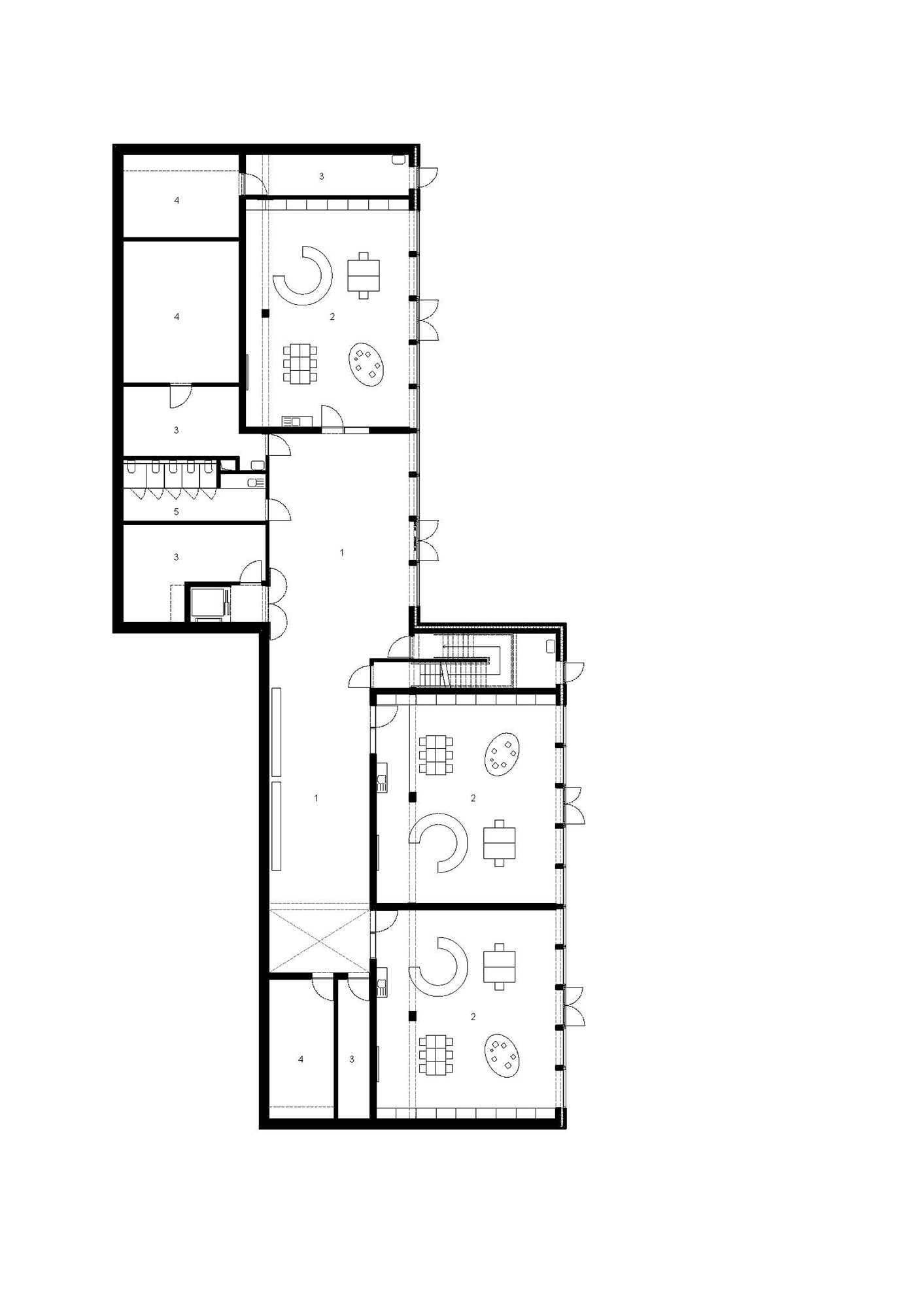
Die Schule besteht aus zwei gleich großen, rechteckigen Baukörpern, die sich auf drei Ebenen in die Höhe entwickeln. Diese sind in Längsrichtung aneinandergereiht und an der Querseite zusammengeschlossen, indem sie um die Hälfte zueinander verschoben angeordnet sind. So entstehen zwei Innenecken, an denen sich die Zugänge befinden: Für die Vorschule im Untergeschoss nach Osten hin, von Westen her für die Grundschule in den oberen beiden Stockwerken.
Beide Volumina sprechen in ihrem äußeren Erscheinungsbild dieselbe Sprache. Eine helle Sockelzone aus sandfarbenen Ziegeln wird durch raumhohe Verglasungen mit schwarzen Rahmen ergänzt. Darüber ist der Bau in eine mintgrüne Hülle aus plakativen, vertikal strukturierten Elementen gepackt. Diese ziehen sich von den Fassadenflächen bis auf die Satteldächer hinauf.
Die programmatische Einteilung der Innenräume führt die Zweiteilung, die die Außenansicht bereits ankündigt, weiter fort. Im Untergeschoss findet die Vorschule ihren Platz. Sie orientiert sich zu einem Spielplatz an der ostseitigen Längsfassade des Gebäudeduos hin und funktioniert unabhängig von den anderen beiden Stockwerken. Es gibt drei Klassenzimmer und mehrere kleinere Räume. Verbunden werden sie durch einen zentralen Gemeinschaftsbereich.
An der entgegengesetzten Gebäudeseite gelangt man auf dem nächsten Niveau über einen weitläufigen Vorplatz zum Zugang der Grundschule. Diese ist zweigeschossig und gestaltet sich offen rund um ein atriumähnliches Treppenhaus. Der untere Teil umfasst administrative Räume und eine große Halle, die sowohl als Speisesaal, als auch als Treffpunkt für Vereine genutzt wird. Im oberen Level befinden sich die sechs Klassenräume.
Die Gestaltung im Inneren setzt sich aus einem Mix an grauen Sichtbetonoberflächen, beigen Deckenplatten und weißen Wänden zusammen. Holzelemente und knallgelbe Akzente komplettieren das helle Ambiente und verleihen dem Schulbau einen kinderfreundlichen Touch.

















