Lichtmaschine auf dem Friedhof
The Lodge in London von Simon Gill Architects
© James Brittain
Endlose Reihenhauszeilen säumen die Straßen rund um den Friedhof von Fulham im Londoner Süden. Mit einer Ausnahme: Das ehemalige Pförtnerhaus des Friedhofs selbst dient nun einem Unternehmer und seiner Familie als repräsentativer Wohnsitz. Vier Schlafzimmer und drei Bäder haben Simon Gill Architects in dem neogotischen Altbau untergebracht, der mit der gegenüberliegenden Friedhofskapelle ein städtebauliches Ensemble beidseitig der Friedhofszufahrt bildet.


© James Brittain
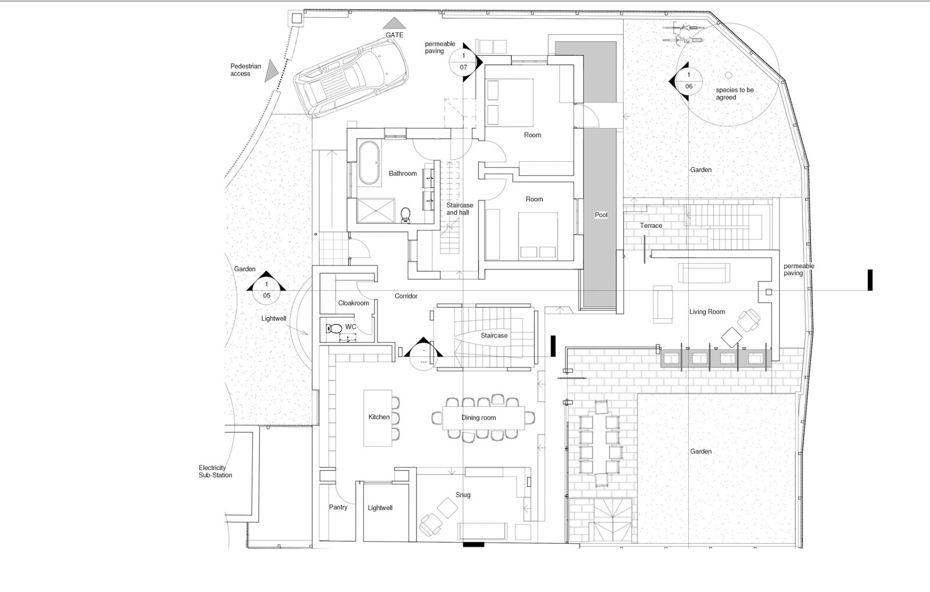
Der weitaus größte Teil des Raumprogramms liegt jedoch in und unter einem L-förmigen Anbau, der südlich an das Bestandsgebäude anschließt. Im Erdgeschoss umgeben die offene Küche mit Essplatz und das Wohnzimmer einen kleinen Garten, der an einen Klosterhof erinnert. Im Untergeschoss kommen drei weitere Schlafzimmer mit Bädern, ein Medienzimmer und ein Swimmingpool hinzu. „Iceberg Homes“ nennt man solche Gebäude, bei denen der Löwenanteil des Raumprogramms unter der Erde liegt, in London. Doch diese Bezeichnung negiert die Raffinesse, mit der die Architekten Innen und Außen durch überraschende Sichtachsen verbunden und Tageslicht tief ins Innere des Hauses geholt haben. Durch nicht weniger als fünf Oberlichter im Flachdach fällt das Licht teilweise bis in den Spa-Bereich im Untergeschoss.


© Bertrand Verney


© James Brittain
Die zur Straße hin weitgehend geschlossenen Fassaden bestehen wie beim Altbau aus Kalkstein, unterscheiden sich jedoch in der Oberflächenbehandlung. Sie sind zu glatten, regelmäßigen Blöcken geschnitten und mit durchlaufenden Lagerfugen statt aus unregelmäßigem Bruchsteinmauerwerk gefügt. Besonders deutlich wird der Oberflächenkontrast an der Schnittstelle zwischen Alt und Neu, wo glattes und raues Mauerwerk direkt aufeinandertreffen. Hier und da ließen die Architekten sich auch von der Steinmetzkunst der (Neo-)Gotik inspirieren – etwa beim Handlauf der Treppe, die in einer 180-Grad-Krümmung um einen Treppenpfeiler aus Kalkstein herum ins Untergeschoss führt.
BLINDTEXT Mehr dazu in Detail 3.2022 und in unserer Datenbank Detail Inspiration.


© James Brittain


© James Brittain
Lorem Ipsum: Zwischenüberschrift
Architektur: Simon Gill Architects
Bauherr: Justin Maxwell-Stuart
Standort: 62 Bronsart Rd, London SW6 6AB (GB)
Tragwerksplanung: Green Structural engineering
TGA-Planung: Will Potter Partnership
Lichtplanung: Light House Designs































