Verkohlt: Wochenendhaus im Isergebirge
Nähert man sich dem Ferienhaus im Herbst bei tief hängenden Wolken und ziehenden Nebelfetzen, wirken die beiden schwarzen Holzhäuser auf einer Wiese am Waldrand durchaus dramatisch. Dabei beruht dieser Effekt vor allem auf den verkohlten Holzbrettern, mit denen Fassaden, Dächer und Kamin bekleidet sind.
Deren Außenseite wurde vom Bauherrn in Eigenarbeit verkohlt. Diese aus Japan stammende Technik schützt das Holz ohne Chemikalien vor Schädlingen und Verwitterung – bei der geografischen Lage des Hauses zählen zu den widrigen Witterungseinflüssen insbesondere kalte Nordwinde und viel Schnee im Winter.
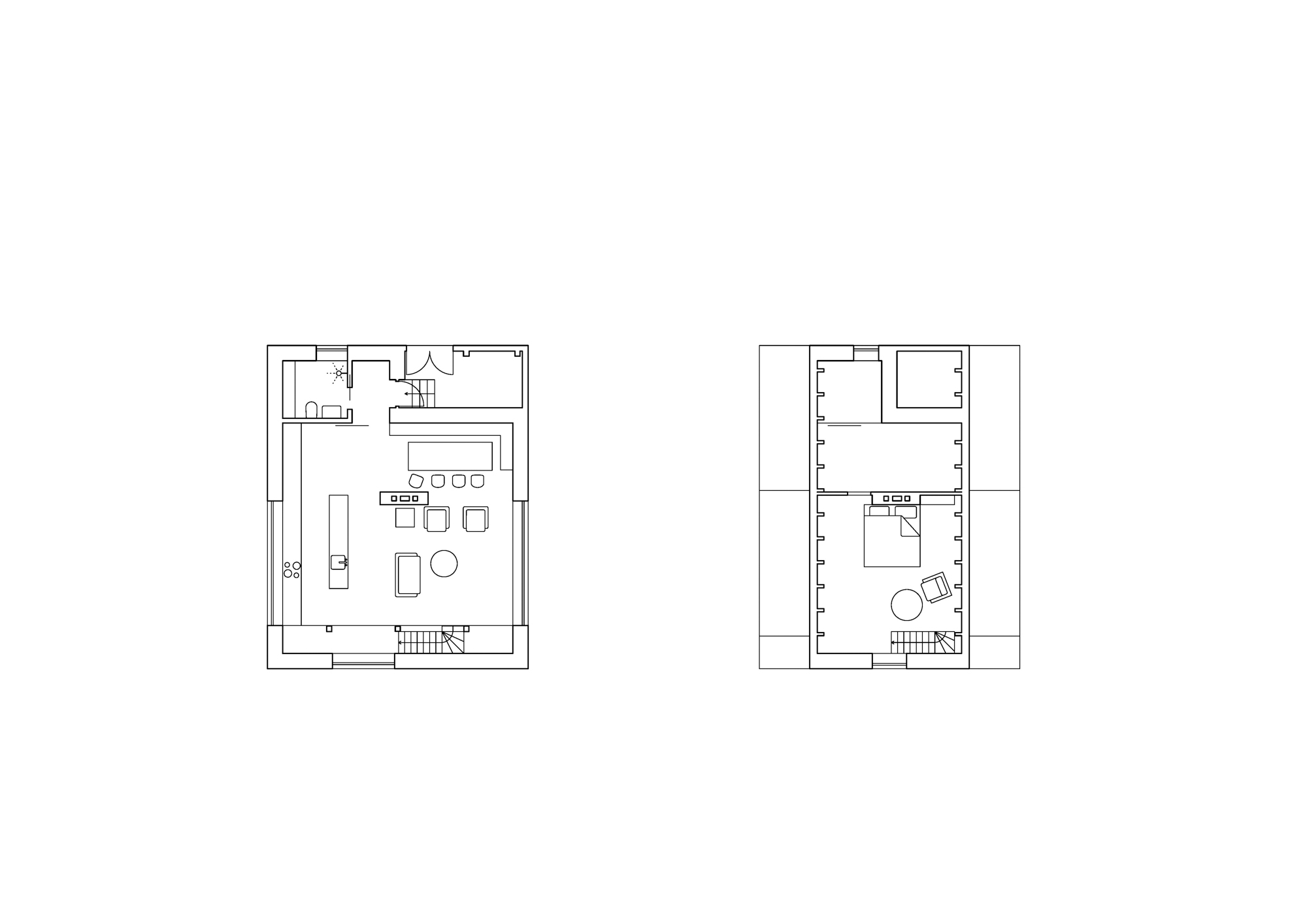
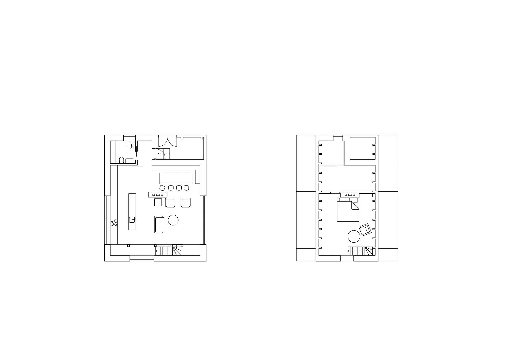
Das Innere der Hütte prägt – im Gegensatz zur schwarzen Außenhülle – eine helle Atmosphäre durch viel unbehandeltes Holz. Mjölk Architekti haben den ursprünglichen Grundriss der Hütte abgeändert: Das Erdgeschoss nimmt Wohnraum und Küche auf, unter dem Dach befinden sich zwei Schlafzimmer. Das größere ist über eine versteckte Treppe in einem begehbaren Kleiderschrank erreichbar; das zweite kleinere über eine Leiter von der Küche aus. Gegenüber vom Kamin bietet ein tiefes sogenanntes „Schlaffenster“ einen weiteren Übernachtungsplatz.
Die abstrakte Erscheinung des Wochenendhauses wird verstärkt durch ein rundes Bullaugenfenster im Obergeschoss, ein großes Fenster über der aufgeständerten Terrasse lässt Licht in den Wohnraum fließen.

















