Wohnlicher Brutalismus
Foto: Laurian Ghinitoiu, Courtesy of OMA
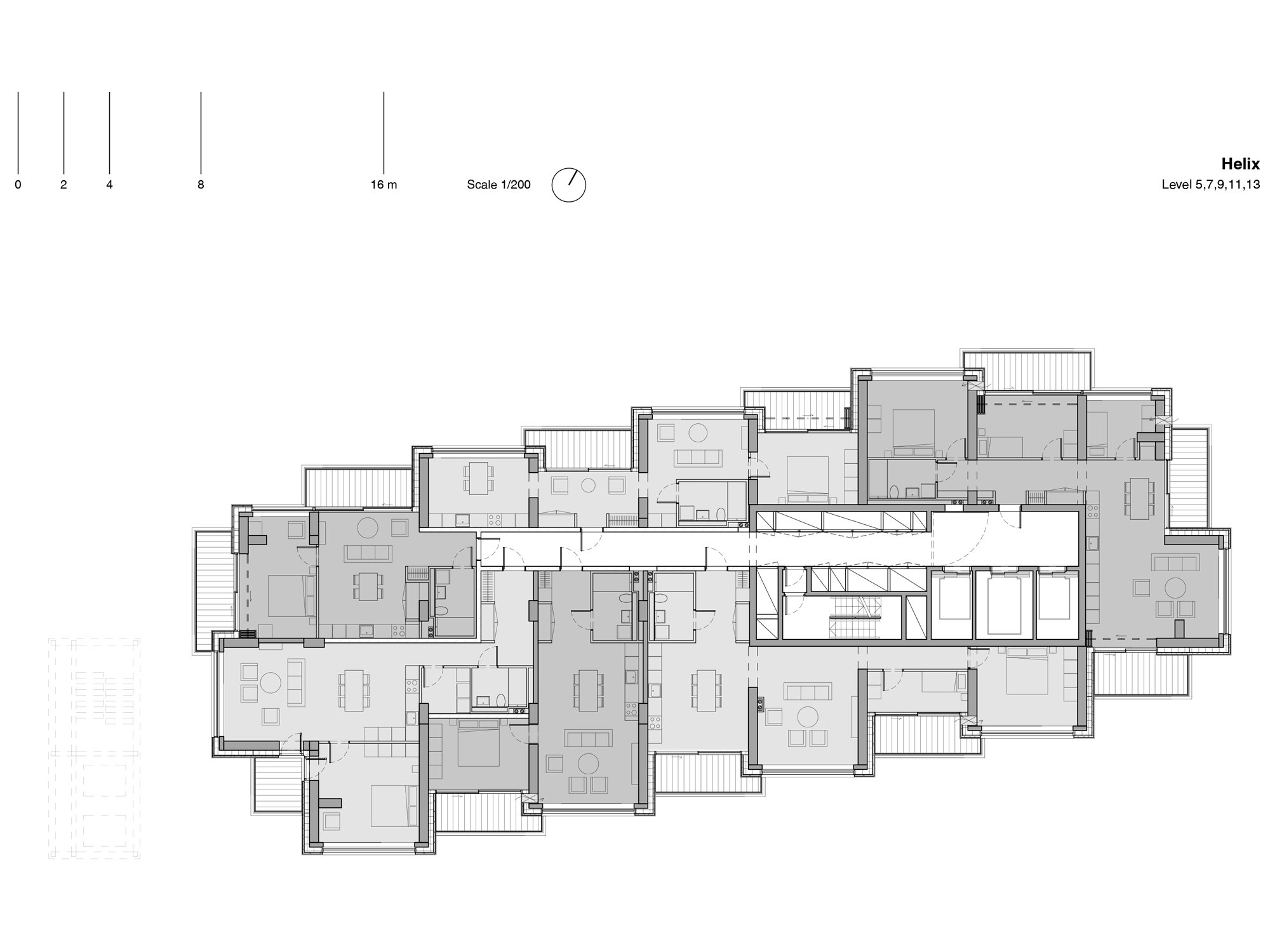
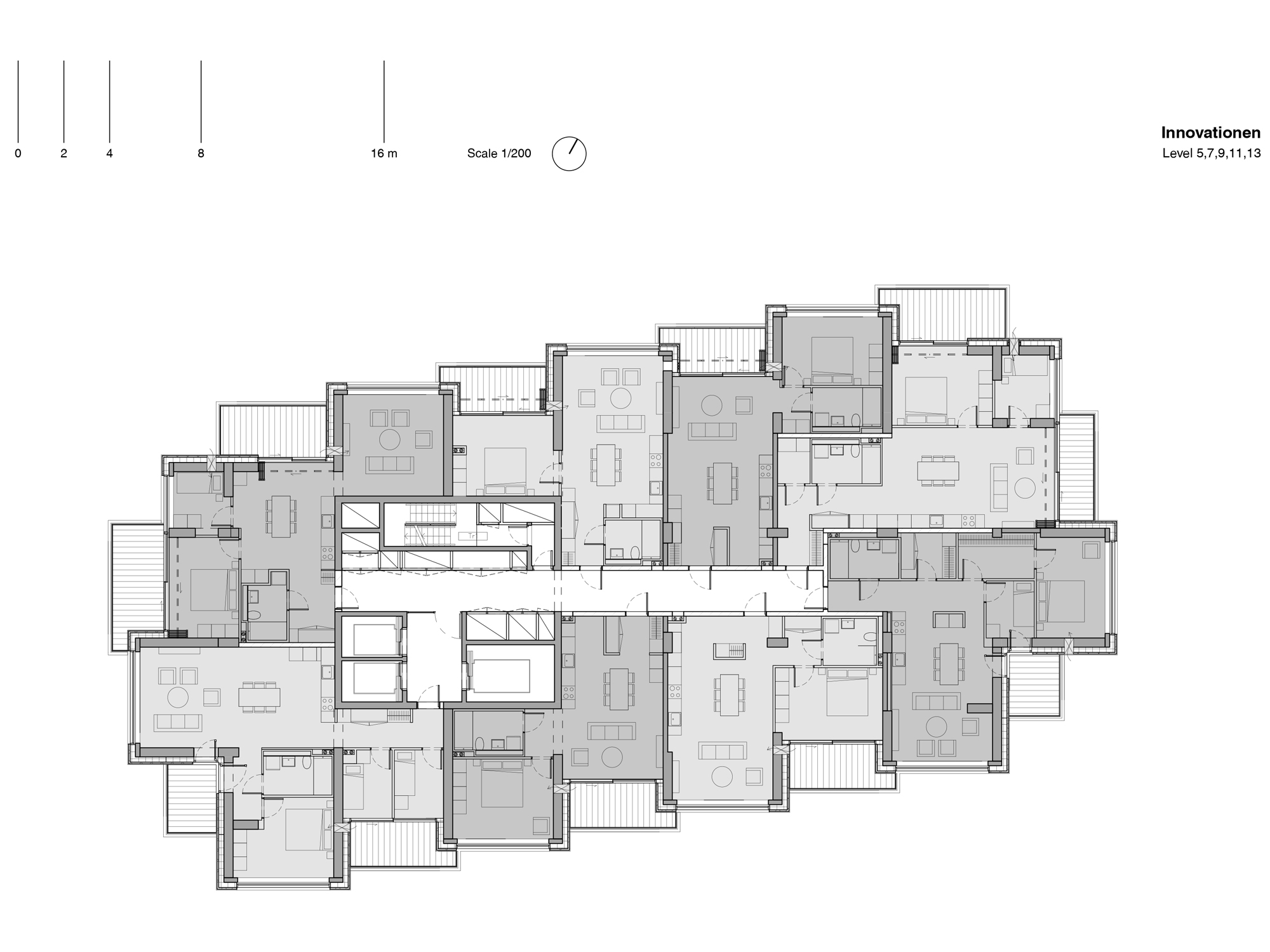
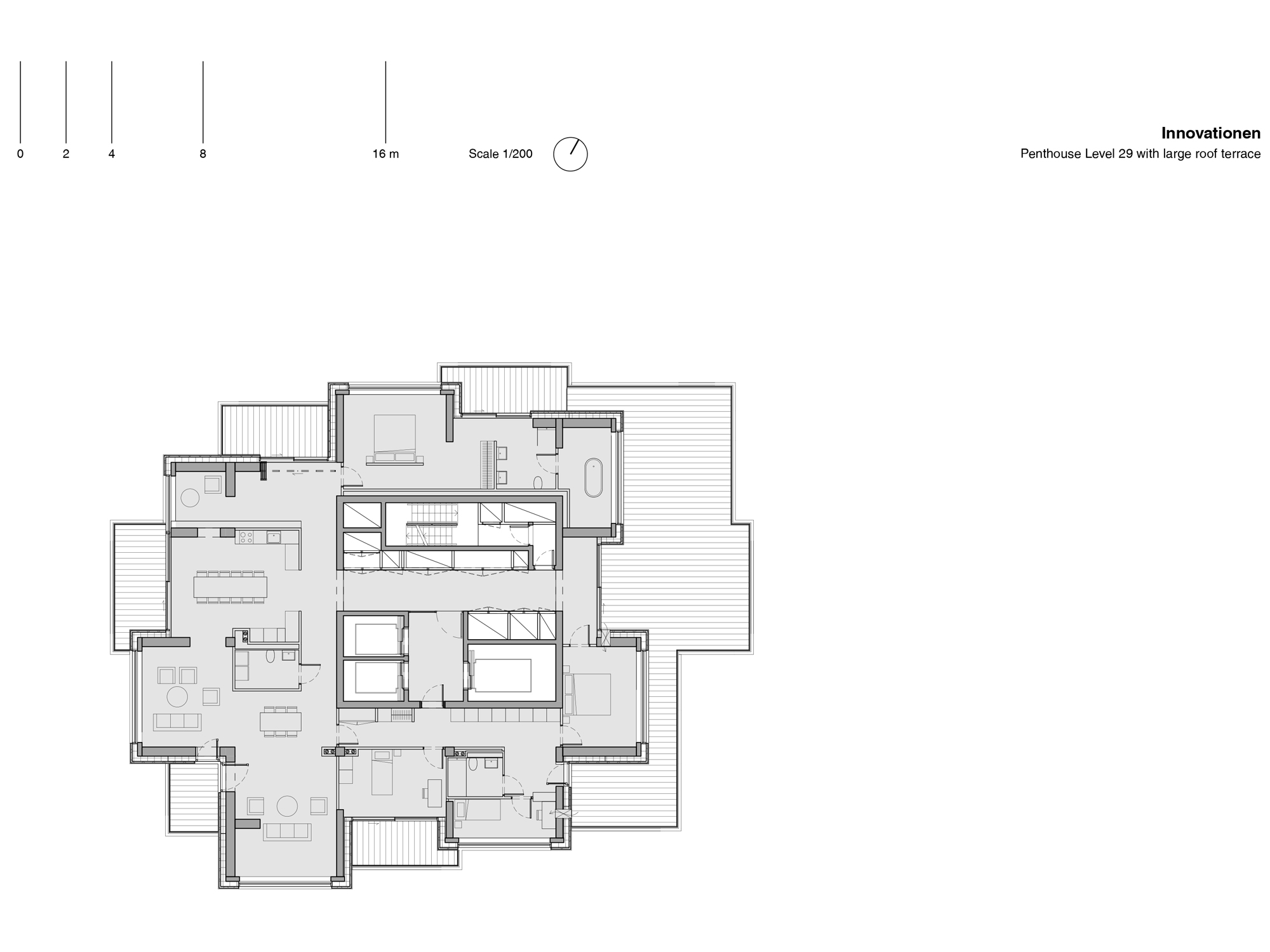
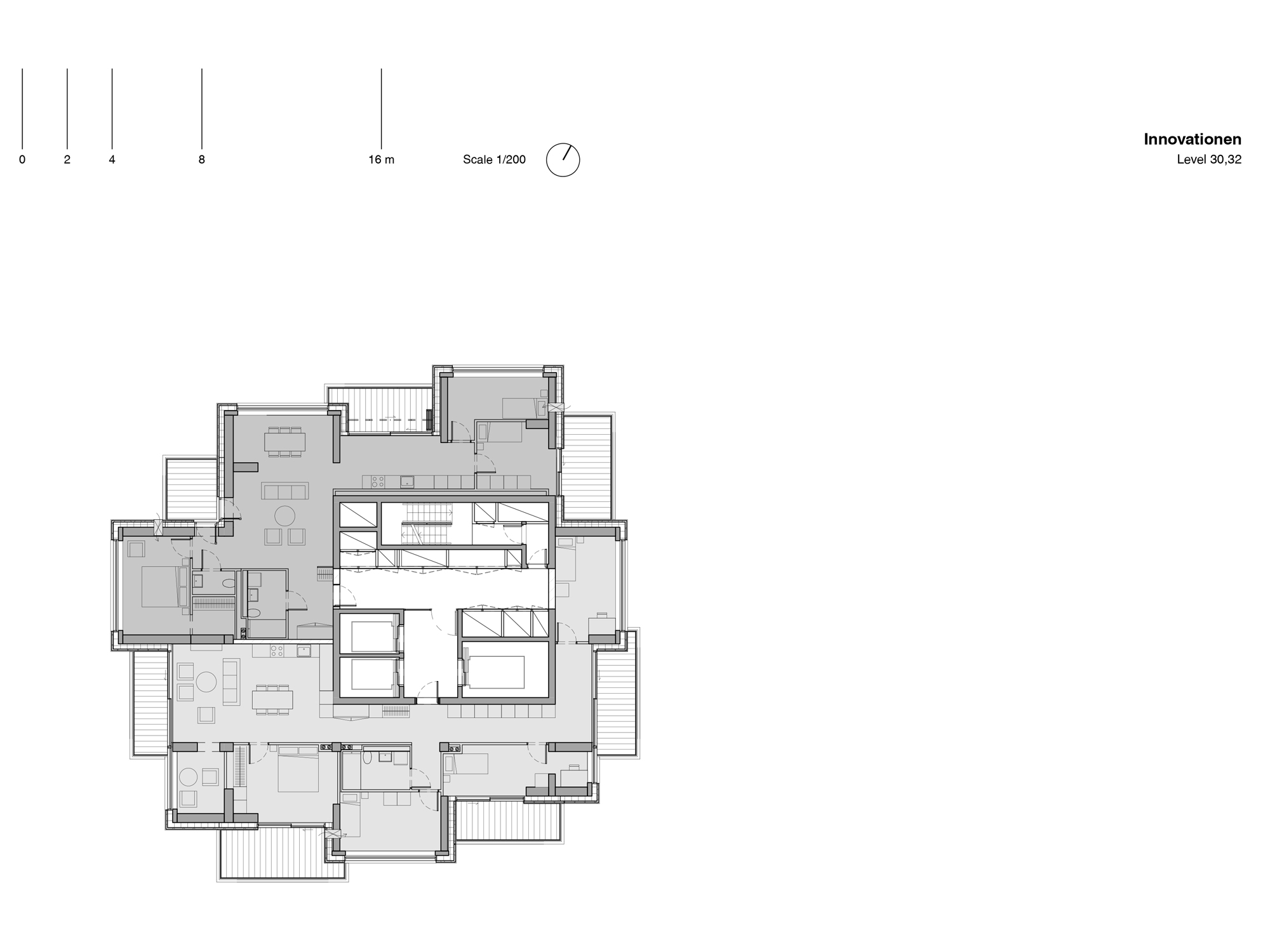
Die versetzte Anordnung der Erker schafft aber auch wind- und lärmgeschützte Loggien vor beinahe jedem Zimmer. Textur und Farbigkeit der vertikal geriffelten Betonfertigteile knüpfen an die Ziegelarchitektur Stockholms an, ohne sie direkt zu zitieren. Die haptischen Oberflächen sind durch die Vor- und Rücksprünge auch in den Wohnungen präsent und verleihen ihnen eine warme, hochwertige Ausstrahlung. Mit 125 m Höhe ist es das höchste Wohngebäude der schwedischen Hauptstadt und beherbergt auf 36 Wohngeschossen 182 Einheiten.
»Unsere Aufgabe lag darin ein Wohnhochhaus an einem Ort zu bauen, wo das eigentlich gar nicht möglich ist«. Erläutert de Graaf, Partner seine Entwurfsstrategie. »Die Grundstücke für die zwei Türme liegen unmittelbar an einer mehrspurigen lärmintensiven Stadtautobahn und sind äußerst beengt, was sinnvolle Wohngrundrisse um einen zentralen Erschließungskern herum fast unmöglich macht. Die unteren Geschosse haben kaum Abstand zu den Nachbargebäuden. Dazu kam, dass wir von einem Vorgängerprojekt, das als Bürohochhaus bereits genehmigt war, die Kubatur geerbt hatten. Die Proportionen waren alles andere als elegant, es waren weder schlanke Punkthäuser, noch gut proportionierte Hochhausscheiben.«
Eine umfassende Umplanung hätte jedoch eine neue Genehmigung erfordert und den Investor Oscar Properties viel Zeit und Geld gekostet. Als erste Reaktion auf diese einschränkenden Rahmenbedingungen bauten die Architekten spontan ein Arbeitsmodell, bei dem ineinander verschachtelte Kuben die eigentlichen Proportionen überspielen. Dieses Prinzip haben sie dann auch beinahe unverändert auch realisiert. Das Konzept dieser Voxel, das Reinier de Graaf bereits in Rotterdam eingesetzt hatte, um die große Baumasse des Timmerhuis in großzügige Büros und kleinteilige Wohneinheiten zu gliedern, schafft erhebliche gestalterische und funktionale Freiräume. Auskragungen, Rücksprünge, Dachterrassen und kleine Loggien werden möglich – nicht als additive Architekturelemente, sondern als immanentes Ergebnis des Gestaltungsprinzips.
»Für uns war es wichtig, dass unsere Türme nicht wie die ringsumverglasten Bürohochhäuser aussehen, sondern wirklich wie Wohnungen. Gleichzeitig wollten wir aber viel Tageslicht in den Räumen und großzügige Blicke über die Stadt schaffen«. Das Resultat ist verblüffend. Riesige geschosshohe Festverglasungen öffnen ganze Raumwände zur Stadt. Als Sonnenschutz reicht in so nördlich gelegenen Regionen wie Stockholm anscheinend eine spezielle Beschichtung des Glases aus. Für de Graaf wirken die maßstabslosen Glasflächen wie überdimensionale Benutzeroberfläche von Smartphones. »Bei bestimmten Lichtverhältnissen verändert sich die Fassade komplett, dann erscheint das Glas stahlend blau, wie bei Rayban-Sonnenbrillen«.
Wichtig war den Architekten die natürliche Belüftung der Apartments. Deshalb sind Lüftungsöffnungen als Lochfenster in die Betonfertigteile integiert, dern Flügel manuell bedient werden. Da sie zur wind- und schallgeschützten Loggia orientiert sind, können sie auch in den oberen Geschossen ohne Zugerscheinungen offen stehen.
Die Grundrisse sind in ihrer Fläche äußerst optimiert, ohne Flure und Erschließungsräume in den Wohnungen. Dafür ist der Ausbaustandard überraschend hoch. »Unser Konzept war mit möglichst wenigen Bausteinen eine möglichst hohe Vielfalt zu erreichen. Das ist nur mit Fertigteilen möglich. Dadurch sparen wir Zeit, Geld und gewinnen an Qualität, deshalb konnten wir uns die teure Verglasung und hochwertige Ausführung leisten«. Der Einsatz der Beton-Sandwich-Elemente hat den Vorteil, dass keine zusätzliche Fassadenbekleidung erforderlich ist. Die raue Textur der Betonrillen nimmt Bezug auf den überall in Stockholm präsenten Backstein, ohne ihn zu wörtlich zu zitieren. Die Detaillierungstiefe ist für ein so großes Bauwerk verblüffend: Sämtliche Leuchten, Lüftungsöffnungen oder Entwässerungen sind minutiös geplant und gestalterisch in die Rillenstruktur integriert. Die kompromisslose Umsetzung des radikalen Konzepts bis zur dieser außergewöhnlichen Detailtiefe war nur möglich, weil die ausführende Baufirma zum Unternehmen des Investors gehört.
Und Natürlich spielt bei aller Funktionalität auch die Ästhetik eine Rolle. »Historische Monumente werden von jedem geliebt, nur mit der Architektur der Moderne und unserer Generation hat die Gesellschaft ein Problem: Heutzutage gilt als wichtigstes Kriterium für ein Gebäude, dass es unsichtbar ist. Wir wollten diesem neuen Stadttor eine unverwechselbare Identität geben. Natürlich möchten wir, dass jeder da hinschaut«.
































