Homey Brutalism
Foto: Laurian Ghinitoiu, Courtesy of OMA
The international wave of high-price apartment towers has now reached Stockholm. In November of last year, the first of the two Norra Tornen high-rises was inaugurated: from 2020, the two towers will add a larger-than-life gate to the urban landscape north of the centre. Reinier de Graaf, the responsible partner from OMA, created the repetitive, stacked cells as a nod to the Modern. With a certain irony, he describes the design as a "prefab for the rich."
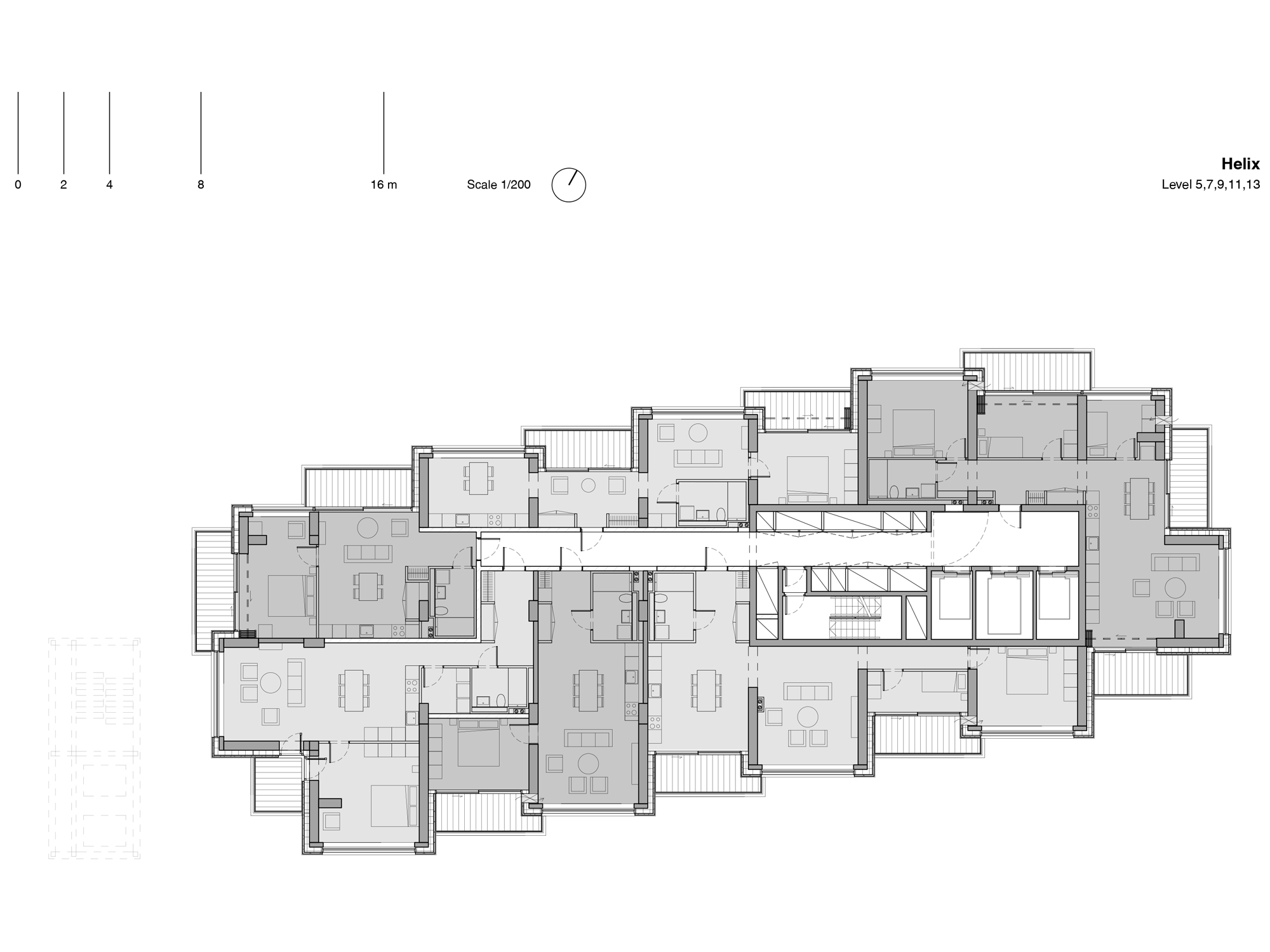
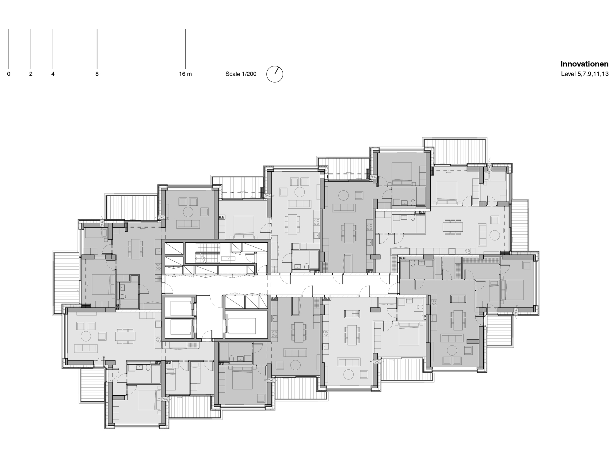
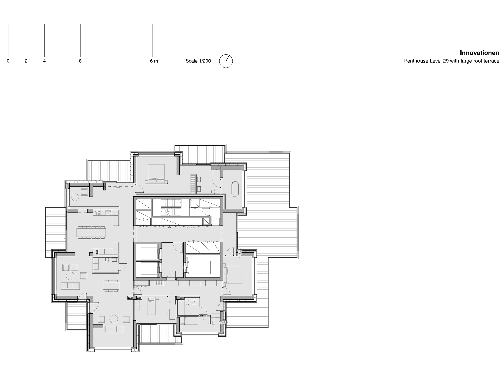
However, the offset arrangement of the bays also creates loggias for almost all the rooms; these are sheltered from both wind and noise. The texture and colour of the vertically ribbed prefab concrete elements refer to Stockhom’s brickwork architecture without directly quoting it. The tactile surfaces appear in the apartments as well thanks to their projections and recesses, giving the living spaces a warm, high-quality character. At 125 m high, it is the tallest apartment building in the Swedisch capital; it features 182 units over 36 apartment storeys.
"Our task consisted in erecting an apartment building where that is not actually possible," partner de Graaf explains his design strategy. "The parcels of land for the two towers are located directly by a multilane, noisy freeway and are extremely cramped, which makes sensible apartment floor plans arranged around a central access core virtually impossible. On the lower floors, there is hardly any distance to the neighbouring buildings. On top of that, we had inherited the cubature from a previous project that had already been approved as an office tower. The proportions were anything but elegant: they were neither slender tower buildings nor well-proportioned high-rise slabs."
Extensive replanning would have required new approval and cost the investor, Oscar Properties, a great deal of time and money. As a first response to these limiting framework conditions, the architects spontaneously created a model in which the nested cubes conceal the actual proportions. This principle was then realized, nearly without any change to the plan. This voxel concept, already used by Reinier de Graaf in Rotterdam in order to divide the large building mass of the Timmerhuis into spacious offices and smaller-scale living units, creates significant space in terms of both design and function. Protrusions, recesses, rooftop terraces and small loggias become possible - not as additive architectural elements, but rather as the immanent result of the design principle.
"It was important to us that our towers not look like entirely glazed office buildings, but really like apartments. But at the same time, we wanted to let a lot of daylight into the spaces and have extensive views of the city.« The result is astounding. Huge, ceiling-high fixed windows open entire walls to the city. In northern regions such as Stockholm, a special coating for the glass suffices as sun protection. For de Graaf, the overdimensional glass surfaces look like larger-than-life user interfaces on smartphones. »In certain lighting conditions, the façade changes completely. Then the glass looks steely blue, like a pair of Ray-Ban sunglasses."
Natural ventilation of the apartments was important to the architects. This is why vents with manually operated flaps have been integrated as portholes into the prefab concrete elements. Since they face the loggias and are thus sheltered from the wind and noise, they can even be used on the top floors without exposing the rooms to drafts.
The floor plans have been optimized for area; the apartments have no corridors or access spaces. Nonetheless, the fittings are of surprisingly good quality. "Our concept was to achive the greatest degree of diversity with the fewest possible components. That is possible only with prefab elements. Thanks to them, we have saved money and time, and gained quality, so we were able to afford the expensive glazing and high-end construction." The use of concrete sandwich elements carries the advantage that no additional façade covering is needed. The rough texture of the concrete ribbing echoes the brick that is ubiquitous in Stockholm, without quoting it verbatim. The degree of detail is amazing for such a large structure: all the lamps, air vents and drainage have been meticulously planned and architecturally integrated into the ribbed texture. The uncompromising implementation of the radical concept, down to this unusual degree of detail, was possible only because the construction company belongs to the investor’s enterprise.
Even with all this functionality, aesthetics naturally play a role as well. "Everyone loves historical monuments, but society has a problem with modern architecture and our generation: nowadays, the most important criterion for a building is that it should be invisible. We wanted to give this new city gate an unmistakable identity. Of course we want everyone to look at it."
































