110 Räume: Wohnblock von MAIO in Barcelona
Foto: José Hevia
Die traditionellen Strukturen der Wohnblocks aus dem 19. Jahrhundert gaben für die Architekten MAIO den Impuls für das Projekt 110 Habitaciones. Hinter der für Barcelona typischen, von vertikalen Fensteröffnungen, Holzfensterläden und kleinen Balkonen geprägten Kalkputzfassade versteckt sich ein zukunftsweisendes Konzept. Dieses basiert auf fast gleich großen Räumen, die sich je nach Bedarf zu flexiblen Wohneinheiten zusammenfügen lassen.
Über das hohe Eingangsniveau gelangt man zunächst in das erschließende Entreé, das klassisch als Fortführung der Straße gedacht ist. MAIO Architects interpretieren die Halle zeitgemäß und strukturieren sie mittels enormer, skulpturaler Marmorvolumen in unterschiedlichen Farben und Formen. Nach oben hin in manchen Bereichen offen, befindet sich im vorderen Teil der erschließende Kern, dahinter liegen zwei Maisonettewohnungen.
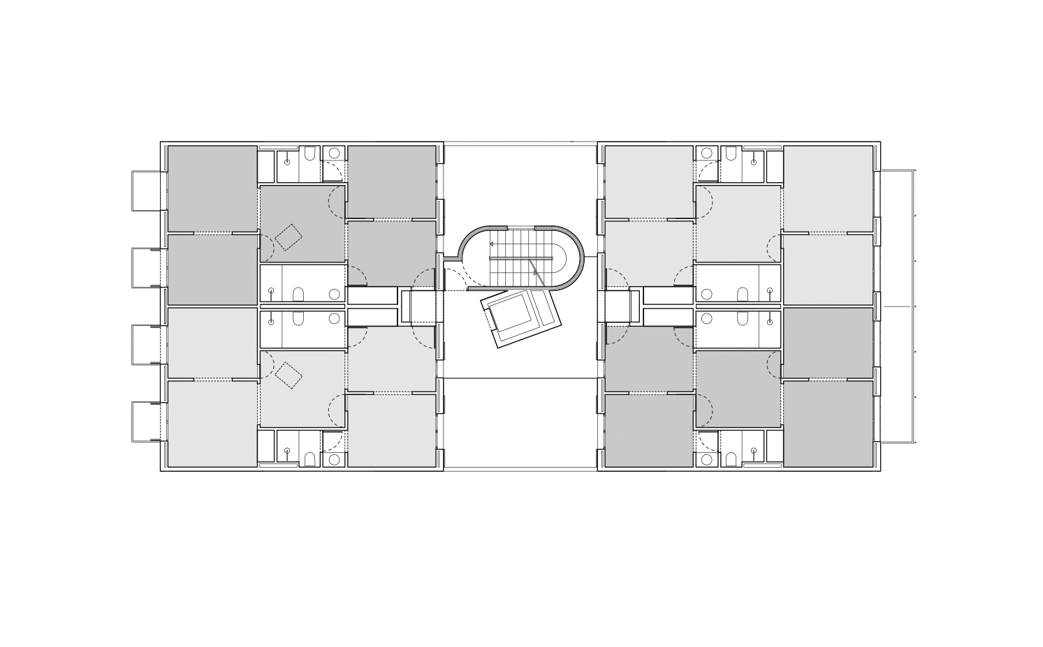
Die fünf Obergeschosse haben einen identischen Grundriss. Eine zentrale Erschließungszone teilt den Wohnblock vertikal, wodurch sich jeweils eine straßen- und eine hofseitig ausgerichtete Hälfte ergeben. Jedes Stockwerk gliedern die Architekten vorerst in vier gleiche Apartments zu je fünf Zimmern.
Durch ihre flexible Grundstruktur lassen sich die Wohneinheiten von 100 Habitaciones problemlos an veränderte Rahmenbedingungen anpassen: Die annähernd gleichen Räume werden von der mittig positionierten Küche aus erschlossen und sind untereinander verbunden. Um eine spätere Anpassung der einzelnen Apartments zu ermöglichen, befinden sich die Bäder seitlich. Sämtliche Räume erscheinen dank warmer Holzböden und Laibungen in Kombination mit weißen Oberflächen hell und freundlich und runden den Wohnkomplex stimmig ab.















