110 Rooms: Apartment Block by MAIO in Barcelona
Foto: José Hevia
The traditional structures of 19th-century apartment buildings gave the architects from MAIO the impulse for the 110 Habitaciones project. The whitewashed façade so typical for Barcelona of vertical window openings, wooden shutters and small balconies conceals a future-oriented concept based on rooms of nearly equal size that can be joined as needed to create flexible living units.
From the high entrance level, visitors first step into the access foyer, which was planned as a classic continuation of the street space. MAIO Architects have given this hall a contemporary interpretation and structured it with enormous, sculptural marble volumes in diverse colours and shapes. Open at the top in some areas, the front portion of the hall houses the access core, while two maisonette apartments are located to the rear.
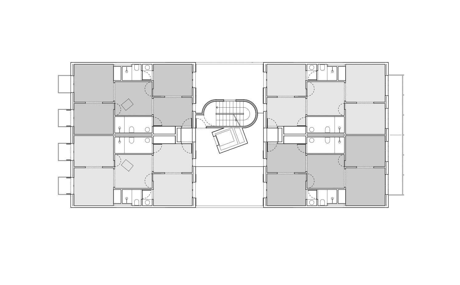
The five upper levels all have the same floor plan. A central access zone divides the apartment block vertically, creating a streetside and courtyard-side half respectively. The architects have divided each storey into four equal apartments, each with five rooms.
The flexible basic structure of the living units at 110 Habitaciones means that the apartments can easily be adapted to different framework conditions: the nearly equal rooms are accessed by the kitchen, which is positioned centrally, and are all joined together. In order to allow future changes to individual apartments, the bathrooms are located to the sides. Thanks to warm wooden flooring and window casings combined with white surfaces, all the spaces appear bright and welcoming even as they harmoniously round out the design of the complex.















