Sozial wohnen in Katalonien
47 Apartments von Dataae + Narch + Maira Arquitectes
47 Apartments in Barcelona, © Adrià Goula
Holzbauten für Sozialwohnungen sind in Europa eher selten. Umso erstaunlicher, dass sie im steinernen Barcelona entstehen. Die Stadt macht immer öfter mit innovativem sozialem Wohnungsbau auf sich aufmerksam.


Zwischen den einzelnen Einheiten liegen Loggien. © Adrià Goula
Umgesiedelt
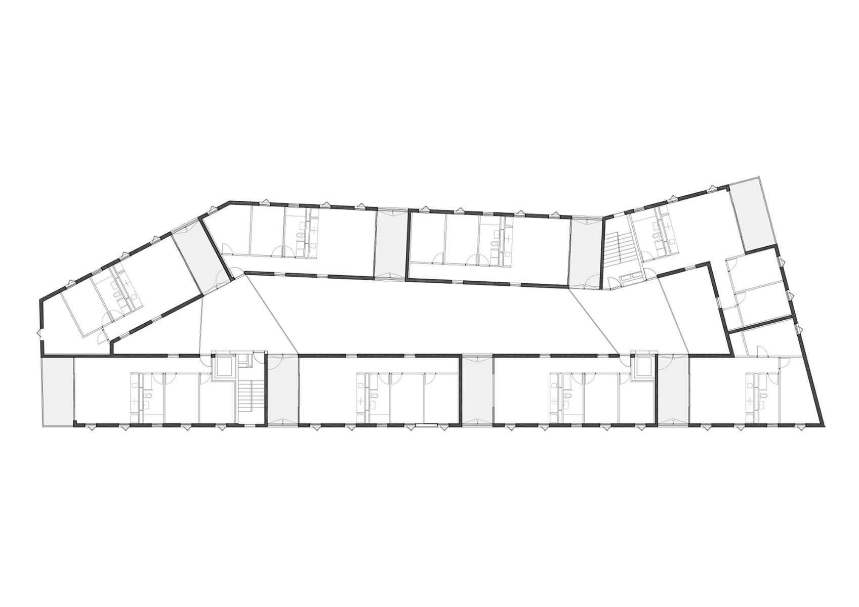
Nicht nur die Materialwahl ist bei diesem Projekt besonders. Auch die Grundrisskonzeption eröffnet neue Möglichkeiten: Zwischen den einzelnen Einheiten liegen Loggien, die von der Fassade bis zum überdachten Atrium durchgesteckt sind. Sie dienen gleich mehreren Funktionen, sind Klimapuffer, Freifläche oder erweiterter Wohnraum.
Torre Baró am Stadtrand von Barcelona ist von illegal gebauten Wohnhäusern geprägt, deren Bewohner peu a peu umgesiedelt werden. Die Wohnanlage beruht daher auf kleinen Einheiten, die an aneinandergereihte Einfamilienhäuser erinnern. Das Gebäude würde jedoch auch neue Wege des Zusammenlebens ermöglichen. Denn stünden die Tore der Loggien offen, wäre der 13 m² große Raum zugänglich für die Nachbarschaft und würde die Gemeinschaft fördern. Im Moment schotten sich die Bewohner jedoch eher ab.


Die Loggien dienen als Klimapuffer, Spielfläche oder Wohnraum. © Adrià Goula
Klima-Zwischenzonen
Doch auch klimatisch sind diese Zwischenzonen von großer Bedeutung. In Zeiten der Klimaerwärmung, die Spanien besonders hart trifft, sind hier alternative Konzepte gefragt, die ohne anspruchsvolle Technik auskommen. Durch die erwähnten Zwischenzonen streicht im Sommer der Wind und kühlt das Gebäude, im Winter wird die Fassade mit Glasscheiben geschlossen und die Terrasse wird zum Wintergarten und Klimapuffer. Der Wärmeeintrag der tief stehenden Sonne ist im Winter so groß, dass der angrenzende Wohnraum ohne Heizung auskommt.


© Adrià Goula


© Adrià Goula
Funktionale Grundrisse
Die Grundrisse sind funktional. Entlang eines Flurs reihen sich zwei Zimmer mit je 10 m², die als Schlafraum, Kinder- oder Arbeitszimmer genutzt werden können und Privatheit bieten. Das große Wohnzimmer mit Küchenzeile und Esstisch hingegen ist innerhalb der Wohneinheit der Raum für alle. So bildet sich in jeder Wohneinheit ab, was für das gesamte Gebäude gilt: ein Wechselspiel zwischen Gemeinschaft und Rückzug.
Mehr dazu in Detail 6.2024 und in unserer Datenbank Detail Inspiration.
Architektur: DATAAE + NArch + Maira Arquitectes
Bauherr: IMHAB
Standort: carrer Escolapi Cancer, 10. Torre Baró, Barcelona (ES)
Baukosten: 5 170 556,89 €
Nutzungsfläche: 5617,73m²
Fertigstellung: 2022












