1980er-Jahre-Bau aufgestockt
AB House bei Alkmaar von Space Encounters
Das AB House ist ein Wohnhaus aus den 1980er-Jahren. © Lorenzo Zandri
In der Polderlandschaft nördlich von Amsterdam haben Space Encounters ein Wohnhaus aus den 1980er-Jahren aufgestockt und mit einem überdimensionierten und doch vertraut anmutenden Satteldach versehen.


Über der Loggia des Elternschlafzimmers öffnet sich das Satteldach mit einem riesengroßen Kreisausschnitt gen Himmel. © Lorenzo Zandri
Das AB House weckt Erinnerungen an die Wohnhausarchitektur der 1980er-Jahre mit ihren großen, oft weit auskragenden Satteldächern. Auch das Erdgeschoss mit seinen Lochfenstern und dem weiß gestrichenen Mauerwerk verweist auf die Zeit, als das umliegende Wohngebiet in Broek op Langedijk nördlich von Alkmaar entstand. Bis in die frühen 1970er-Jahre bestand die Gegend hier noch aus unzähligen kleinen Inseln, zwischen denen man sich nur mit dem Boot bewegen konnte. Und bis heute durchziehen zahllose Kanäle die flache, zersiedelte Landschaft.
Das Obergeschoss des Hauses ist dagegen unverkennbar neu mit seiner Streckmetallverkleidung an den Giebelfassaden und dem Aluminium-Wellblechdach. Über der Loggia des Elternschlafzimmers öffnet es sich mit einem riesengroßen Kreisausschnitt gen Himmel.


Die zahlreichen Vor- und Rücksprünge im Erdgeschoss sind geblieben. © Lorenzo Zandri
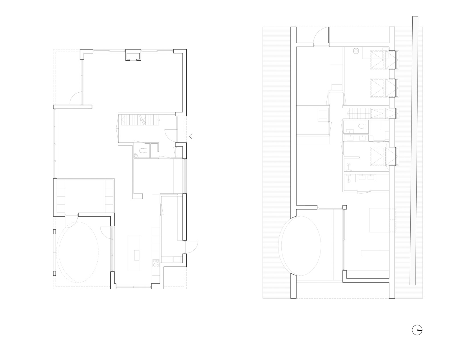
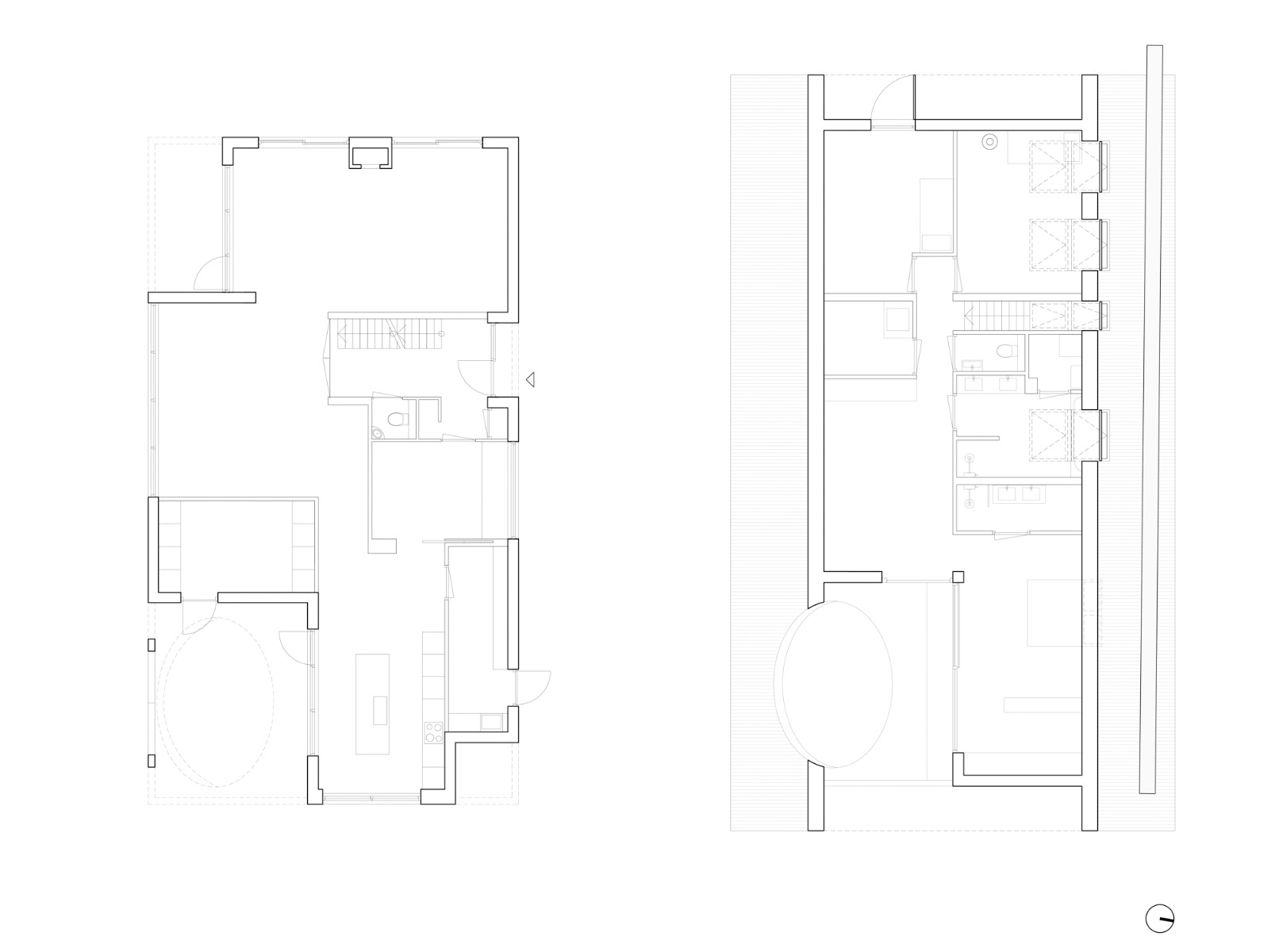
Die zergliederte Grundrissform des Erdgeschosses mit den zahlreichen Vor- und Rücksprüngen und kleinen Außenterrassen haben die Architekten beibehalten. Das Obergeschoss ist demgegenüber deutlich geschlossener, mit Ausnahme der eben erwähnten Loggia. Ein expressives schwarzes Stahlskelett trennt die beiden Geschosse voneinander und trägt zugleich das Dach. Auf dessen Nordseite ersetzt ein aufgelegter Stahlträger die sonst übliche Dachtraufe.


Küche mit Blick in den Garten, © Lorenzo Zandri


Kinderzimmer im Obergeschoss, © Lorenzo Zandri
Auch im Gebäudeinneren unterscheiden sich die Geschosse deutlich: hier das offene, in Weiß getauchte Erdgeschoss mit seinen offenen Räumen und vielen Durchblicken, dort das deutlich kleinteilig gegliederte Obergeschoss, dem Holzverkleidungen eine warme Atmosphäre verleihen.
Mehr dazu in Detail 5.2024 und in unserer Datenbank Detail Inspiration.
Architektur: Space Encounters
Bauherr: privat
Standort: Broek op Langedijk (NL)
Tragwerksplanung: De Ingenieursgroep
TGA-Planung: Nelissen Ingenieursbureau
Bauunternehmen: Kien aannemers


















