Upward extension for a 1980s house
AB House near Alkmaar by Space Encounters
The AB House is a residential building from the 1980s. © Lorenzo Zandri
Space Encounters has provided an upward extension to a 1980s house that stands in the polder landscape north of Amsterdam, and gave the building an oversized and yet seemingly familiar pitched roof.


Above the loggia of the master bedroom, the pitched roof opens up to the sky with a huge circular cut-out. © Lorenzo Zandri
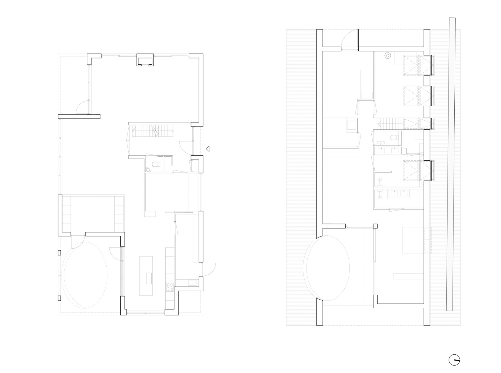
AB House evokes memories of 1980s residential architecture typified by large and often deeply eaved pitched roofs. The building's ground floor with its punch windows and white-painted brickwork also recalls the time when the neighbourhood came about in Broek op Langedijk, north of Alkmaar; until the eighties the surrounding area was still made up of innumerable small islands only reachable by boat, and to this day countless canals cut across the flat, fragmented landscape.
The upper floor of AB House on the other hand is unmistakeably new, as evidenced by its gable facades wrapped in expanded metal mesh and the corrugated aluminium roof, opened to the sky by a circular cut-out above the loggia of the parents' bedroom.


The numerous projections and recesses on the ground floor have been retained. © Lorenzo Zandri
The ground floor's segmented layout was retained by the architects, complete with its numerous projections, recesses and small outdoor terraces; the upper floor in contrast has a much more closed facade with the exception of the above-mentioned loggia. An expressive black steel structure divides the two storeys and bears the roof; on the north side an abutting steel beam replaces the otherwise usual eaves.


Kitchen with a view of the garden, © Lorenzo Zandri


Children's room on the upper floor, © Lorenzo Zandri
The storeys also differ considerably inside the house: while the open ground floor bathed in white is characterised by open-plan rooms and numerous sightlines, the upper storey is somewhat compartmentalized and due to wood panelling has a warm atmosphere.
Read more in Detail 5.2024 and in our databank Detail Inspiration.
Architecture: Space Encounters
Client: private
Location: Broek op Langedijk (NL)
Structural engineering: De Ingenieursgroep
Building services engineering: Nelissen Ingenieursbureau
Contractor: Kien aannemers


















