// Check if the article Layout ?>
Alle guten Dinge sind drei: Schul- und Bürgerzentrum B3 in Heidelberg
Foto: Stephan Baumann
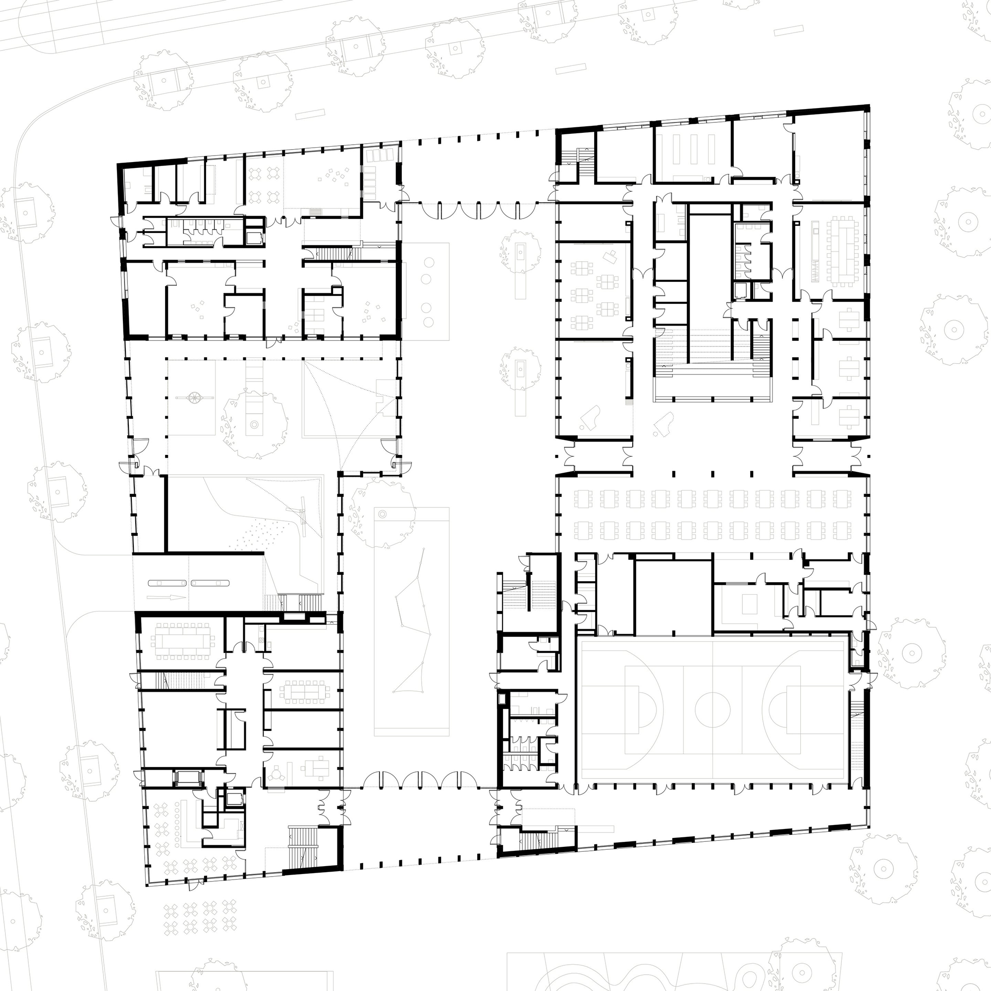
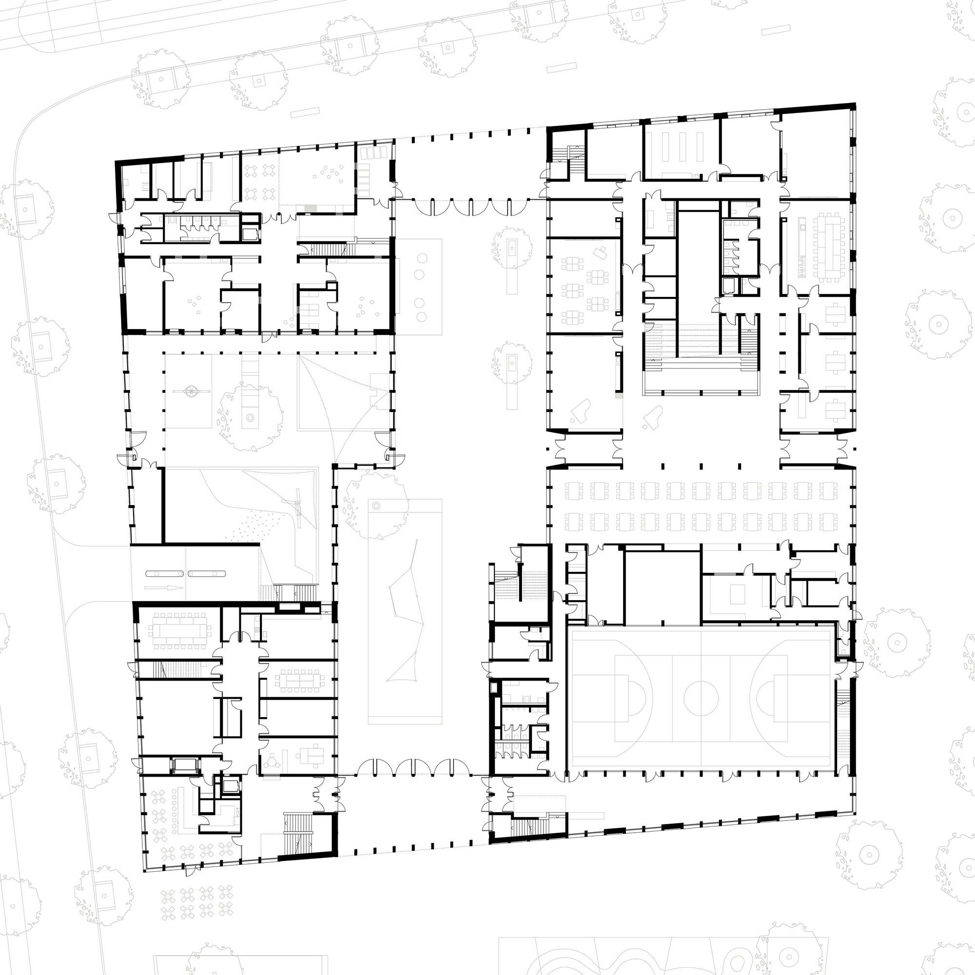
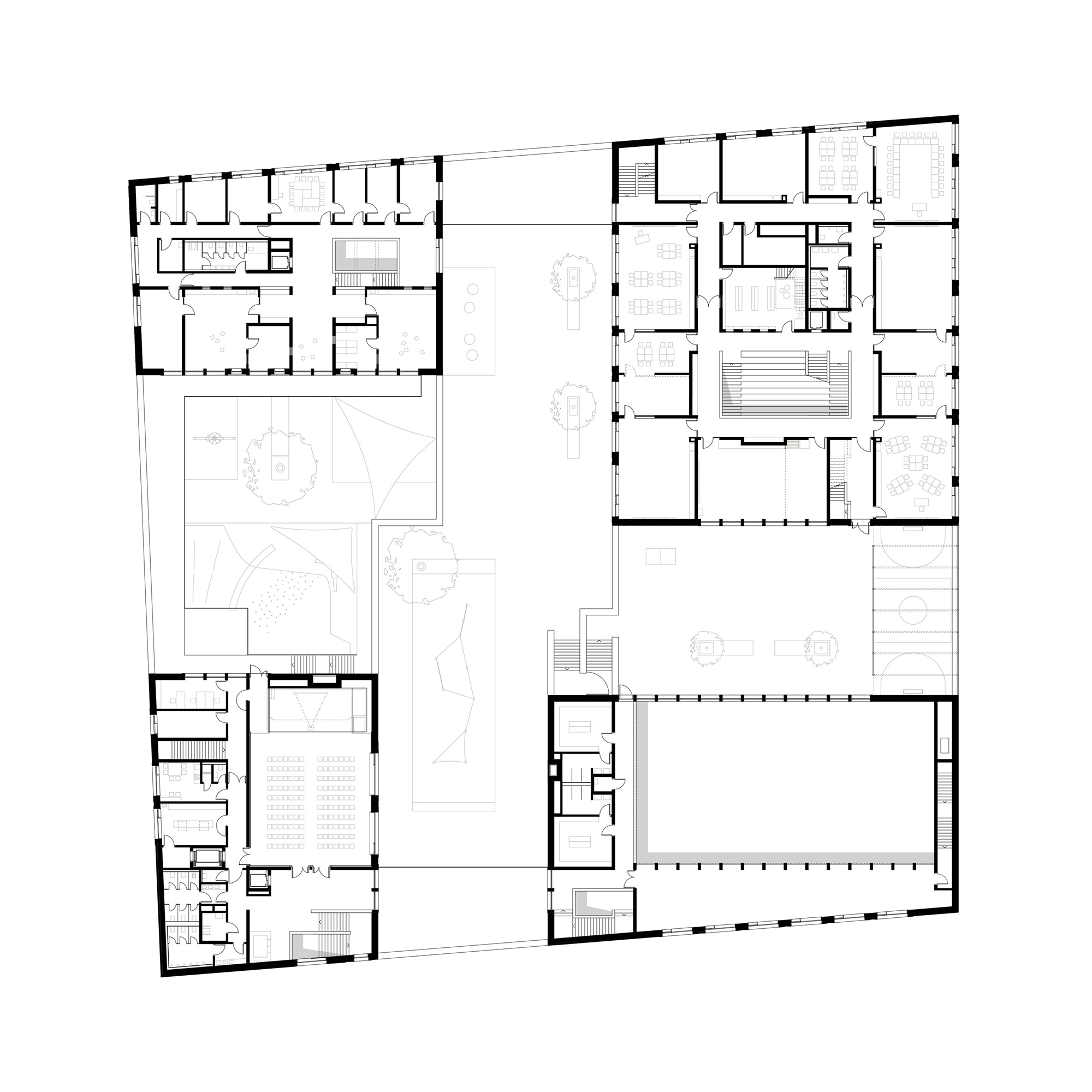
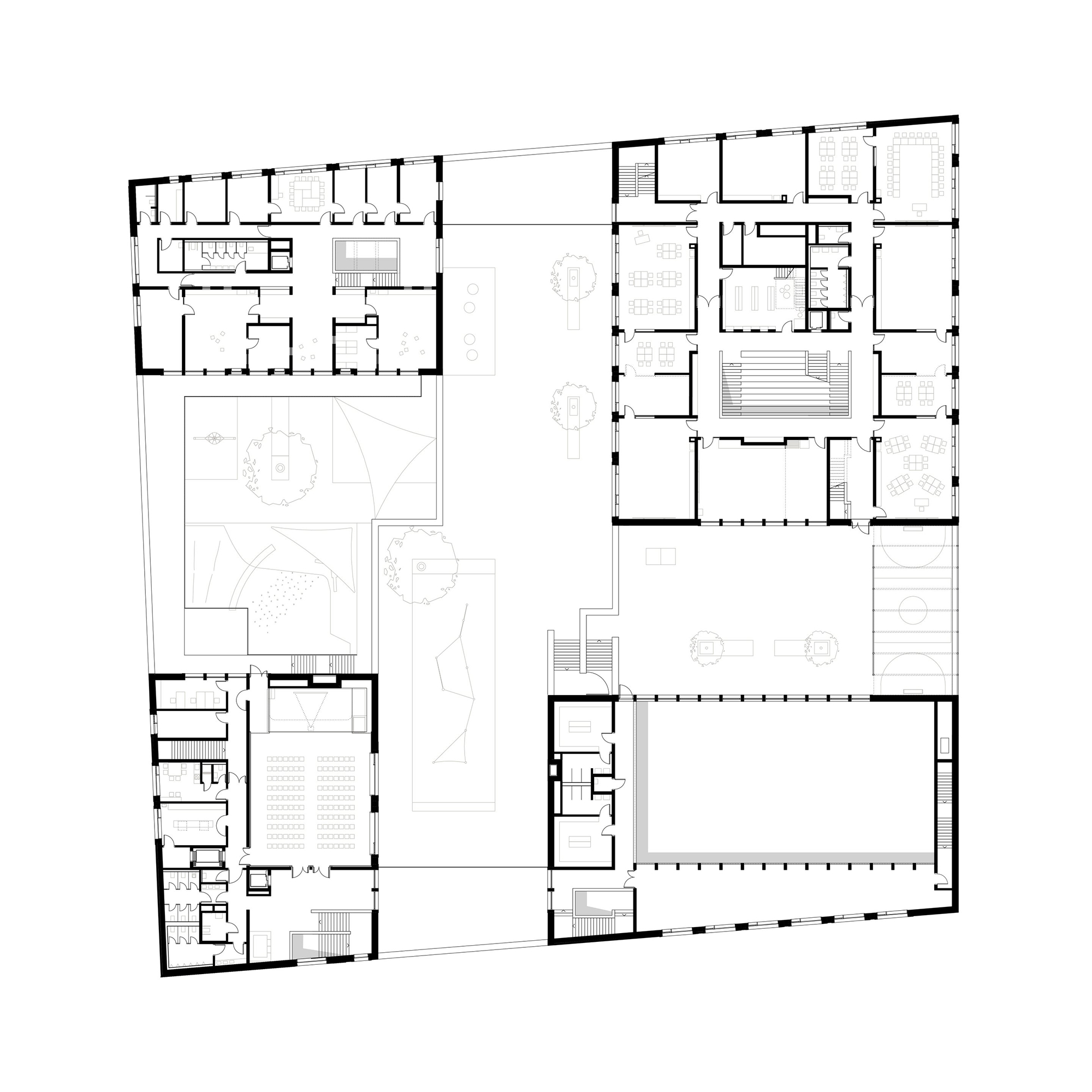
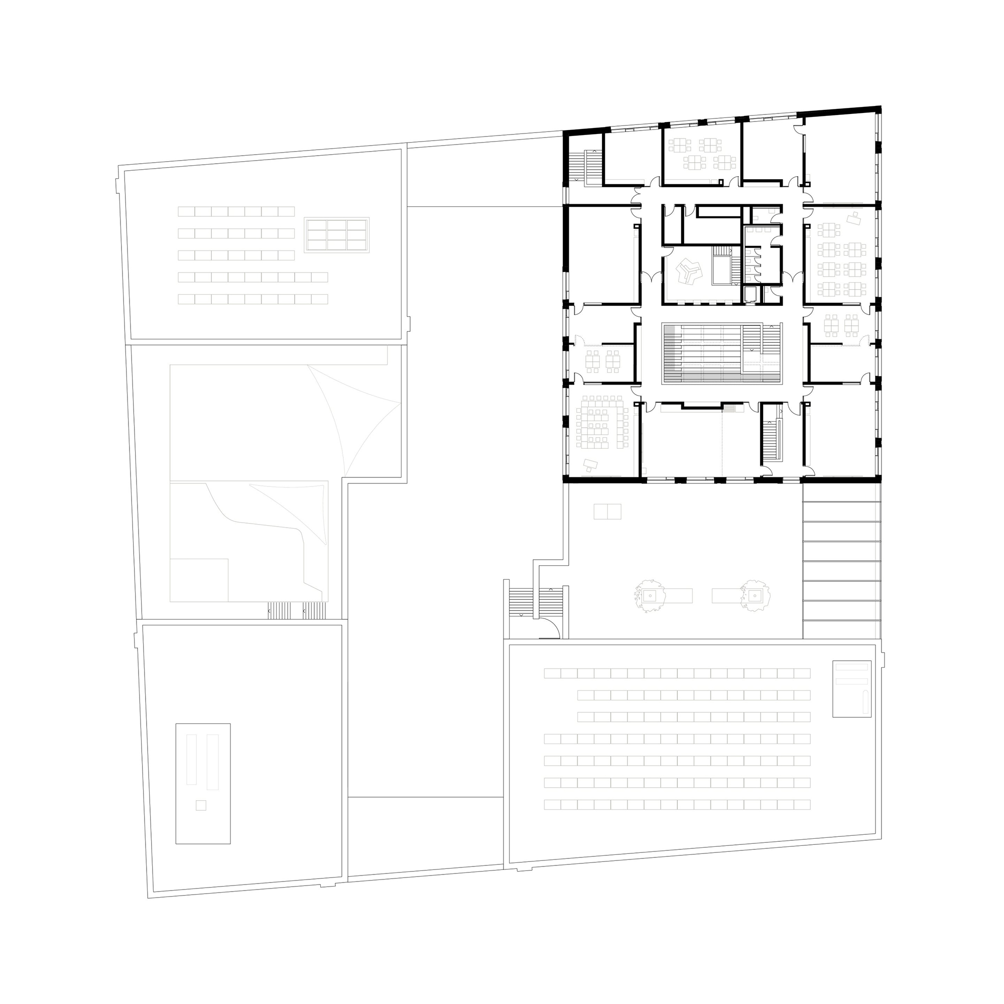
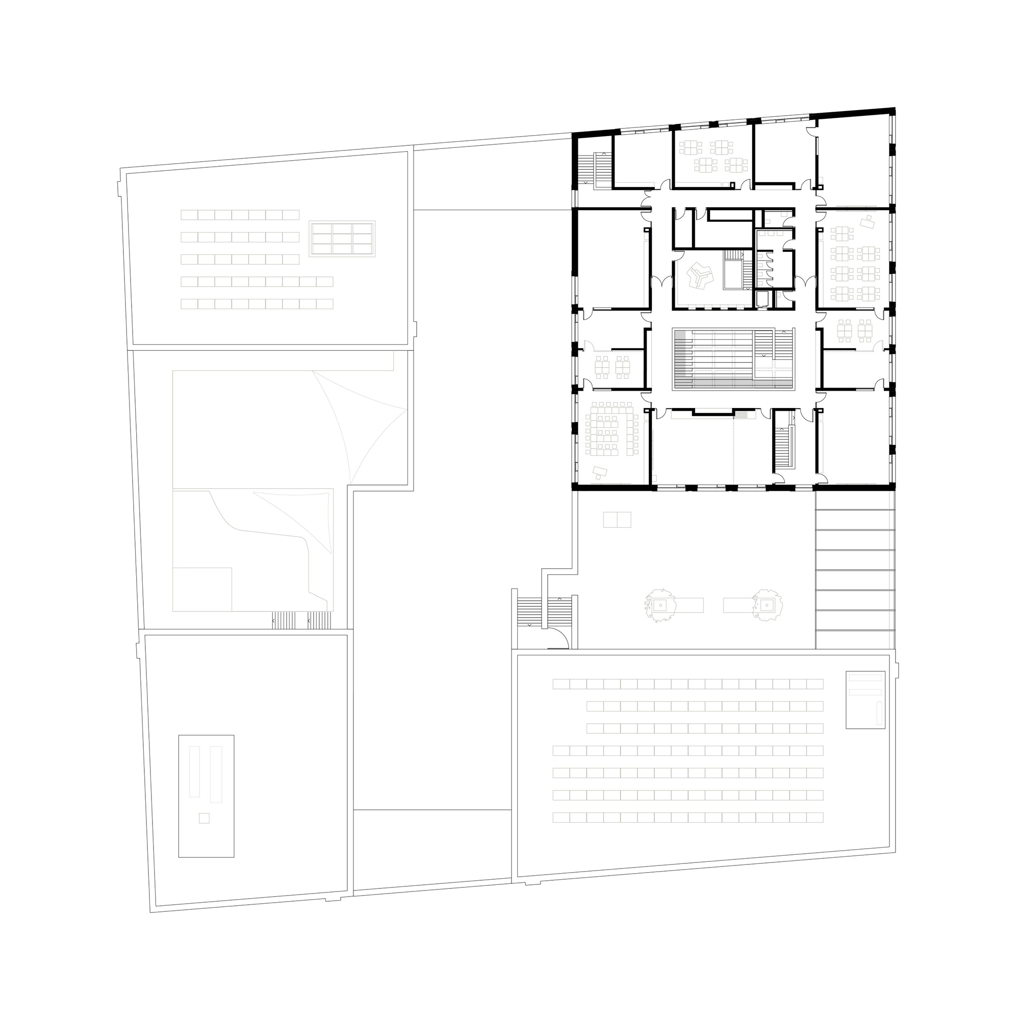
Das Schul- und Bürgerzentrum B3 liegt unweit des Heidelberger Zentrums, in Bahnstadt. Dort befindet sich der Baukörper an der Nordgrenze des Grundstücks und lässt dadurch im südlichen Drittel Platz für gemeinschaftlichen Außenraum. Datscha Architekten konzipieren das Gebäude so, dass es sich sowohl typologisch, als auch in seiner Gestaltung deutlich von seiner Umgebung abhebt. B3 ist mit zwei Geschossen niedrig und tanzt auch hinsichtlich der Baufluchten der Nachbarbauten aus der Reihe. Das Volumen an sich hat einen schrägen Grundriss und setzt sich aus mehreren Teilen zusammen – in seiner Gesamtheit erscheint es, durch teilweise Verbindungen über Zwischenbauten, dennoch als kompakter Kubus mit Einschnitten. Jeweils an den Außenecken positioniert spannt das Ensemble an Baukörpern einen kreuzförmigen, geschützten Innenhof auf. Dieser wird zum lebendigen Außenraum und profitiert von den Dachflächen der einstöckigen Gebäudeteile, die Aussicht auf das umgebende Viertel ermöglichen.
Sämtliche Ansichten sind in rotem Ziegel ausgeführt. Ein leicht gradueller Farbverlauf durchzieht die Fassaden in Streifen und betont die horizontale Ausdehnung des B3. Die Gebäudeöffnungen werden optisch besonders in Szene gesetzt. Sowohl Ein- und Ausgänge als auch die großflächigen Verglasungen fassen helle Sichtbeton-Fertigteile ein. Sie heben sich leicht von der Außenhülle ab und wirken dadurch wie gerahmt.
Die unterschiedlichen Funktionen teilen sich in die einzelnen Trakte des B3 auf. Dabei nimmt die Grundschule die beiden Volumina an der Osthälfte in Anspruch und gliedert sich in Verwaltungs- und Klassenzimmerbereich im Norden und Sporthalle im Süden auf. Ein kleiner Zwischenbau beherbergt die Mensa und schafft gleichzeitig die Verbindung des Lern- und Lehrbereichs. Das Herzstück bildet ein Atrium mit großen Sitzstufen, rund um das sich die Räume anordnen. Die zwei Gebäudeteile an der Westseite mit Kindergarten und Bürgerhaus komplettieren das programmatische Trio.
In der Gestaltung der Innenräume folgen Datscha Architekten in dem gesamten Ensemble einer einheitlichen Linie. Weiße Wände und Akustikdecken sorgen gemeinsam mit den großen Fensterflächen für ein freundliches, lichtdurchflutetes Ambiente. Hellgrauer Sichtbeton und vereinzelte Farbakzente harmonieren mit dem schlicht modernen Design der Einrichtung. Holzoberflächen verleihen Wärme und Geborgenheit und vervollständigen die Materialpalette. Diese finden in Form von Böden und Belag der Sitzstufen in der Schule Verwendung.
Weitere Informationen:
Fotos: Stephan Baumann, www.bild-raum.com
Und heute zur Abwechslung ein Klassiker der Raumillusion: die Sala dei Giganti im Palazzo Te in Mantua, geschaffen...
Gepostet von Detail am Samstag, 14. April 2018
https://www.facebook.com/DETAIL.de/photos/a.10152285340608774.1073741833.353168283773/10156298555228774/?type=3&theater


























