// Check if the article Layout ?>
Altes Holzhaus für junge Familie: Haus Moser im Stubaitai
Foto: Wolfgang Retter
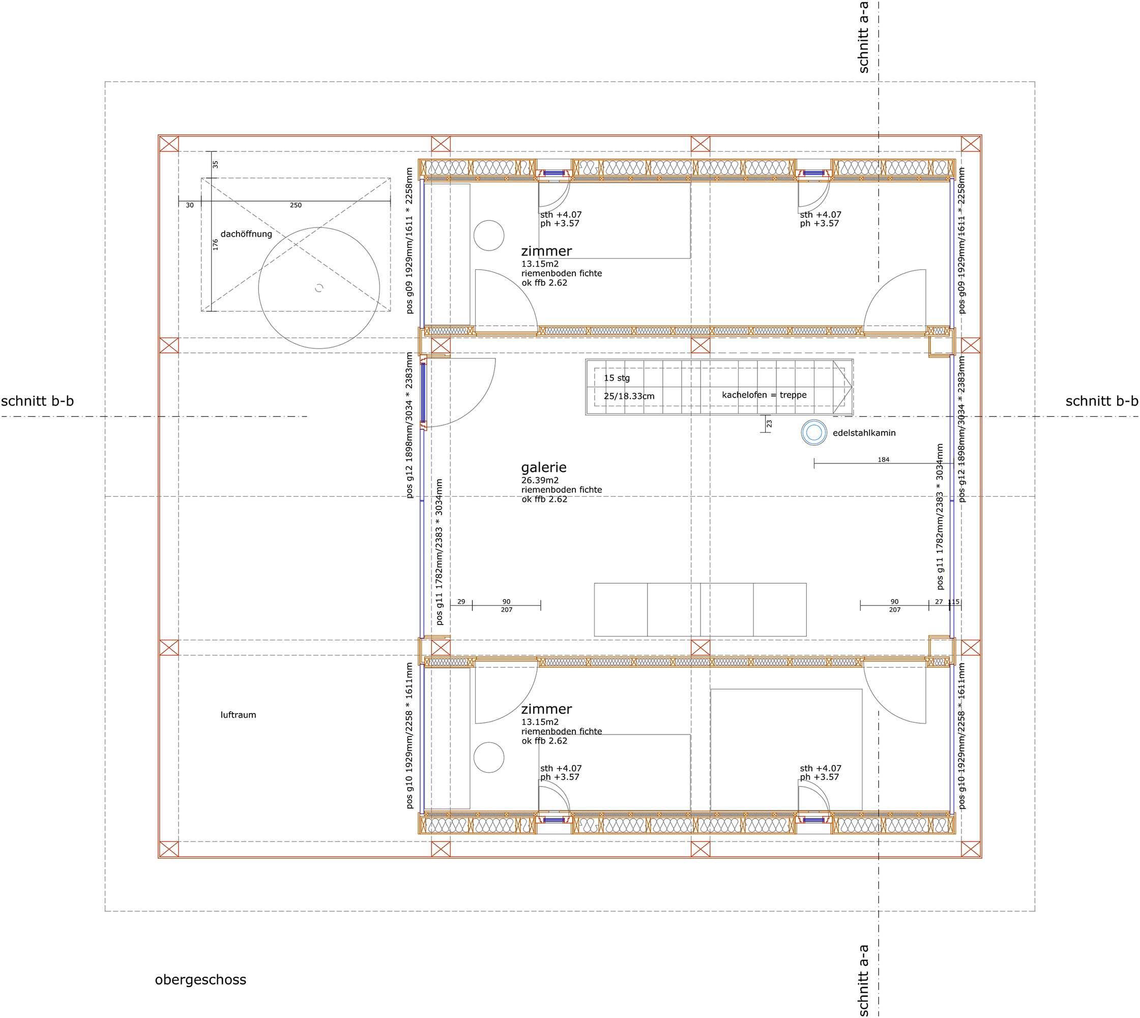
Der Architekt Robert Pfurtscheller baute eine nicht mehr genutzte 150 Jahre alte Holzscheune in ein Einfamilienhaus um. Die (zuerst zum Abriss bestimmte) Scheune wurde in Einzelteile zerlegt und ca. 800 Meter weiter am Baugrundstück wieder aufgebaut. Das Raumprogramm für die neue Nutzung lässt sich allerdings kaum an der alten Fassade ablesen. Von außen betrachtet blieb der Stadel weitgehend unverändert, der Bestand bestimmte das Neue auch in Material- und Formsprache.
Die bestehende Konstruktion aus Fichtenholz wurde auf eine neue Betonfundamentplatte gesetzt. Nur wenige Tragelemente der alten Konstruktion mussten ersetzt werden. Hinzugekommen sind zwei Wandteile, eine Zwischendecke und Dachteile aus Brettsperrholz, wobei die neuen Elemente in die bestehende Struktur mit eingebaut sind. Eine dreifache Festverglasung mit wenigen eingebauten Öffnungen verhindert den Wärmeverlust; geheizt wird das Haus mit einem Kachelofen, der zugleich als Treppe zum Obergeschoss genutzt wird.
Pfurtscheller ging es nicht um eine Musealisierung des Bestehenden. Die Umnutzung bewahrt den Altbau vielmehr vor dem Verfall, schont die Ressourcen und schafft darüber hinaus eine bauliche Verbindung zwischen den traditionellen Bauformen und gegenwärtigen Wohnbedürfnissen.









