Arbeiten unterm Blechblätterdach: Niederländische Lotterie, Amsterdam
Foto: Jannes Linders
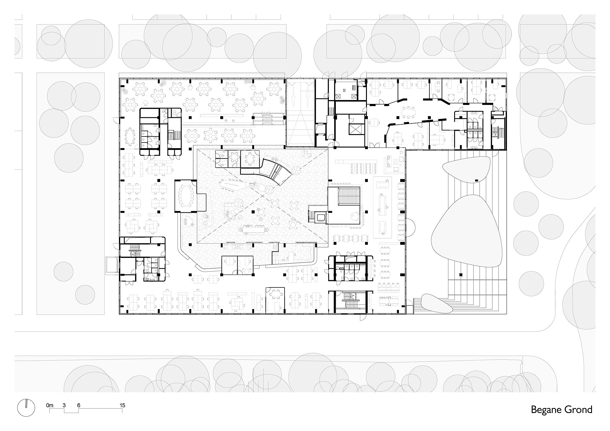
Die »Goede Doelen Loterijen«, zu deutsch »Gute Ziele Lotterie«, ist eine niederländische Wohltätigkeitsinstitution, die ihre 600 über Amsterdam verstreuten Mitarbeiter jetzt an einem Sitz vereinigt hat. Um diesen so nachhaltig und so arbeitnehmerfreundlich wie möglich zu realisieren, führten die mit der Realisation beauftragten Architekten Benthem Crouwel zusammen mit den Interior Designern Mitarbeiterworkshops durch.
So entstand die Idee eines, an eine italienische Piazza erinnernden, mit Glas überdachten Innenhofes im Halbschatten. Darunter hängen insgesamt 6.800 serviettenartig gefaltete Dreieckswinkel aus Aluminiumblech, die das einfallende Sonnenlicht mannigfach brechen und nie dauerhaft auf einen Punkt strahlen lassen. Sechs feinverästelte Baumstützen aus Stahl - drei größere, drei kleinere – tragen die scheibenartige Dachkonstruktion.
Die Nachhaltigkeit war letztlich einer der Hauptgründe, warum man sich für eine Gebäudesanierung und nicht für den Abriss des Bestandes und einen Neubau an gleicher Stelle entschied. Unter anderem wurde das Baumaterial von abgerissenen Gebäudeteilen an anderen Stellen des Umbaus – teils als Verfüllmaterial – wiederverwendet und das ganze Objekt im Energie-Plus-Standard realisiert. Auf dem Dach sind 949 Photovoltaikelemente zur Energiegewinnung installiert, das Regenwasser wird gesammelt und als Brauchwasser oder zur Bewässerung des Dachgartens genutzt.
Das Gebäude hat 92,61% der BREEM-Zertifizierung errungen und damit das ab 85% vergebene Prädikat »Outstanding« erhalten. Derzeit steht der Bau für die nachhaltigste Gebäudesanierung der Niederlande überhaupt.
Weitere Informationen:
Interior Design: D/Dock Design Studio Amsterdam; Yolanda Loudon, Amsterdam/NL
Generalunterunehmer: J.P. van Eesteren B.V., Gouda/NL










