// Check if the article Layout ?>
Arbeitsklima im Fokus: Firmensitz Ibenergi von Taller Abierto
Foto: Montse Zamorano
Der Firmensitz von Ibenergi entsteht im Gewerbegebiet Toledos. Dort liegt das langgezogene Grundstück. Von Nord nach Süd reihen sich hier aneinander: das Hauptgebäude, eine kleine Straße, die den Bauplatz quer durchzieht und intern erschließt, Parkmöglichkeiten und ein kleiner Nebentrakt.
Das rechteckige Gebäude, in dem sich die Firmenzentrale Ibenergis befindet, positioniert sich mit seiner Längsseite parallel zur nördlichen Grundstücksgrenze und wächst über zwei Geschosse in die Höhe. Während die Sockelzone rundum raumhoch verglast ist, präsentieren sich die Ansichten im ersten Stock etwas geschlossener. Eine gerillte Fassade aus eloxierten Aluminiumblechen umhüllt die Außenwände und wird in einer Richtung von Fensterbändern, zur anderen von großflächigen Verglasungen unterbrochen. Den Abschluss bildet am westlichen Rand des Baukörpers ein Dachgeschoss, das ebenfalls in Aluminium gekleidet ist. An einigen Stellen der Hülle gibt es Pergolas aus feinen Metallelementen, die sich vor Fenster und Fassade legen. Sie sind als Rankhilfe gedacht und dienen der späteren Klimaregulierung des Gebäudes. Gemeinsam mit den bepflanzten Freiflächen, auf deren Gestaltung Taller Abierto Architekten besonderes Augenmerk legen, sollen sie mittels natürlicher Verschattung für ein angenehmes Arbeitsklima sorgen und attraktive Ausblicke ins Grüne bieten.
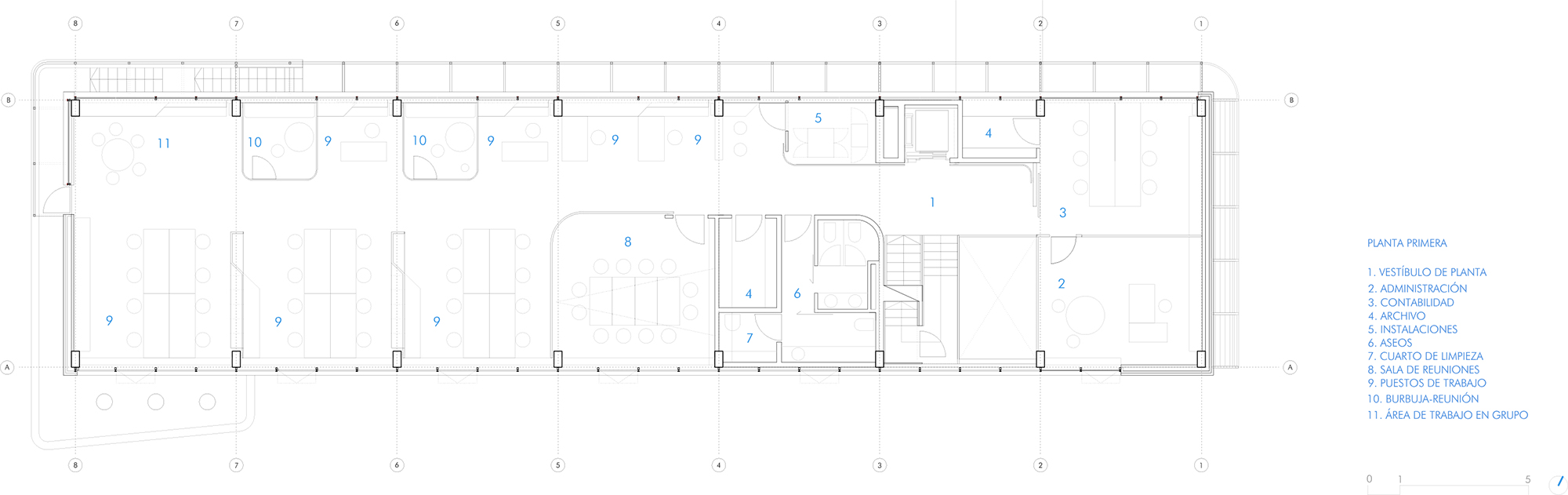
Der Hauptzugang erfolgt aus westlicher Richtung. Neben Lobby, Erschließungskern, Sanitäranlagen, Cafeteria und Erholungsbereich gibt es im Erdgeschoss einen überdachten Außenraum, der den Hauptteil vom Auditorium abtrennt. Darüber befindet sich der offene Arbeitsbereich. Dieser ist mit Open Space-Büros und kleinen abgetrennten Einheiten vielfältig gestaltet. Besprechungsraum und Terrasse im Dachgeschoss komplettieren das Programm.
Sämtliche Oberflächen im Inneren folgen einer einheitlichen Linie. Glatte, graue Böden, weiße Wände und Akustikdecken kleiden die Räume. Sie werden ergänzt von raumhohen Glasabtrennungen und einem schlichten Mobiliar.






















