// Check if the article Layout ?>
Working Atmosphere in Focus: Ibenergi Headquarters by Taller Abierto
Foto: Montse Zamorano
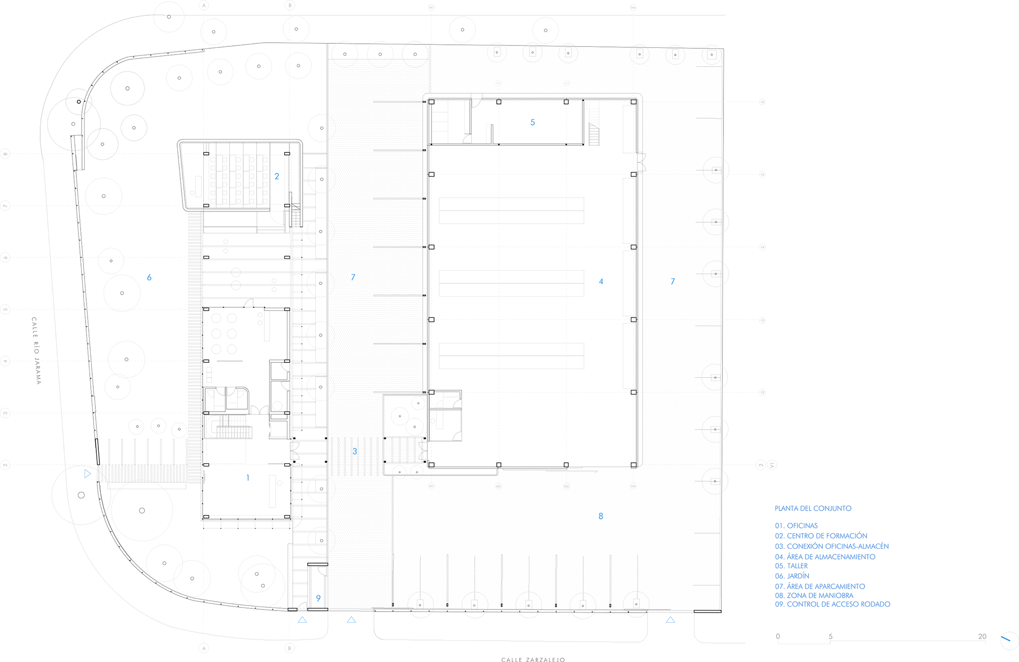
Ibenergi’s headquarters stand on an elongated piece of land in the industrial area of Toledo. From north to south we find the main building, a small road that crosses the building site and provides access, as well as parking and a small ancillary structure.
The rectangular building which is home to the headquarters of Ibenergi is positioned with its longitudinal side parallel to the northern edge of the lot. It rises two storeys. While the base is glazed to the ceiling all the way around, the views of the first upper level are more closed off. A rippled façade of eloxated aluminum sheeting covers the outer walls and is interrupted in one direction by window bands, in the other by large-format glazing. At the western end of the building, there is an attic level also clad in aluminum. Here and there on the shell, pergolas of fine metal elements lie in front of the windows and façade. These are intended as trellises and will support the indoor climate control in future. Along with the planted open areas to which the architects from Taller Abierto gave special attention, these trellises will give natural shading to ensure a pleasant working atmosphere and attractive views of the green.
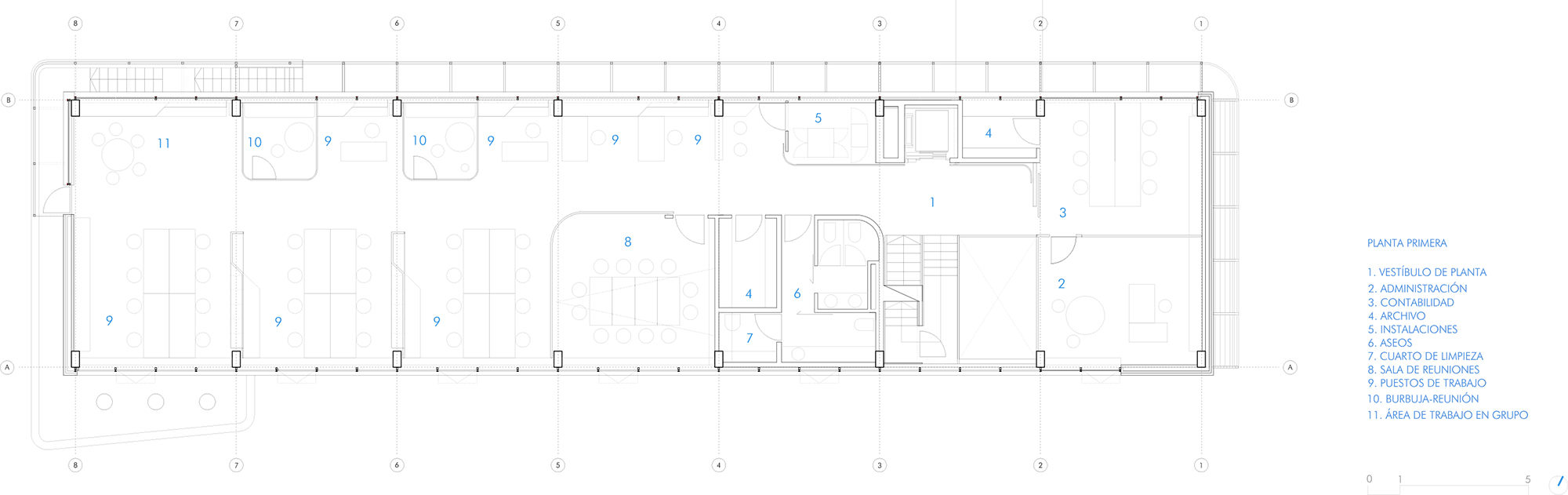
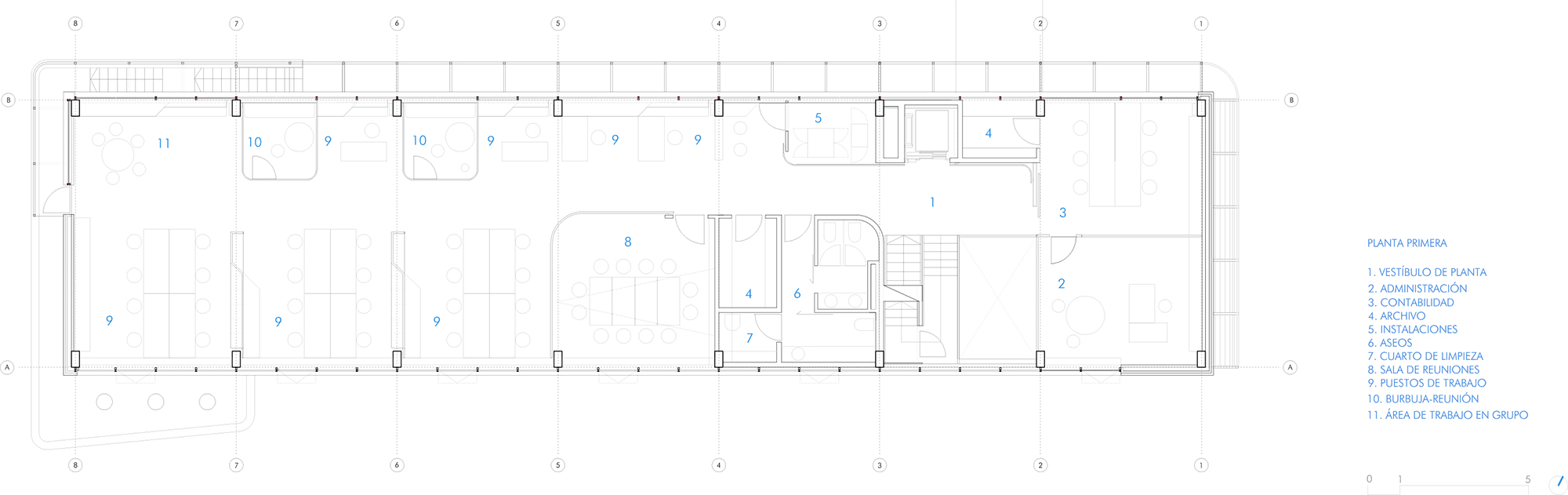
The principal access is from the west. Apart from the lobby, access core, sanitary installations, cafeteria and rest area, the ground floor is home to a roofed-in exterior space that delimits the main part of the building from the auditorium. The upper level is home to the working area, which has been designed with many open-plan offices and small, separate units. The meeting room and terrace on the upper level round out the program.
All the interior surfaces follow a unified scheme. Smooth, grey floors, white walls and acoustic ceilings dress the spaces. These are complemented with ceiling-high glass partitions and sleek furniture.
The rectangular building which is home to the headquarters of Ibenergi is positioned with its longitudinal side parallel to the northern edge of the lot. It rises two storeys. While the base is glazed to the ceiling all the way around, the views of the first upper level are more closed off. A rippled façade of eloxated aluminum sheeting covers the outer walls and is interrupted in one direction by window bands, in the other by large-format glazing. At the western end of the building, there is an attic level also clad in aluminum. Here and there on the shell, pergolas of fine metal elements lie in front of the windows and façade. These are intended as trellises and will support the indoor climate control in future. Along with the planted open areas to which the architects from Taller Abierto gave special attention, these trellises will give natural shading to ensure a pleasant working atmosphere and attractive views of the green.
The principal access is from the west. Apart from the lobby, access core, sanitary installations, cafeteria and rest area, the ground floor is home to a roofed-in exterior space that delimits the main part of the building from the auditorium. The upper level is home to the working area, which has been designed with many open-plan offices and small, separate units. The meeting room and terrace on the upper level round out the program.
All the interior surfaces follow a unified scheme. Smooth, grey floors, white walls and acoustic ceilings dress the spaces. These are complemented with ceiling-high glass partitions and sleek furniture.






















