Auf gute Nachbarschaft: Block + Void House von Bundschuh Architekten
Foto: Laurian Ghinitoiu
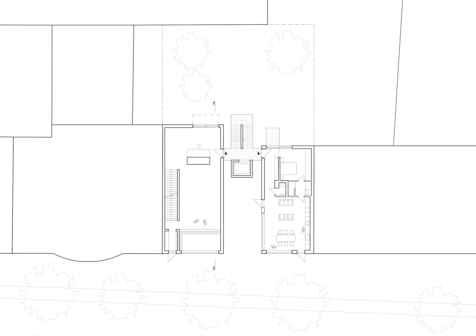
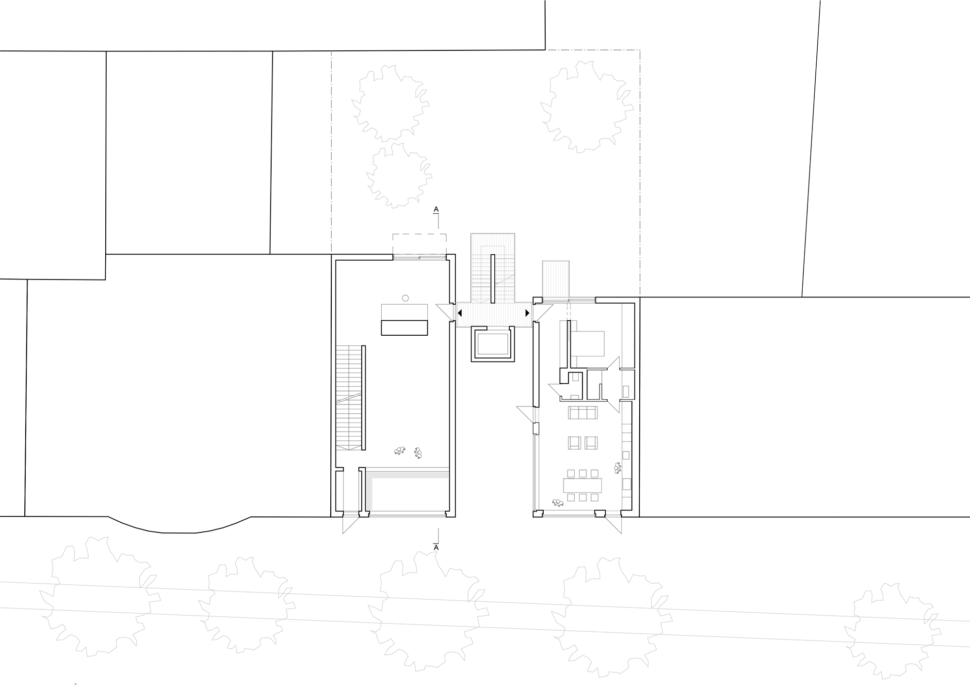
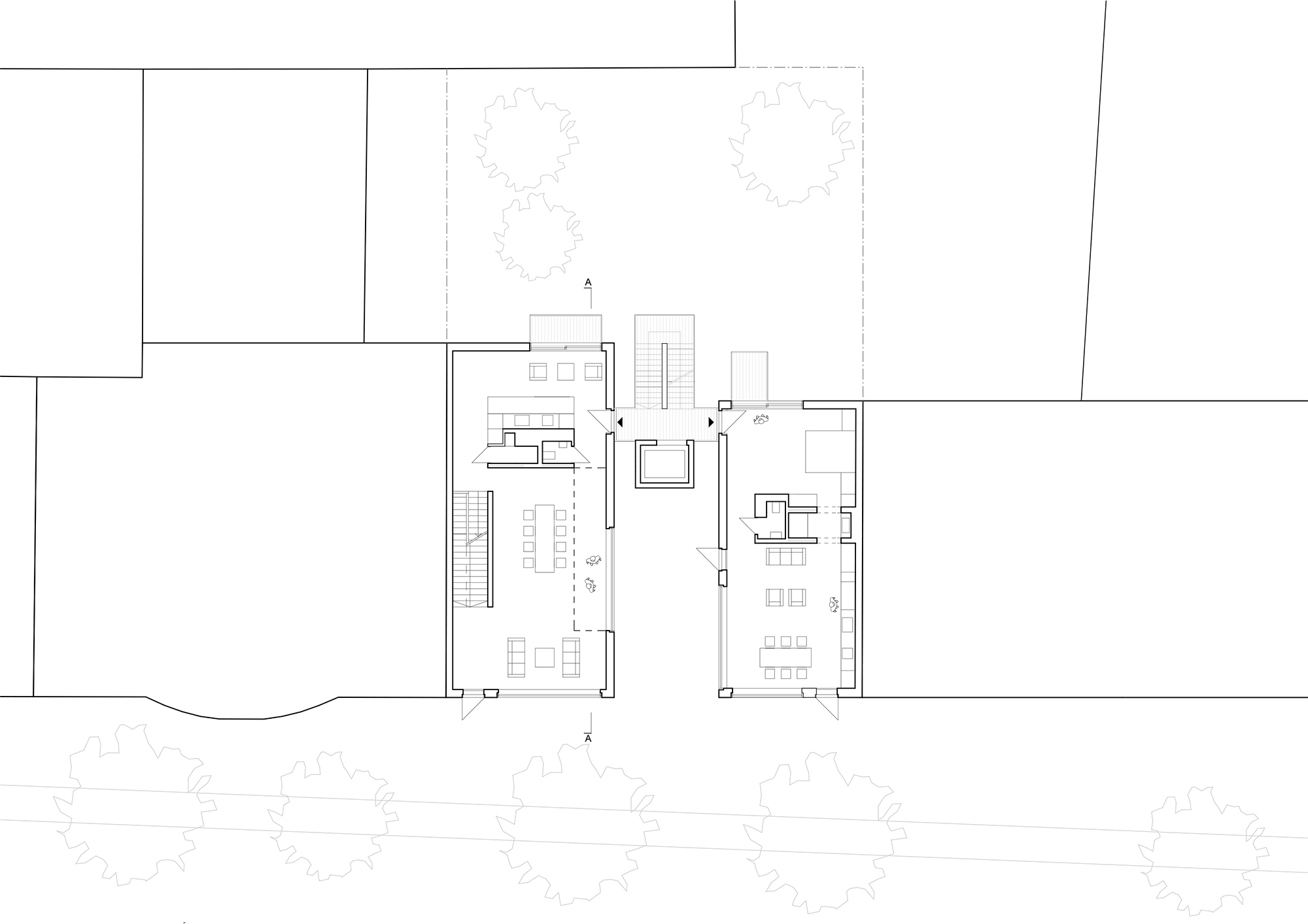
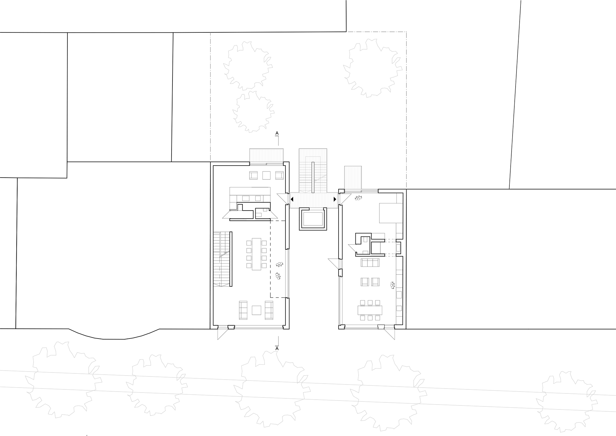
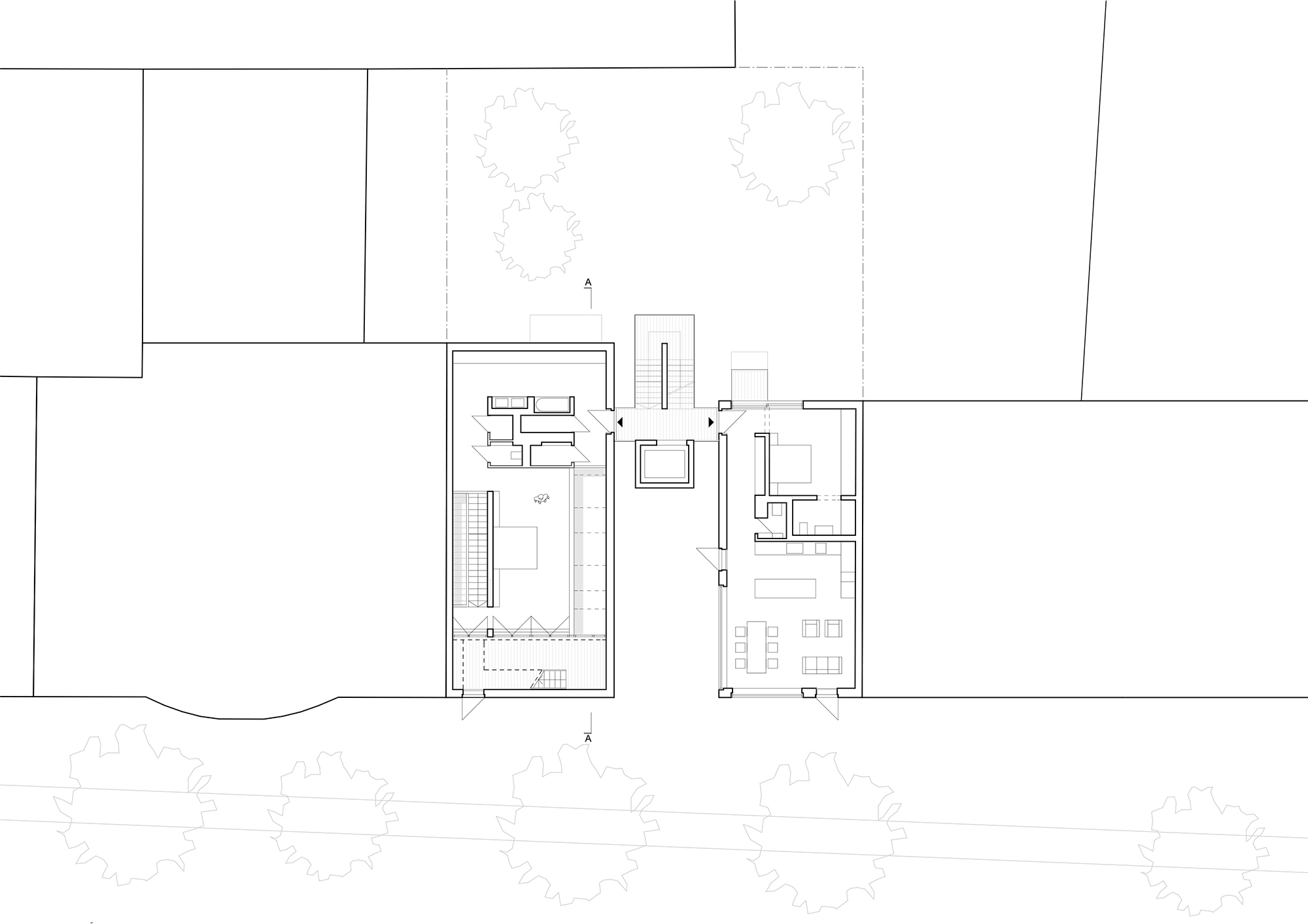
Seit Ende des Zweiten Weltkriegs hatte das Grundstück an der Michaelkirchstraße 12 in Berlin-Kreuzberg unweit südlich des Spreeufers brach gelegen. Später diente es einmal als Lagerplatz für Segmente der Berliner Mauer. Heute steht dort ein zweiteiliger Neubau von Bundschuh Architekten, der mit seiner asymmetrischen Kubatur die Vielgliedrigkeit seines heterogenen Umfelds fortsetzt. Das »Block + Void House« entstand im Auftrag einer Baugruppe aus einem Kunstsammler und sechs weiteren Parteien. Seine eigenwillige Form, so Architekt Roger Bundschuh, war nicht zuletzt vom Typus des französischen »hôtel particulier« inspiriert.
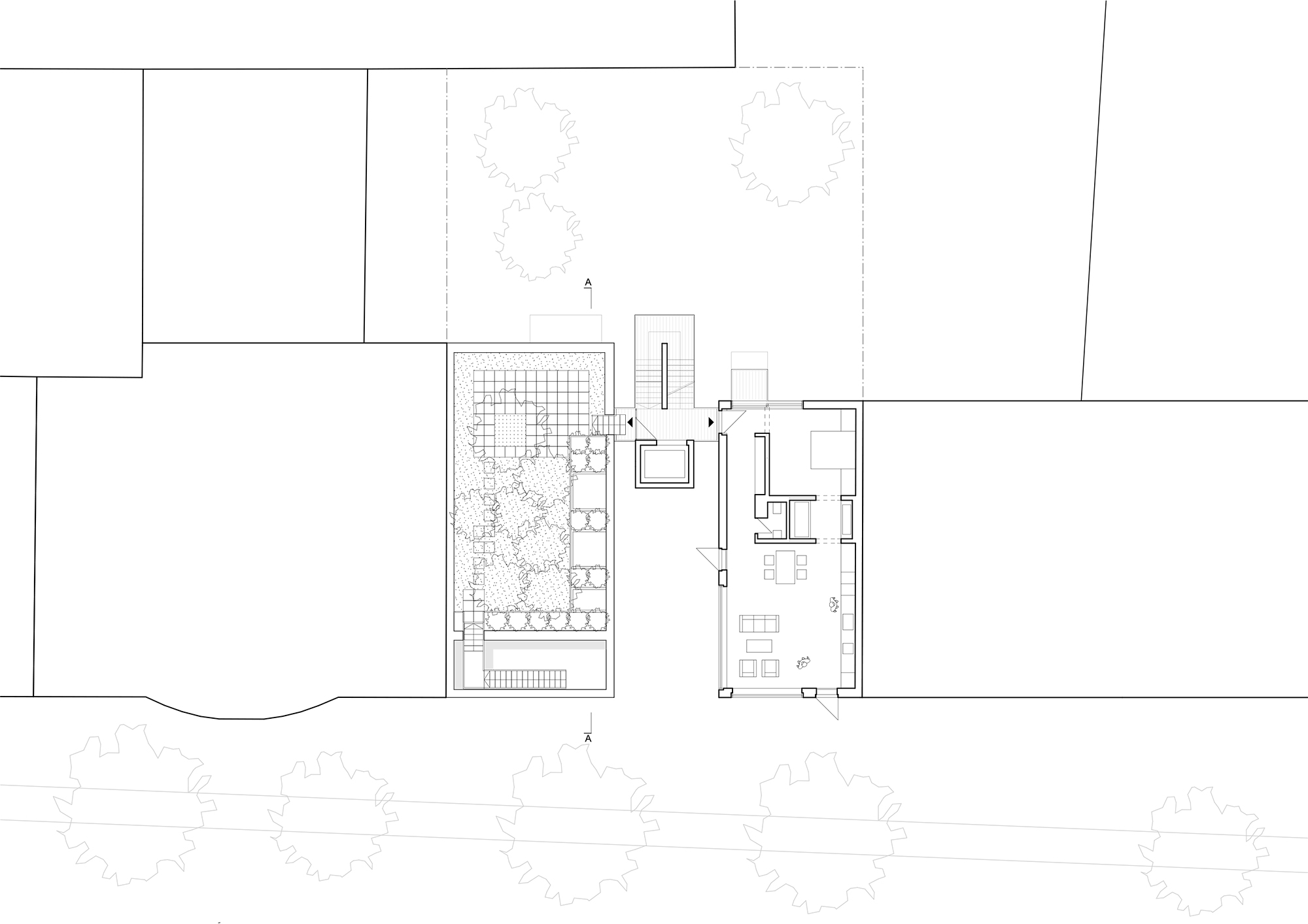
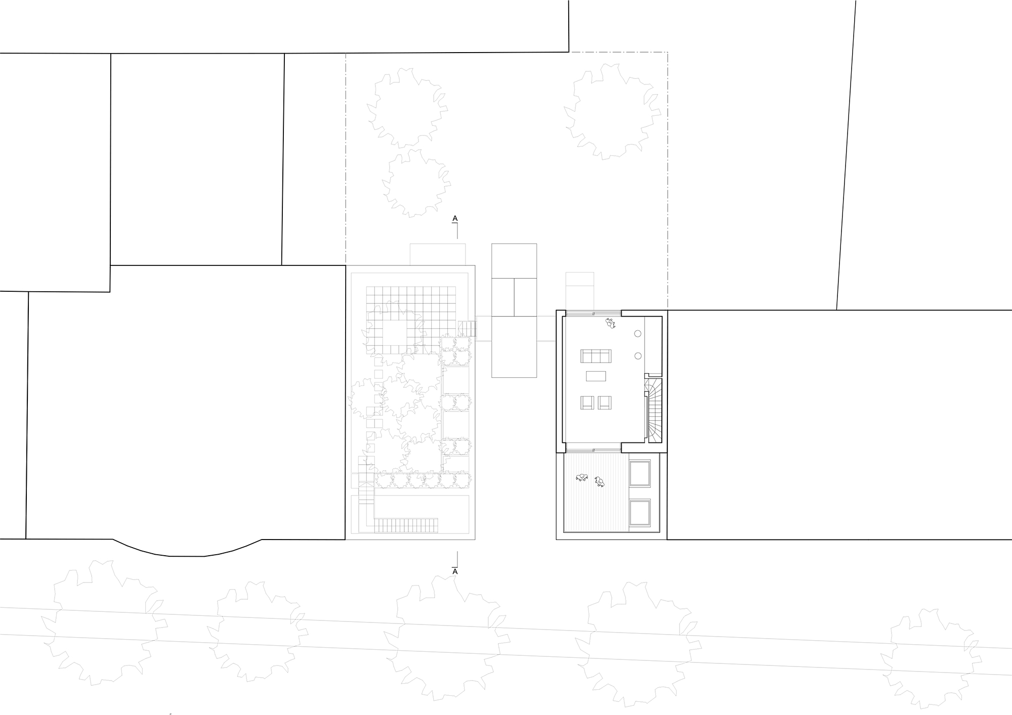
Ein schmaler Vorhof – eigentlich eher ein Durchgang zwischen den beiden Baukörpern – führt auf einen skulpturalen Sichtbetonturm zu, der die Vertikalerschließung aufnimmt. Von hier aus sind die Wohneinheiten in den Obergeschossen über schmale Verbindungsbrücken erreichbar. Sechs davon sind im höheren der beiden Volumina untergebracht, der niedrigere Baukörper beherbergt die Wohnung und die Ausstellungsräume des Kunstsammlers. Auf seinem Flachdach ist überdies ein Privatgarten entstanden.
Durch die zergliederte Bauform erhält jede Wohnung Tageslicht von drei Seiten, größtenteils durch bodentiefe Festverglasungen. Auf der Gebäuderückseite führen Glasschiebetüren hinaus auf Privatbalkone. Die großen Glasfenster holen das Stadtpanorama ins Haus, erlauben aber auch Querblicke zwischen den Wohnungen. Opake, ebenso wie der Rest der Fassaden grau verputzte Klappen – die die Architekten mit Tapetentüren vergleichen – dienen zur Belüftung und im Notfall als Rettungswege. Im Hof lockt eine Lichtinstallation Passanten an, näher zu treten. Allenthalben ist zu spüren: Statt Abschottung waren der Bauherrengemeinschaft und ihren Architekten Gemeinschaftsbezug und Öffnung zur Nachbarschaft wichtig. Für den Fall, dass ihnen dies gelegentlich zu viel wird, können die Bewohner immerhin innen liegende Vorhänge vor den Fenstern zuziehen.
Weitere Informationen:
Tragwerksplanung: ifb Frohloff, Staffa, Kühl, Ecker, Berlin
TGA-Planung: Energiebüro Fuetterer und Ruppmann, Berlin
Produkthersteller: Sto, Schüco, Metallbau Stoof, Bembé, EstriCon, Holz & Rauzm, CREO Rooms




























