Good neighbourly relations: Block + Void House by Bundschuh Architects
Foto: Laurian Ghinitoiu
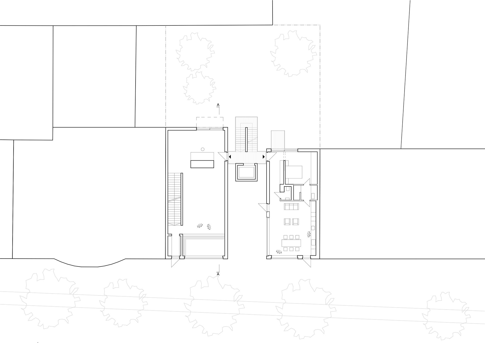
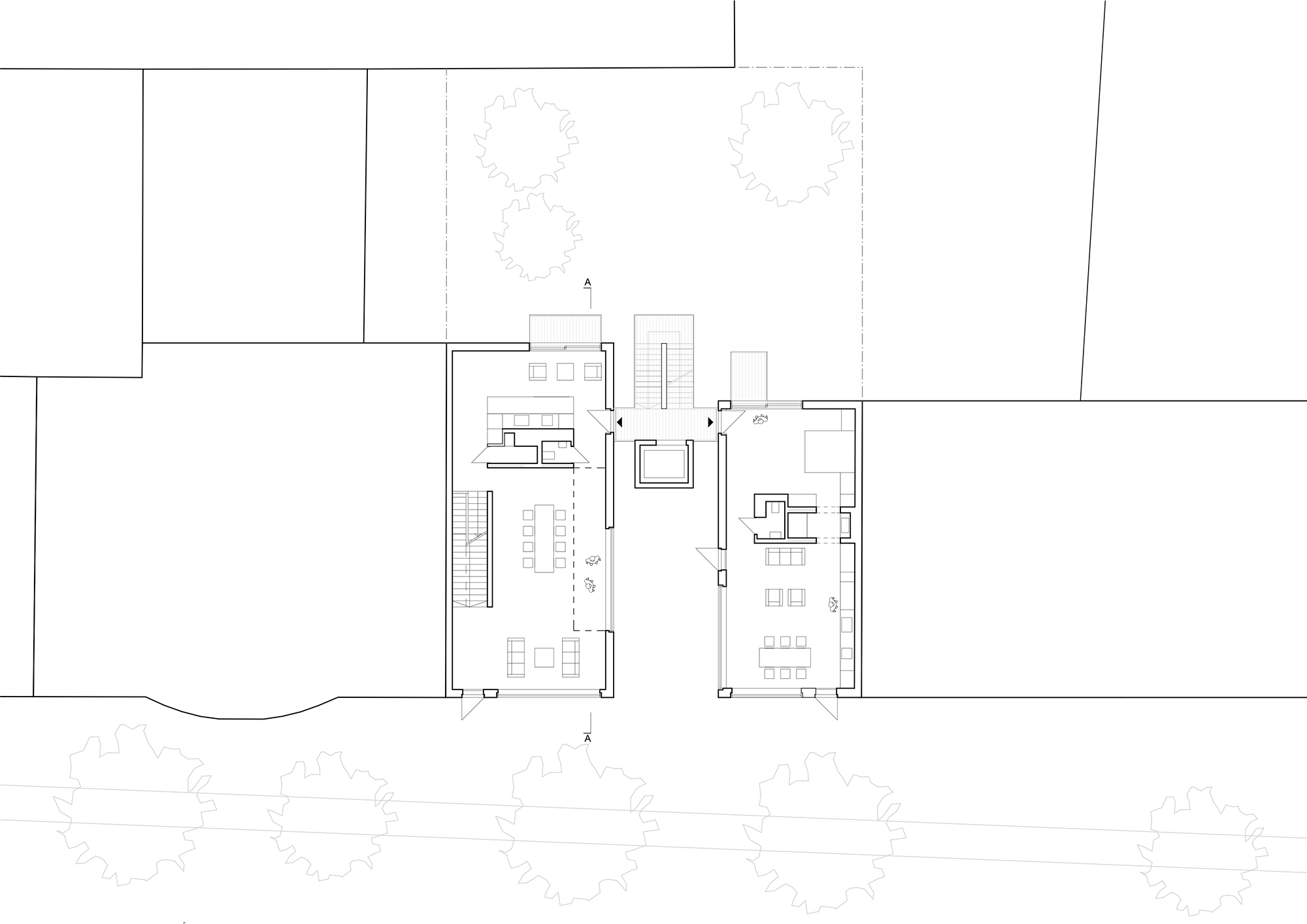
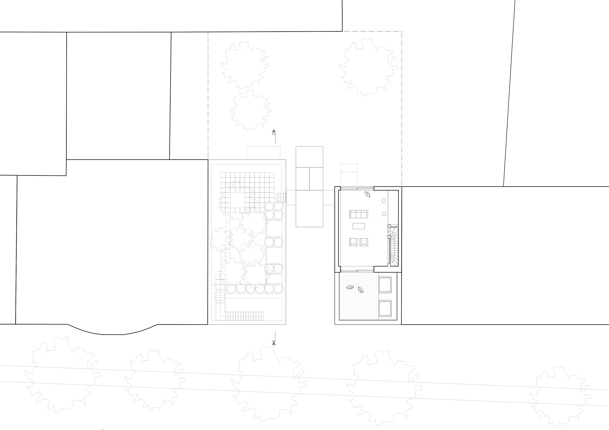
The plot at Michaelkirch Strasse 12, close to the southern embankment of the river Spree in Berlin's Kreuzberg district, had remained undeveloped since the end of the second world war and later on was used a storage site for segments of the Berlin Wall. Today it is taken up by the Block + Void House. The two-part building, designed by Bundschuh Architects for a property development collective made up of an art collector and six further parties, comes with an asymmetrical spatial configuration in reference to the multifarious character of the heterogeneous surroundings. As architect Roger Bundschuh states, its somewhat unorthodox shape and form was inspired in no small part by the typology of the French hôtels particuliers.
A narrow forecourt – actually a passageway between the building's two main volumes– leads to a sculptural, fair-face concrete tower; this contains the staircase for vertical access and leads along narrow footbridges to the upper-storeys apartments. Six of the dwelling units are contained in the higher of the two volumes, while the lower one houses the art collector's apartment and exhibition spaces, complete with a private garden on its flat roof.
The building's segmented design provides daylight from three different sides to each of the apartments, mainly through fixed floor-to-ceiling windows. Sliding glass doors lead out onto private balconies on the rear side of the building, where large windows provide panoramic views onto the city as well as sightlines to the other apartments. Opaque shutters, rendered grey like the rest of the façade and compared by the architects to concealed doors, serve ventilation and as escape routes in an emergency. A light installation in the entrance court encourages passers-by to come and take a closer look; indeed, rather than wanting a property that makes an aloof and unapproachable impression, the home-building cooperative and their architects attached importance to creating a sense of community and connection to the neighbourhood, as has found expression in various respects. And if this occasionally gets too much for the occupants, they can always pull the curtains across the windows.
Further information:
Planning of structural framework: ifb Frohloff, Staffa, Kühl, Ecker, Berlin
TGA-planning: Energiebüro Fuetterer und Ruppmann, Berlin
Product manufacturer: Sto, Schüco, Metallbau Stoof, Bembé, EstriCon, Holz & Rauzm, CREO Rooms




























