Aufbruch ins Solarzeitalter: Sonnenschiff in Freiburg
Um die Jahrtausendwende war Freiburg die unbestrittene Solarhauptstadt Deutschlands – und diesen Nimbus verdankte sie einem Architekten: Rolf Disch. In den 1980er-Jahren hatte er die erste deutsche Solartankstelle gebaut und die Weltmeisterschaft im Solarmobilfahren gewonnen. In den 1990-ern realisierte er das unvergessene drehbare Heliotrop – Wohnhaus des Architekten und Demonstrationsobjekt für kompromisslos solares Bauen in einem. Mit der Solarsiedlung am Schlierberg und dem benachbarten Gewerbebau „Sonnenschiff“ baute Disch nach der Jahrtausendwende das erste große Gebäudeensemble im Plusenergiestandard – und zog dort nach Fertigstellung auch selbst mit seinem Büro ein. Der 125 m lange Gebäuderiegel steht an einer Ausfallstraße im Süden von Freiburg. Er fungiert als Schallschutzbarriere für die sich östlich anschließende Solarsiedlung. Im Norden endet das Sonnenschiff in einem markanten sechsgeschossigen Kopfbau. Der Rest des Riegels ist dreigeschossig, zuzüglich vier ebenfalls dreigeschossiger Penthouse-Aufbauten, mit denen sich die Solarsiedlung gleichsam auf seinem Dach fortsetzt. Zwei verglaste Treppentürme gliedern die straßenseitige Westfassade. An der ruhigeren Ostseite dagegen erinnern langgestreckte Fluchtbalkone und außen angebrachte Treppen tatsächlich ein wenig an Schiffsdecks.
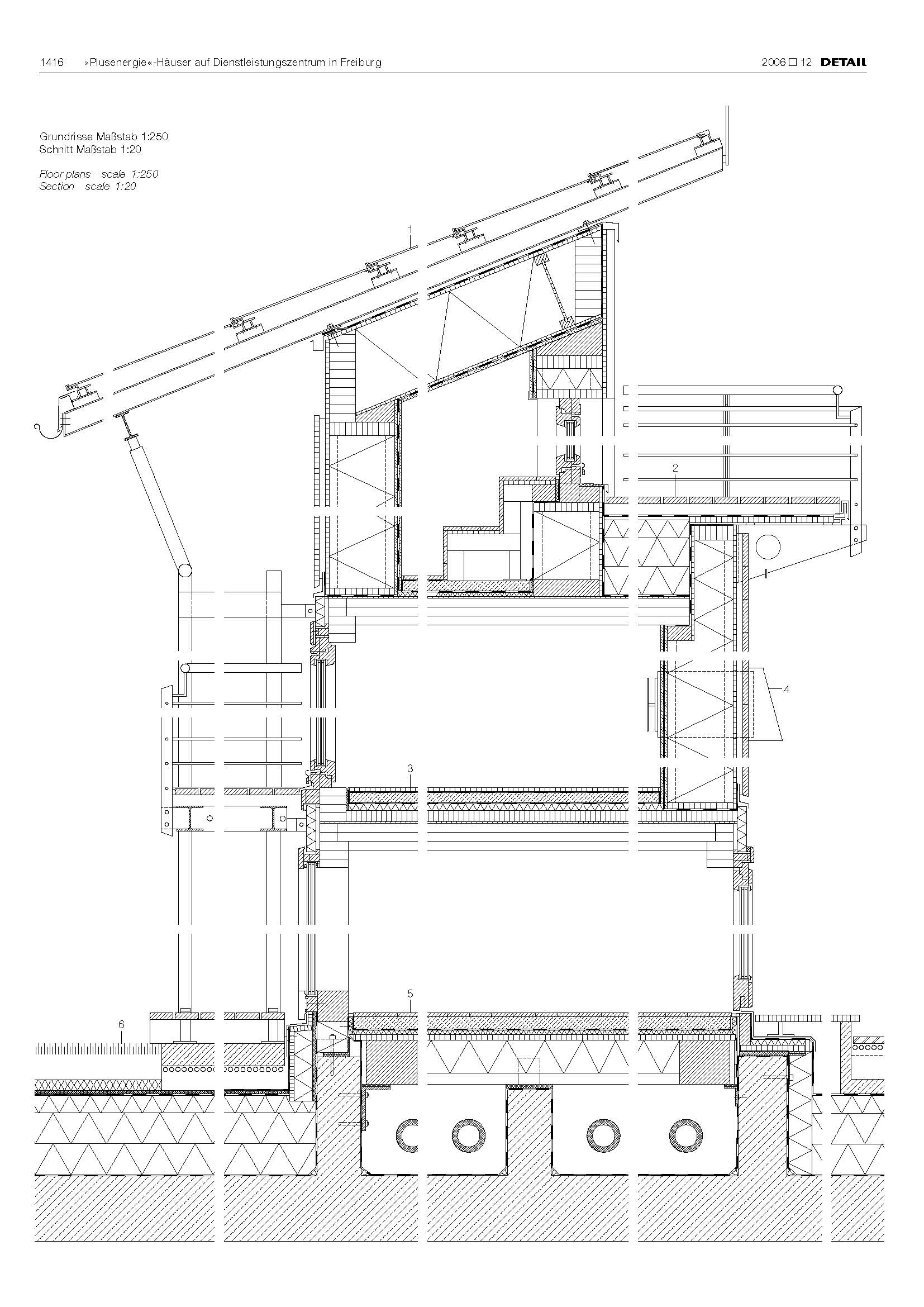
Insgesamt 1200 m2 Laden- und 3600 m2 Bürofläche finden in dem Gebäuderiegel Platz. Errichtet wurde dieser als Stahlbetonskelettbau mit passivhaustauglichen Holzständerfassaden, die mit Festverglasungen und vakuumgedämmten Brüstungsfeldern ausgefacht sind. Der markanteste Blickfang der Büroetagen sind zweifellos die farbigen, geschosshohen Fassadenpaneele, hinter denen sich windgeschützte Lüftungsflügel – auch sie mit Vakuum-Isolationspaneelen gedämmt – und Lüftungsanlagen mit Wärmerückgewinnung befinden. Die Solaranlagen auf den fünf Schrägdächern bringen es auf eine Leistung von 112 kWp, liefern jährlich rund 110,000 kWh Strom und waren aufgrund der hohen Einspeisevergütung von über 40 Cent pro Kilowattstunde schon damals rentabel.
Rolf Disch war nie ein Architekt, der auf Aufträge von Investoren gewartet hätte, um zu bauen. Das zeigt sich auch hier: Gemeinsam mit den Schokoladenfabrikanten Marli Hoppe-Ritter und Alfred Ritter initiierte er erst die Solarsiedlung GmbH als Trägerin des Projekts und dann zwei geschlossene Immobilienfonds, um das rund 20 Millionen Euro teure Sonnenschiffs nach dessen Fertigstellung zu refinanzieren. Dischs Idee: Auch Kleinanleger sollten in das Zukunftsprojekt investieren können.







