Embarking on the Solar Energy Age: Sun Ship in Freiburg
Around the turn of the millennium Freiburg was indisputably Germany’s solar energy capital. This nimbus it owed to Rolf Disch, an architect who had built the first solar-powered filling station and won the solar mobile world championship in the 1980s. In the 1990s he went on to realise the unforgotten rotatable Heliotrope, which served both as his home and as a showpiece for uncompromising solar construction. After the millennium, Disch came up with the first large building ensemble to meet the PlusEnergy standard – namely the Solar Settlement at Schlierberg and the nearby Sun Ship, a commercial building that on completion became the new location of his office. Standing alongside a main road in south Freiburg, the 125 m Sun Ship acts as a sound barrier for the neighbouring Solar Settlement to the east. To the north the building is fronted by a striking six-storey section. The three storeys on the rest of the slab block are topped by four (also three-storey) penthouses, thus continuing the Solar Settlement on the Sun Ship roof, so to speak. Two glazed stair towers articulate the western-facing street front. On the plainer east side, long escape balconies and external stairways are indeed a little reminiscent of a ship.
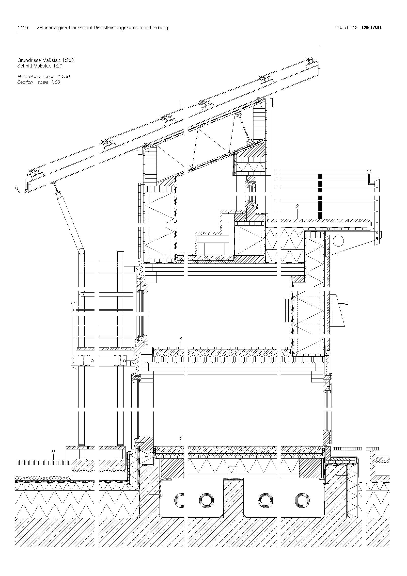
The slab block containing 1,200 sqm in retail space and 3,600 sqm of office space has a reinforced concrete skeleton structure and a passive-house-suited timber-frame façade with fixed glazing and vacuum-insulated parapet fields. The most striking eye-catchers on the exterior of the office storeys are undoubtedly the colourful storey-high panels concealing heat recovery ventilation systems and ventilation flaps sheltered from the wind and also vacuum insulated. The solar arrays on the five slanting penthouse roofs are rated at 112 kWp and generate approx. 110,000 kWh of electricity a year, making them a profitable proposition even back then as the remuneration for power supplied to the grid was conservable at 40 cents per kilowatt hour.
Rolf Disch was never an architect who waited for commissions from property developers to get building. He moreover initiated the property development company Solarsiedlung GmbH along with the chocolate manufacturers Marli Hoppe-Ritter and Alfred Ritter to realise the Solar Settlement, following this up with two closed real estate funds to refinance the 20 million euro Sun Ship after its completion. Disch’s idea was to enable even small investors to put money into the forward-looking project.







