Aus dem Korsett befreit: Haus L-S von Vermeiren - De Coster in Gent
Foto: Dennis de Smet
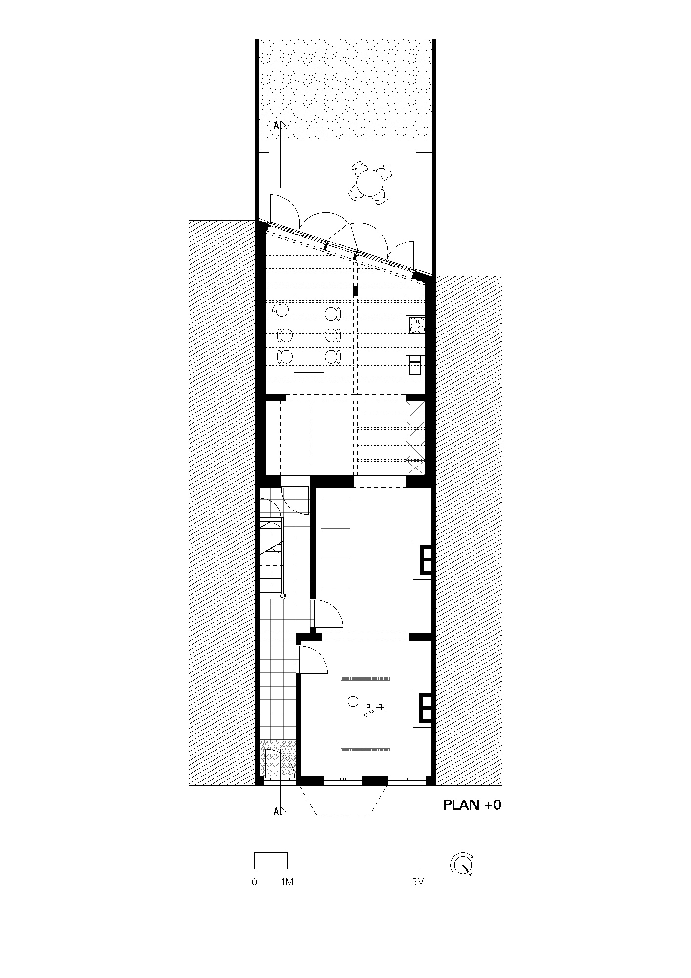
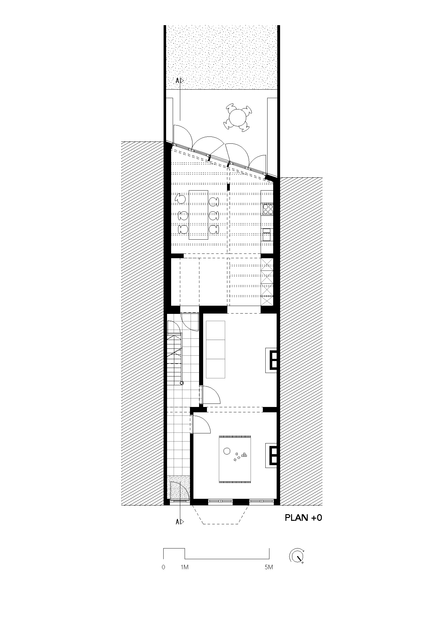
Bisweilen lässt sich in Altbauten mehr Licht, Luft und Raum schaffen, auch ohne deren ursprüngliche Kubatur durch Anbauten zu verändern. Wie das geht, zeigen die Architekten Vermeiren - De Coster mit dem Umbau eines Reihenhauses vom Ende des 19. Jahrhunderts im flämischen Gent. Das in Bahnhofsnähe gelegene Haus besaß einen Annex auf der Rückseite, der zusammen mit dem spiegelsymmetrisch dazu angeordneten Anbau des Nachbargebäudes ein eigenes kleines Giebelhaus bildete. Untergebracht waren darin Küche, Bad und Lagerräume, die Aufenthaltsqualität war schon aufgrund der wenigen Fenster gering.
Um mehr Platz für die fünfköpfige Bauherrenfamilie zu schaffen, ließen die Architekten den Annex abreißen und durch einen Neubau mit fast gleicher Kubatur ersetzen. Einzige Ausnahme: Die zum Garten gewandte Giebelhälfte verläuft nun schräg statt gerade und verbindet die Gebäudefluchten der Nachbarn miteinander. Ihre Aluminiumverkleidung kündet schon auf den ersten Blick von der Erneuerung, die auch im Inneren stattgefunden hat. Dort teilen ein Betonrahmen und eine orthogonal dazu angeordneter Holzträger auf einer Holzstütze den großen Erdgeschossraum in vier Quadranten, von denen einer die Küchenzeile, der zweite den Essplatz und der dritte hohe Einbauschränke beherbergt. Der vierte, zweigeschossige Quadrant verbindet das Erdgeschoss mit der Etage darüber - und mit dem Tageslicht, das reichlich durch Oberlichter an der Schnittstelle zwischen Vorder- und Rückgebäude einfällt. Im ersten Obergeschoss führt ein Stahlsteg aus dem Vorderhaus zu einer offenen Arbeitsebene im Anbau. Die Wand- und Dachinnenflächen ließen die Architekten hier mit hellem Birkensperrholz verkleiden.
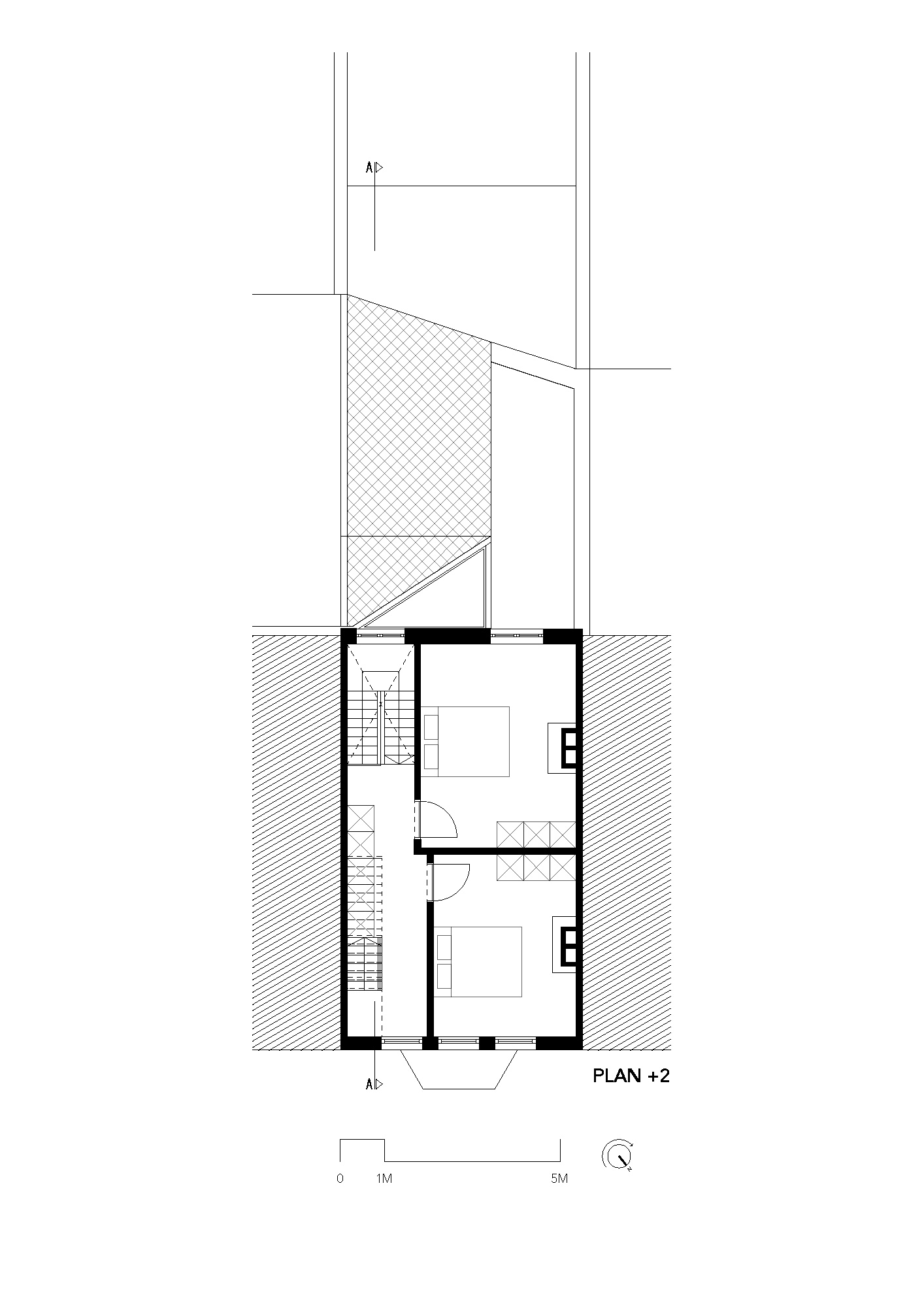
Auch das Vorderhaus wurde ordentlich umstrukturiert: Hier gibt es nur noch drei statt vier Schlafzimmer – das vierte ist dem neuen, großen Familienbad mit separatem WC im ersten Obergeschoss gewichen. In der Etage darüber verkleinerten die Architekten ein Schlafzimmer zugunsten einer größeren Treppe, die in das noch auszubauende Dachgeschoss führt. Das Dach des Vorderhauses ist komplett neu, ebenso alle Innentüren und die Bodenbeläge in vielen Räumen. Auch die Straßenfassade erstrahlt in neuem Glanz, mit gereinigten Ziegeln, neuer Fenstertür und neuen Fenstern – einschließlich des Erkers im ersten Stock, der das Elternschlafzimmer zur Straße hin erweitert.


















