Aus dem Korsett befreit: Haus L-S von Vermeiren - De Coster in Gent
Foto: Dennis de Smet
Sometimes old buildings can be given a lighter, airier and more spacious feel without changing their original cubature by adding annexes. This the architects Vermeiren - De Coster have demonstrated with their restructuring of a late-19th-century row building close to the station in the Flemish city of Ghent. The rear of the house had an annexe, which along with the symmetrically identical one next door, formed a small gable-roofed building of its own. A kitchen, bathroom and storage rooms were located inside but due to the low number of windows, the amenity value was poor.
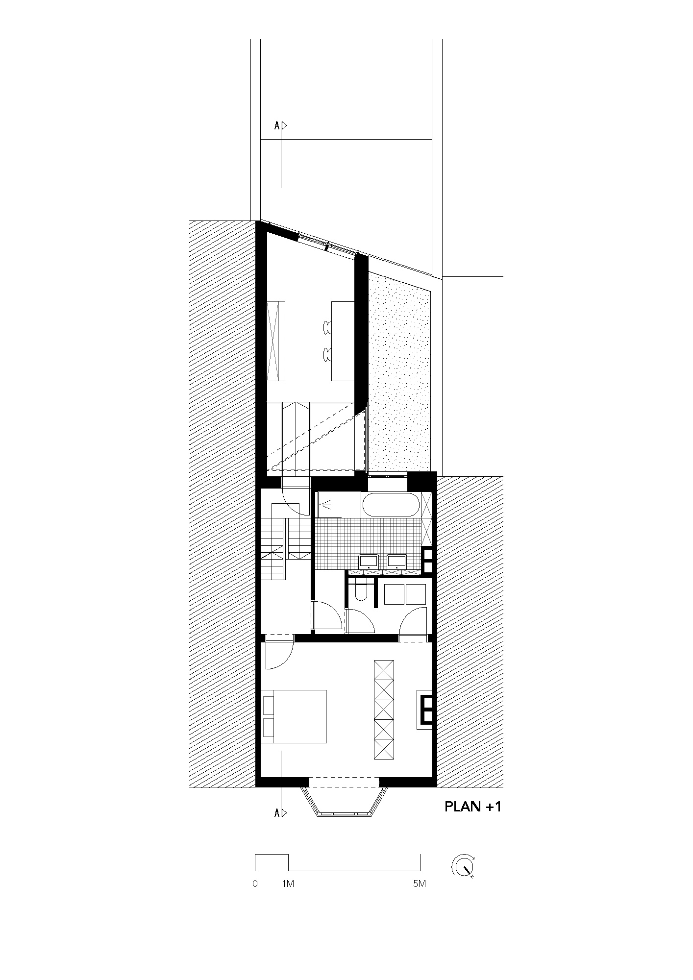
To create more space for the client’s five-member family, the architects had the annexe demolished and replaced by a new one almost identical in cubature – that is, except for the garden-facing gable wall, which is now oblique instead of straight to align it with next door’s building line. The aluminium cladding of the new annexe signals straight away that renewal has taken place. This also applies to the interior, where a concrete frame and transverse timber beam on a wooden post now divide the large ground floor area into four parts. One contains the fitted kitchen, the second the dining area and the third is equipped with tall built-in cupboards. The fourth and double-height one opens the ground floor both to the storey above and to the natural light streaming in through the skylights at this transition of front and rear building. A steel bridge leads from the first storey of the front building to the annexe and its open work space, where the architects had the walls and ceilings surfaced in pale birch plywood.
The front building also underwent considerable restructuring, and now has only three instead of four bedrooms – the fourth having made way for a large new family bathroom with separate WC on the first floor. On the floor above the architects reduced the size of a bedroom to make space for a larger staircase to the attic storey, still to be remodelled. The roof on the front building is completely new, along with all interior doors and the flooring in many rooms. The street façade has also gained fresh lustre with its cleaned brickwork, a new French door and new windows – including the first-floor bay window that extends the parent’s bedroom towards the street.


















