Subtiler Umbau
Ausbildungszentrum Schönau von Markus Schietsch Architekten
© Philip Heckhausen
Im Jahr 2014 gewannen Markus Schietsch Architekten aus Zürich den Wettbewerb zum Umbau und zur Erweiterung des Ausbildungszentrums Schönau. Das Bestandsgebäude – ein Skelettbau aus den frühen 1980er-Jahren – liegt rund 2 km nördlich von Cham im Schweizer Kanton Zug. Es dient auch heute noch als Ausbildungs- und Einsatzort der kantonalen Organisationen für Bevölkerungsschutz. Neben der Sanierung der Gebäudehülle auf den Minenergie-Standard, gab es zahlreiche Maßnahmen, um die betrieblichen Arbeitsprozesse effizienter zu gestalten.


© Philip Heckhausen
Gebäudehülle
Als besondere Herausforderung galt es, die architektonischen Stärken des Skelettbaus zu erhalten – Flexibilität im Grundriss und Freiheit in der Fassadengestaltung. Dies gelang durch gezielte Eingriffe: Die bestehende Fassade wurde bis auf das Betonskelett zurückgebaut.
Zur Erhaltung der gestaltgebenden Gebäudehülle wurde dem Tragwerk eine Struktur aus eingefärbten Betonelementen mit zwischenliegender Dämmung vorgelagert. Die Fassadenelemente in den Zwischenräumen der Tragstruktur können in ihrer Gestaltung beliebig auf die dahinterliegende Nutzung reagieren.


© Philip Heckhausen
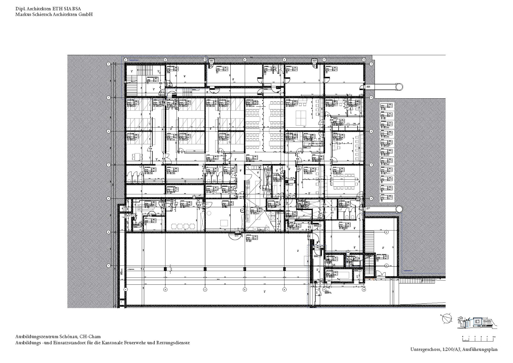
Raumorganisation
Das offene und unbeheizte Treppenhaus nahe dem Haupteingang sowie der überdachte Vorplatz auf der Nordseite wurden in die neue Gebäudehülle integriert. Mit 110 statt 60 Plätzen wurde die Cafeteria auf die fast doppelte Platzanzahl erweitert. Die ursprünglich im Untergeschoss gelegene Küche gliedert sich seit der Neukonzeption direkt an die Cafeteria an. Im Treppenhaus erschließt ein neuer Personen- und Materiallift beide Geschosse.


© Philip Heckhausen
Materialisierung
Neue Einbauten aus Holz tragen zu einer allgemein ruhigeren Arbeitsatmosphäre bei und stehen im Kontrast zu bestehenden Kalksandsteinwänden und Sichtbetonoberflächen. Präzise eingesetzte Wandverkleidungen aus feuerverzinktem Metall betonen den industriellen Charakter des Gebäudes. Einzelne Türen zu den Schulungsräumen setzen die wenigen Farbakzente im Inneren.


© Philip Heckhausen


© Philip Heckhausen
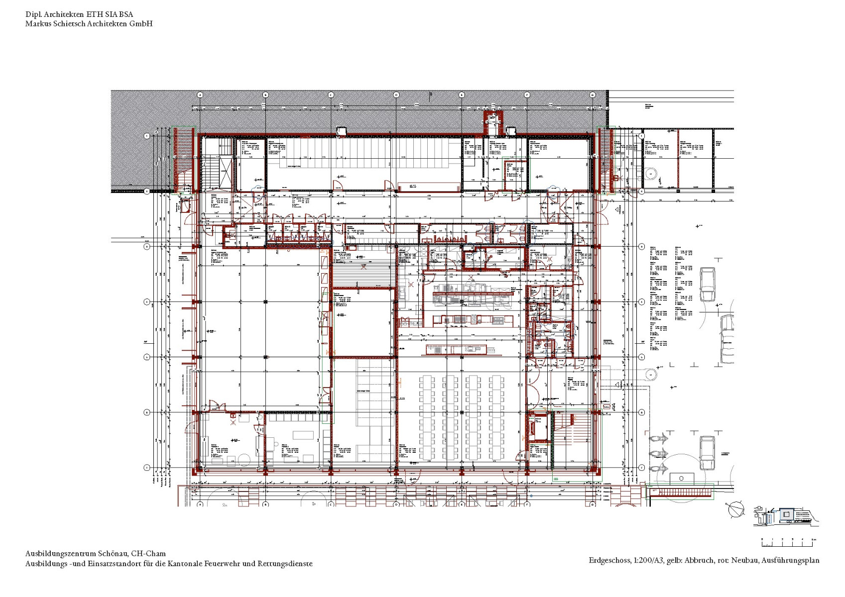
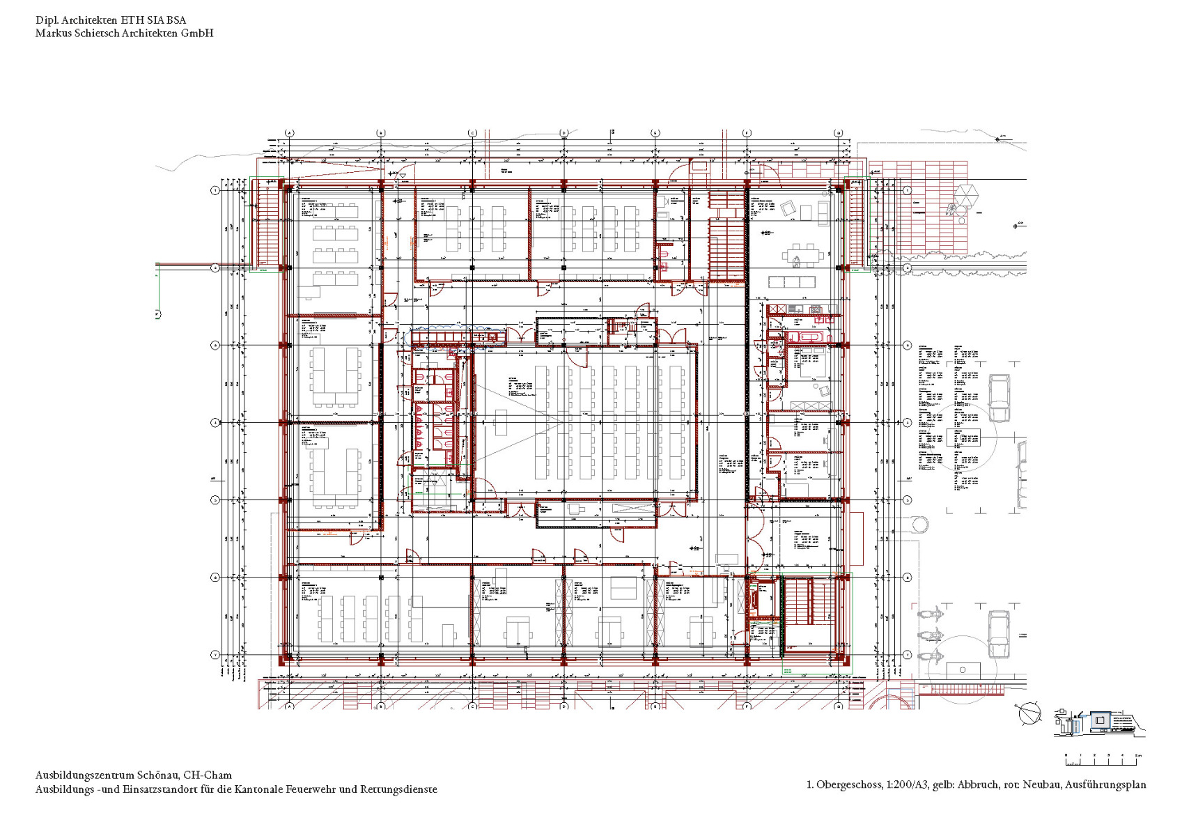
Neben den baulichen Instandsetzungen umfasst das Projekt auch einen Erweiterungsbau. Im nördlichen Bereich wurde die Anlage um eine Material- und Fahrzeughalle ergänzt. Die Metallfalttore in der platzseitigen Fassade nehmen Bezug auf den Hauptbau und lassen Neubau und Bestand wie eine Einheit wirken.
Architektur: Markus Schietsch Architekten, Zürich
Bauherr: Baudirektion des Kantons Zug, Hochbauamt
Standort: Lorzenstraße 4, 6330 Cham (CH)
Baumanagement: Takt Baumanagement
Tragwerksplanung, Fassadenplanung: Lüchinger + Meyer Bauingenieure
HLS-Planung: Olos
Elektroplanung: Meyer + Partner




































