Subtle renovation
Schönau Training Centre by Markus Schietsch Architekten
© Philip Heckhausen
In 2014, Markus Schietsch Architekten of Zurich won the competition to renovate and expand the Schönau Training Centre. The existing building, a skeleton structure from the early 1980s, is located around 2 km north of Cham in the Swiss canton of Zug. It still serves as an education and operation site for the cantonal Offices for Civil Protection. Along with renovating the building shell to Minergie standards, the architects have carried out work to make operational work processes more efficient.


© Philip Heckhausen
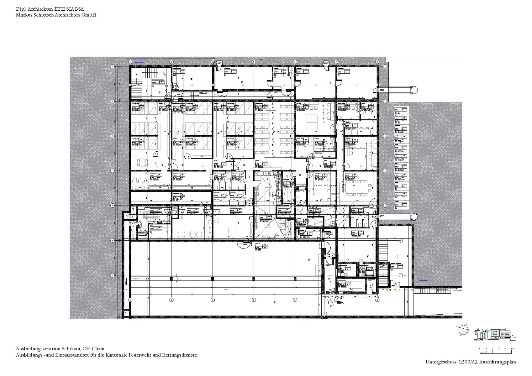
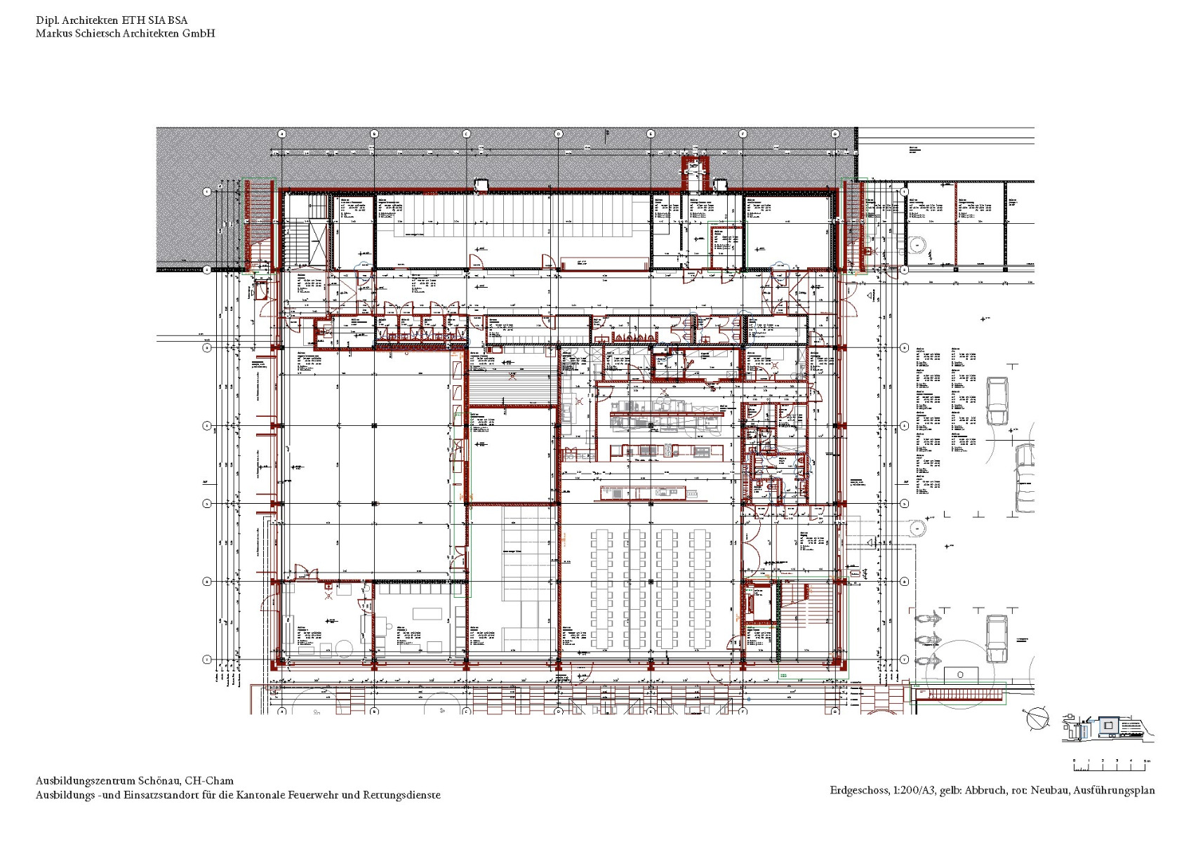
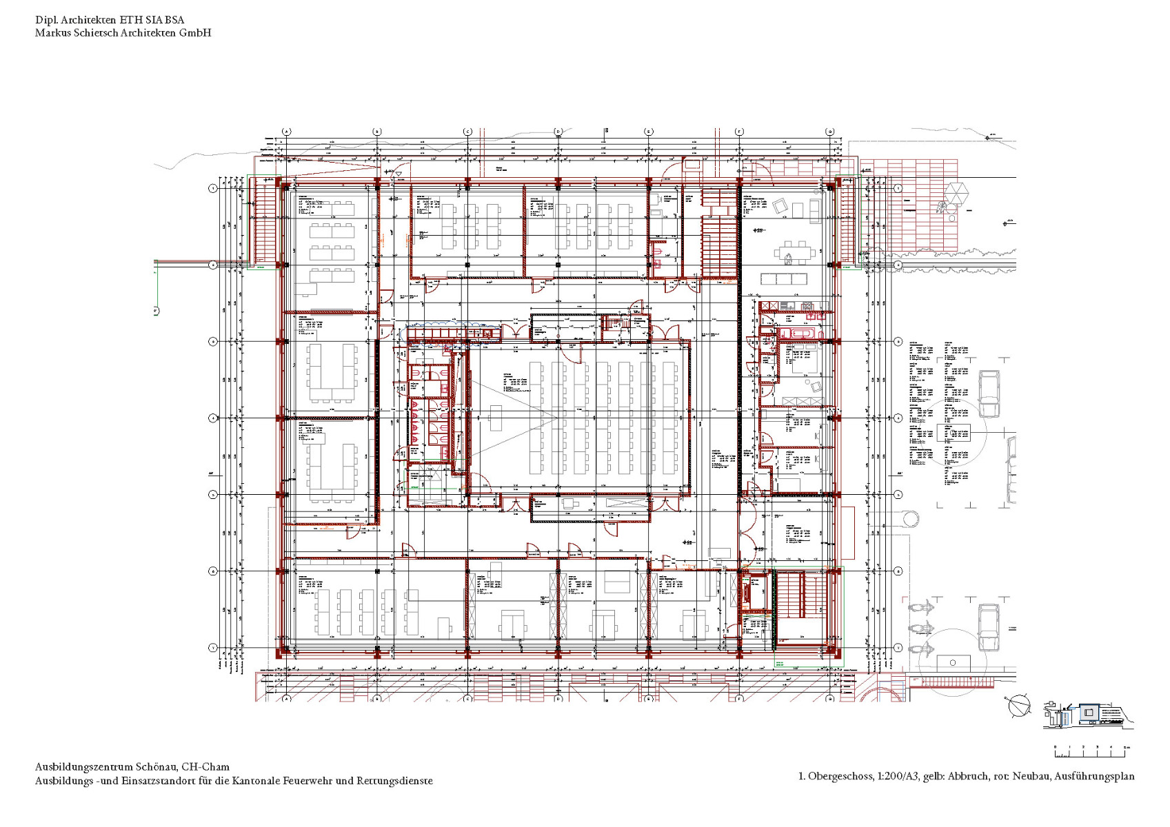
The building shell
A particular challenge lay in preserving the architectural strengths of the skeleton structure – i.e. flexibility in the floor plan and freedom in the design of the facade. This was achieved by means of targeted interventions: the existing facade was dismantled down to the concrete skeleton.
In order to preserve the design-defining building shell, a construction of tinted concrete elements with intermediate insulation was placed in front of the supporting structure. The facade elements in the in-between spaces of the supporting structure are designed to be adapted as required to any given function.


© Philip Heckhausen
Spatial organization
The open, unheated stairwell near the main entrance and the roofed-in forecourt on the north side of the building have been integrated into the new building shell. With 110 seats instead of the previous 60, the cafeteria’s capacity has nearly doubled. The kitchen, which was originally in the basement, has been joined onto the cafeteria in the new concept. In the stairwell, a new elevator for passengers and freight now links the two storeys.


© Philip Heckhausen
Materials
New built-ins of wood contribute to a work atmosphere that is generally more quiet and contrast with the existing lime-sandstone walls and exposed-concrete surfaces. The carefully considered addition of galvanized metal wall coverings underscores the building’s industrial character. Occasional colour accents appear on some of the interior doors.


© Philip Heckhausen


© Philip Heckhausen
Along with the constructive overhaul, the project also encompasses an expansion project. In the north-facing area, the complex has been enhanced with a hall for materials and vehicles. The folding metal doors in the adjoining facade create a stylistic link to the main building, letting the new and pre-existing structures appear as a single unit.
Architecture: Markus Schietsch Architekten, Zurich
Client: Baudirektion des Kantons Zug, Hochbauamt
Location: Lorzenstraße 4, 6330 Cham (CH)
Construction management: Takt Baumanagement
Structural engineering, facade planning: Lüchinger + Meyer Bauingenieure
HVAC-planning: Olos
Electrical engineering: Meyer + Partner




































